Connect

813 E 6th Street, Leadville, CO – $370,000

  • 2 Beds
  • 1 Bath
  • 1,088 Sqft
  • .11 Acres
  • 2 Beds
  • 1 Bath
  • 1,088 Sqft
  • .11 Acres

New Search X

813 E 6th Street

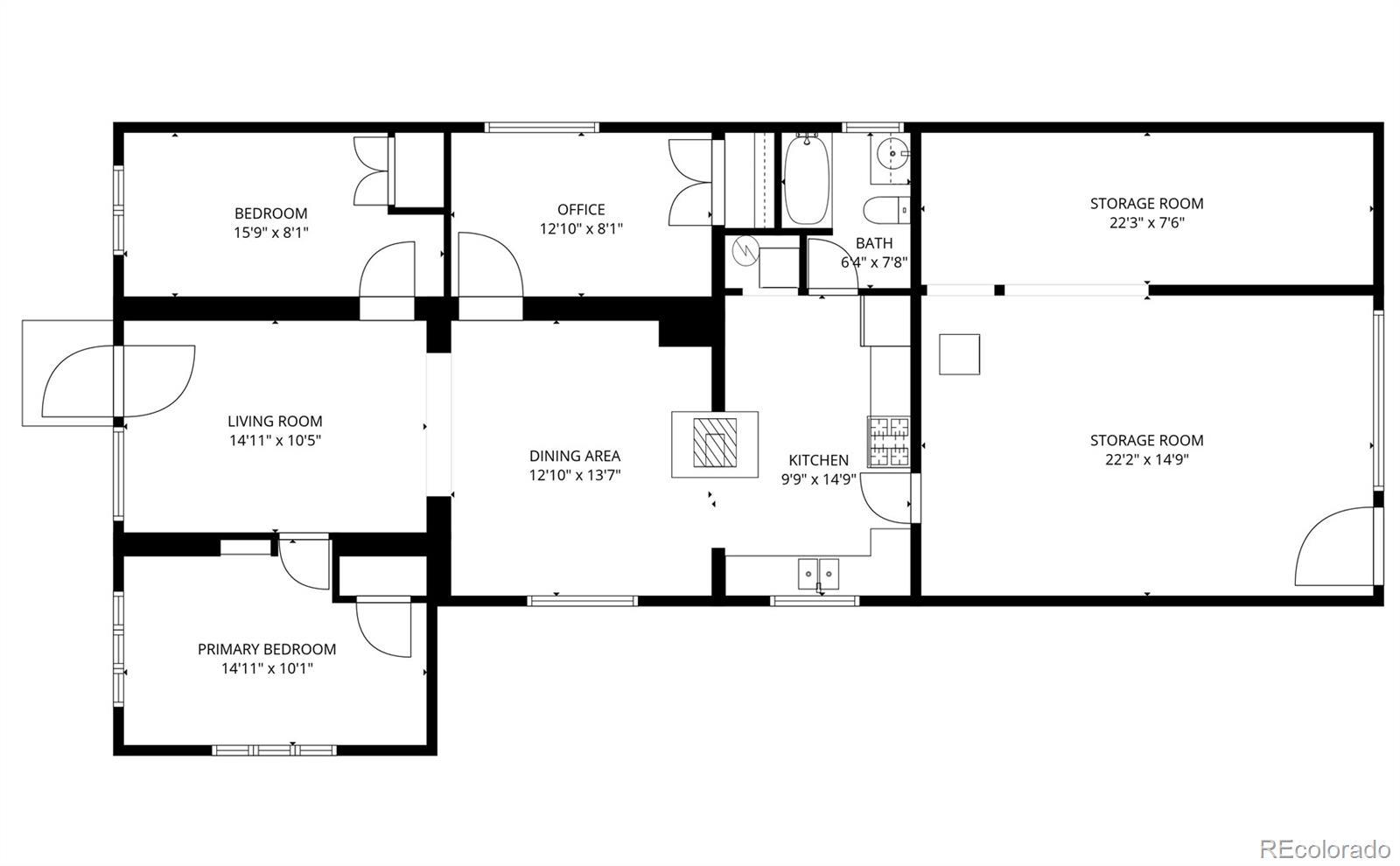
Welcome to 813 E 6th St, a well maintained 2 bedroom plus office, 1 bathroom home offered at just $370,000. It is rare to find a move-in ready property in Leadville at this price point! Tucked away on a quiet street, this home offers comfortable living with nicely sized bedrooms, a functional layout, and mountain views from the backyard. This home is cozy and ready for you to make it your own, live in it as is or update over time to add your personal style. Inside you will find carpeting throughout, adding warmth and comfort and plenty of space for everyday living. The additional office space provides flexibility. The attached storage is a large space great for gear, a workshop or start your summer flowers. This house is not in the historic district and is outside the city limits. Close access to the Mineral Belt Trail and hiking trails. This is an affordable investment in Leadville’s competitive market and is a fantastic opportunity. Come take a look today!

Listing Office: Aspen Leaf Realty

Essential Information

  • MLS® #1677192
  • Price$370,000
  • Bedrooms2
  • Bathrooms1.00
  • Full Baths1
  • Square Footage1,088
  • Acres0.11
  • Year Built1888
  • TypeResidential
  • Sub-TypeSingle Family Residence
  • StyleVictorian
  • StatusPending

Community Information

  • Address813 E 6th Street
  • SubdivisionLeadville
  • CityLeadville
  • CountyLake
  • StateCO
  • Zip Code80461

Amenities

  • Parking Spaces2
  • ParkingGravel
  • ViewMountain(s)

Utilities

Electricity Connected, Natural Gas Connected

Interior

  • CoolingNone
  • FireplaceYes
  • # of Fireplaces1
  • FireplacesWood Burning Stove
  • StoriesOne

Interior Features

Ceiling Fan(s), Laminate Counters

Appliances

Dryer, Range, Range Hood, Refrigerator, Washer

Heating

Baseboard, Electric, Forced Air, Natural Gas, Wood Stove

Exterior

  • RoofComposition

Lot Description

Near Public Transit, Near Ski Area

School Information

  • DistrictLake County R-1
  • ElementaryWestpark
  • MiddleLake County
  • HighLake County

Additional Information

  • Date ListedOctober 30th, 2025
  • ZoningUrban Residential

Listing Details

  • Aspen Leaf Realty
Please provide a valid email address.

Terms and Conditions: The content relating to real estate for sale in this Web site comes in part from the Internet Data eXchange ("IDX") program of METROLIST, INC., DBA RECOLORADO® Real estate listings held by brokers other than RE/MAX Professionals are marked with the IDX Logo. This information is being provided for the consumers personal, non-commercial use and may not be used for any other purpose. All information subject to change and should be independently verified.

Copyright 2025 METROLIST, INC., DBA RECOLORADO® -- All Rights Reserved 6455 S. Yosemite St., Suite 500 Greenwood Village, CO 80111 USA

Listing information last updated on November 28th, 2025 at 4:48pm MST.