Connect

7035 Delmonico Drive, Colorado Springs, CO – $724,900

  • 4 Beds
  • 3 Baths
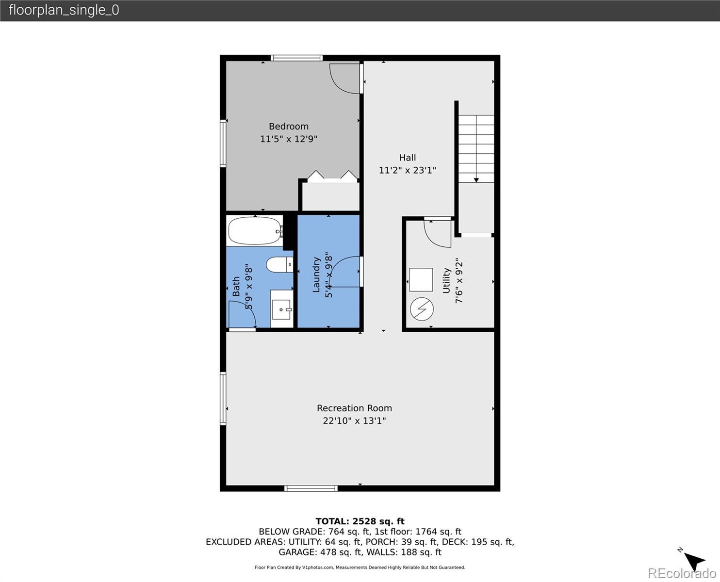
  • 2,576 Sqft
  • .23 Acres
  • 4 Beds
  • 3 Baths
  • 2,576 Sqft
  • .23 Acres

New Search X

7035 Delmonico Drive

In the heart of Rockrimmon, this updated home blends architectural character with modern design. The entry opens to a vaulted great room with exposed beams, and wide-plank engineered wood floors. A dual-sided brick wall separates the entry and living space, featuring a fireplace on one side and a wood-burning stove on the other. The open floor plan connects the great room, living room, dining area, and a gourmet kitchen with a six-burner gas range, quartz countertops, custom cabinetry and tilework — perfect for gatherings or everyday living. Three bedrooms and two baths are on the main level, including a private primary suite with attached bath. The finished basement adds a fourth bedroom, full bath, laundry, and spacious family room. Outside, enjoy the wood deck, mature trees, and a fully enclosed section ideal for pets or outdoor living. The oversized garage provides extra storage and parking. Close to trails, shopping, and D-20 schools. Updates Include: New roof, electrical panel, engineered hardwood flooring, carpet, kitchen cabinets, quartz counters, tile backsplash, appliances, interior and exterior paint, bath tile and vanities, plumbing fixtures, electrical fixtures, doors, and trim. All information deemed reliable but not guaranteed. Buyer and buyer’s agent to verify.

Listing Office: Coldwell Banker Realty BK

Essential Information

  • MLS® #2453768
  • Price$724,900
  • Bedrooms4
  • Bathrooms3.00
  • Full Baths2
  • Square Footage2,576
  • Acres0.23
  • Year Built1978
  • TypeResidential
  • Sub-TypeSingle Family Residence
  • StyleTraditional
  • StatusPending

Community Information

  • Address7035 Delmonico Drive
  • SubdivisionDiscovery
  • CityColorado Springs
  • CountyEl Paso
  • StateCO
  • Zip Code80919

Amenities

  • Parking Spaces2
  • ParkingConcrete, Oversized
  • # of Garages2

Utilities

Electricity Connected, Natural Gas Connected

Interior

  • HeatingForced Air
  • CoolingCentral Air
  • FireplaceYes
  • # of Fireplaces2
  • StoriesOne

Interior Features

Built-in Features, Five Piece Bath, Kitchen Island, Open Floorplan, Pantry, Primary Suite, Quartz Counters, Vaulted Ceiling(s), Walk-In Closet(s)

Appliances

Dishwasher, Disposal, Gas Water Heater, Microwave, Oven, Range, Range Hood, Refrigerator, Self Cleaning Oven

Fireplaces

Great Room, Living Room, Wood Burning, Wood Burning Stove

Exterior

  • Exterior FeaturesPrivate Yard
  • Lot DescriptionLandscaped
  • WindowsBay Window(s), Egress Windows
  • RoofComposition
  • FoundationConcrete Perimeter

School Information

  • DistrictAcademy 20
  • ElementaryRockrimmon
  • MiddleEagleview
  • HighAir Academy

Additional Information

  • Date ListedNovember 13th, 2025
  • ZoningPUD SS HS

Listing Details

  • Coldwell Banker Realty BK
Please provide a valid email address.

Terms and Conditions: The content relating to real estate for sale in this Web site comes in part from the Internet Data eXchange ("IDX") program of METROLIST, INC., DBA RECOLORADO® Real estate listings held by brokers other than RE/MAX Professionals are marked with the IDX Logo. This information is being provided for the consumers personal, non-commercial use and may not be used for any other purpose. All information subject to change and should be independently verified.

Copyright 2025 METROLIST, INC., DBA RECOLORADO® -- All Rights Reserved 6455 S. Yosemite St., Suite 500 Greenwood Village, CO 80111 USA

Listing information last updated on December 2nd, 2025 at 1:04am MST.