Connect

1854 Marlborough Court, Fort Collins, CO – $550,000

  • 5 Beds
  • 3 Baths
  • 2,141 Sqft
  • .13 Acres
  • 5 Beds
  • 3 Baths
  • 2,141 Sqft
  • .13 Acres

New Search X

1854 Marlborough Court

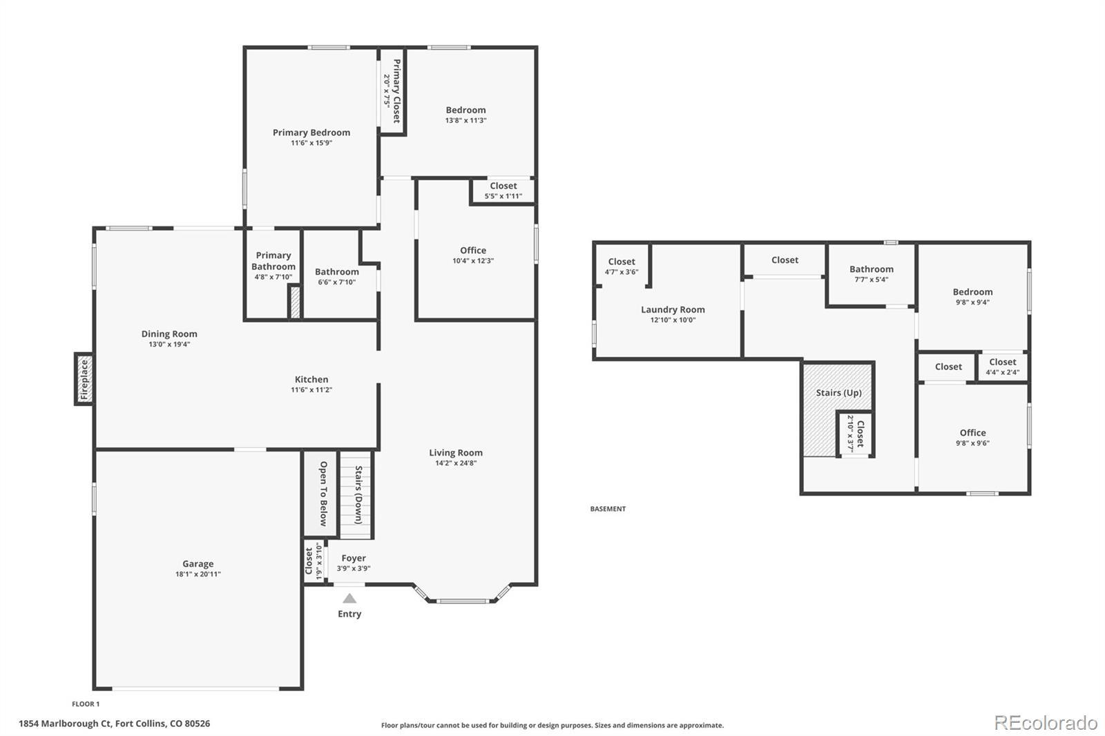
Comments Listing Comments: Welcome to 1854 Marlborough Court - a beautifully updated home in one of Fort Collins' most established and connected neighborhoods. A short stroll from Rolland Moore Park and the Spring Creek Trail, this home pairs timeless charm with modern efficiency and thoughtful upgrades inside and out. The main level's open layout flows naturally between the living, dining, and kitchen spaces, all highlighted by gleaming oak floors and abundant natural light from the east-facing bay window. The kitchen shines with oak cabinetry, slide-out pantry drawers, stainless steel appliances-including a Bosch dishwasher, Samsung range-and low-maintenance laminate countertops. The dining area is framed with a custom white oak bench seat for relaxed gatherings. The primary suite offers a private retreat with new closet doors, a tiled ensuite bath, a custom queen bed frame and headboard, and modern fixtures. The two additional main floor bedrooms add flexibility, with one featuring a built-in white oak bookshelf and slide-out printer tray. The beautifully updated main bath is centered with a custom floating vanity. Downstairs, the finished basement adds nearly 700 square feet of versatile living space with built-in storage, a laundry area featuring a matching Maytag washer and dryer, and a utility sink for projects or gear. Outside, you'll find a xeriscaped front yard designed for Colorado's climate-no regular watering needed-and irrigated raised garden beds ready for your favorite herbs, vegetables, and flowers. The backyard includes a Trex deck with a pergola, dog door access, and direct gate entry to a lush, HOA-maintained green space. Dual heating/cooling systems (new in 2024), an active radon system, and a whole-house fan provide year-round comfort and energy efficiency. With quick access to neighborhood parks, schools, and optional pool membership, this Fort Collins gem blends craftsmanship, character, and convenience in one perfectly balanced home.

Listing Office: RE/MAX Advanced Inc.

Essential Information

  • MLS® #9167027
  • Price$550,000
  • Bedrooms5
  • Bathrooms3.00
  • Full Baths1
  • Square Footage2,141
  • Acres0.13
  • Year Built1973
  • TypeResidential
  • Sub-TypeSingle Family Residence
  • StyleContemporary
  • StatusActive

Community Information

  • Address1854 Marlborough Court
  • SubdivisionFoothills Village
  • CityFort Collins
  • CountyLarimer
  • StateCO
  • Zip Code80526

Amenities

  • AmenitiesPark
  • Parking Spaces2
  • ParkingOversized
  • # of Garages2

Utilities

Electricity Connected, Internet Access (Wired), Natural Gas Connected

Interior

  • HeatingForced Air, Heat Pump
  • CoolingAttic Fan, Central Air
  • FireplaceYes
  • # of Fireplaces1
  • FireplacesGas
  • StoriesOne

Interior Features

Eat-in Kitchen, High Speed Internet, Open Floorplan

Appliances

Dishwasher, Disposal, Microwave, Oven, Range, Refrigerator

Exterior

  • WindowsBay Window(s), Skylight(s)
  • RoofComposition

Lot Description

Cul-De-Sac, Level, Many Trees, Sprinklers In Front, Sprinklers In Rear

School Information

  • DistrictPoudre R-1
  • ElementaryBennett
  • MiddleBlevins
  • HighRocky Mountain

Additional Information

  • Date ListedNovember 11th, 2025
  • ZoningRL

Listing Details

  • RE/MAX Advanced Inc.
Please provide a valid email address.

Terms and Conditions: The content relating to real estate for sale in this Web site comes in part from the Internet Data eXchange ("IDX") program of METROLIST, INC., DBA RECOLORADO® Real estate listings held by brokers other than RE/MAX Professionals are marked with the IDX Logo. This information is being provided for the consumers personal, non-commercial use and may not be used for any other purpose. All information subject to change and should be independently verified.

Copyright 2025 METROLIST, INC., DBA RECOLORADO® -- All Rights Reserved 6455 S. Yosemite St., Suite 500 Greenwood Village, CO 80111 USA

Listing information last updated on December 2nd, 2025 at 4:33am MST.