Connect

6840 Juniper Drive, Thornton, CO – $549,350

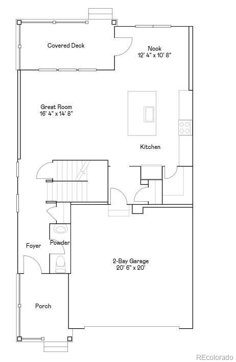
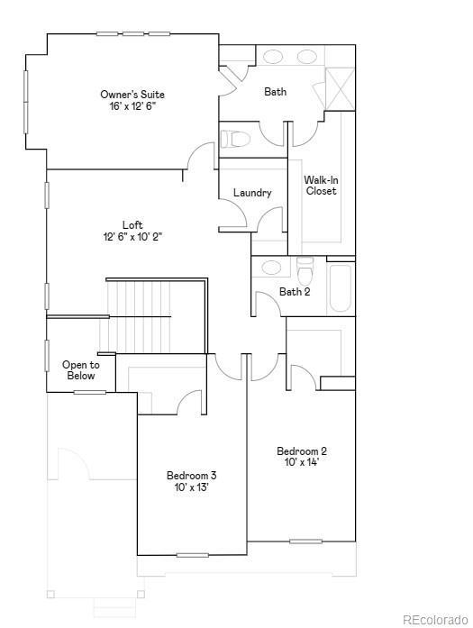
  • 3 Beds
  • 3 Baths
  • 2,161 Sqft
  • .07 Acres
  • 3 Beds
  • 3 Baths
  • 2,161 Sqft
  • .07 Acres

New Search X

6840 Juniper Drive

**Eligible for 3.75 FHA 5/1 ARM or 3.99% fixed rate on eligible clearance homes when using builder’s preferred lender – terms and conditions apply – ask for details**Step into modern comfort with this spacious two-story Meridian model townhome. The main level features a chef-inspired kitchen and an open-concept layout that seamlessly connects to the Great Room and dining area, with direct access to a covered deck—perfect for entertaining or unwinding outdoors. Upstairs, three well-appointed bedrooms include a luxurious owner’s suite complete with a spa-style bathroom and walk-in closet. A flexible loft offers a shared living space ideal for work, play, or relaxation, while the conveniently located laundry room adds everyday ease. Stylish design elements include luxury vinyl plank flooring, sleek quartz countertops, and an unfinished basement ready for your personal touch. Located in a vibrant community, residents enjoy upscale shopping and dining at Denver Premium Outlets and a variety of recreational opportunities at Trail Winds Recreation Center—offering something for every lifestyle. Estimated completion date is November 2025.

Listing Office: Coldwell Banker Realty 56

Essential Information

  • MLS® #1521115
  • Price$549,350
  • Bedrooms3
  • Bathrooms3.00
  • Full Baths1
  • Half Baths1
  • Square Footage2,161
  • Acres0.07
  • Year Built2024
  • TypeResidential
  • Sub-TypeTownhouse
  • StyleContemporary
  • StatusPending

Community Information

  • Address6840 Juniper Drive
  • SubdivisionParterre
  • CityThornton
  • CountyAdams
  • StateCO
  • Zip Code80602

Amenities

  • Parking Spaces2
  • # of Garages2

Interior

  • HeatingForced Air
  • CoolingCentral Air
  • StoriesTwo

Interior Features

Eat-in Kitchen, Entrance Foyer, Kitchen Island, Open Floorplan, Primary Suite, Quartz Counters, Walk-In Closet(s)

Appliances

Dishwasher, Disposal, Microwave, Oven

Exterior

  • WindowsDouble Pane Windows
  • RoofComposition
  • FoundationSlab

School Information

  • DistrictSchool District 27-J
  • ElementaryWest Ridge
  • MiddleRoger Quist
  • HighRiverdale Ridge

Additional Information

  • Date ListedSeptember 18th, 2025

Listing Details

  • Coldwell Banker Realty 56
Please provide a valid email address.

Terms and Conditions: The content relating to real estate for sale in this Web site comes in part from the Internet Data eXchange ("IDX") program of METROLIST, INC., DBA RECOLORADO® Real estate listings held by brokers other than RE/MAX Professionals are marked with the IDX Logo. This information is being provided for the consumers personal, non-commercial use and may not be used for any other purpose. All information subject to change and should be independently verified.

Copyright 2025 METROLIST, INC., DBA RECOLORADO® -- All Rights Reserved 6455 S. Yosemite St., Suite 500 Greenwood Village, CO 80111 USA

Listing information last updated on December 28th, 2025 at 6:49am MST.