Connect

14810 Herring Road, Colorado Springs, CO – $1,700,000

  • 3 Beds
  • 3 Baths
  • 3,141 Sqft
  • 23.8 Acres
  • 3 Beds
  • 3 Baths
  • 3,141 Sqft
  • 23.8 Acres

New Search X

14810 Herring Road

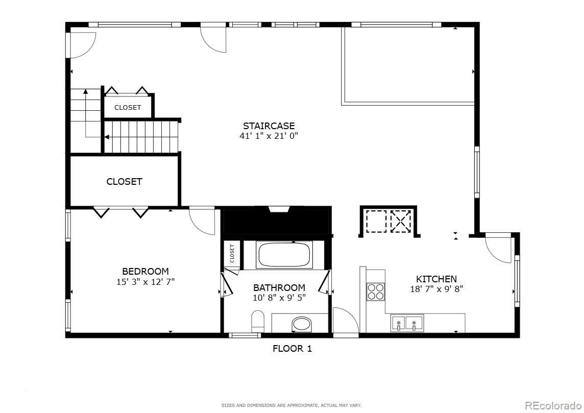
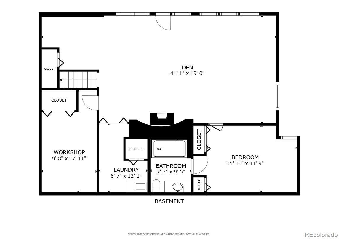
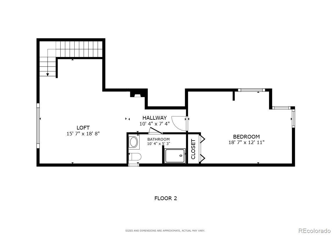
Tucked behind a canopy of mature Ponderosa pines, this tranquil property welcomes with an incredible architectural driveway leading to a portico with porch swing and fenced grounds. The home is surrounded by a multi-level terraced garden with paved walkways and walk-out access. Inside, the living room features soaring wood cathedral ceilings, a dramatic two-story natural rock fireplace, and south-facing windows for relaxing natural views and soothing passive solar warmth. The kitchen offers heated slate floors, a Jenn Air range, a hot water tap, and access to a covered west-facing deck with views stretching to Pikes Peak and the Front Range. The primary suite includes an oversized walk-in closet and an en-suite bath with radiant heat hardwood floors. The upstairs loft doubles as an office with a gas fireplace & built-in floor-to-ceiling shelving and glass-fronted cabinets. This level also offers a bedroom & bath. Downstairs, enjoy the peaceful sound of a cascading waterfall into a circular koi pond, part of a two-story atrium designed for year-round indoor gardening. Off of the walk-out family room, a secondary suite with attached bath is ready to accommodate guests. The finished garage includes an RV-height door and extra deep parking bays. Additional features include two wells, a dedicated workshop, laundry room with sink and chute, and zoning that permits livestock. Approximately half the acreage is mitigated, blending forest and native grass meadow that descends to a pond that is both spring fed & filled by the East Cherry Creek. Wildlife is abundant, and privacy is preserved while still offering easy access to Herring Road.

Listing Office: Coldwell Banker Realty BK

Essential Information

  • MLS® #1628455
  • Price$1,700,000
  • Bedrooms3
  • Bathrooms3.00
  • Full Baths1
  • Square Footage3,141
  • Acres23.80
  • Year Built1983
  • TypeResidential
  • Sub-TypeSingle Family Residence
  • StatusPending

Community Information

  • Address14810 Herring Road
  • SubdivisionWildwood Ranch Estates
  • CityColorado Springs
  • CountyEl Paso
  • StateCO
  • Zip Code80908

Amenities

  • Parking Spaces2
  • # of Garages2

Utilities

Electricity Available, Natural Gas Available

Parking

Asphalt, Circular Driveway, Oversized Door

Interior

  • HeatingForced Air, Passive Solar
  • CoolingNone
  • FireplaceYes
  • # of Fireplaces3
  • StoriesTwo

Interior Features

Built-in Features, Ceiling Fan(s), Entrance Foyer, Five Piece Bath, Kitchen Island, Open Floorplan, Pantry, Primary Suite, Vaulted Ceiling(s), Walk-In Closet(s)

Appliances

Dishwasher, Disposal, Dryer, Microwave, Oven, Range, Refrigerator

Fireplaces

Family Room, Gas, Living Room, Other, Wood Burning

Exterior

  • Lot DescriptionMany Trees, Sloped
  • RoofShingle

School Information

  • DistrictAcademy 20
  • ElementaryEdith Wolford
  • MiddleChinook Trail
  • HighPine Creek

Additional Information

  • Date ListedMay 30th, 2025
  • ZoningRR-5

Listing Details

  • Coldwell Banker Realty BK
Please provide a valid email address.

Terms and Conditions: The content relating to real estate for sale in this Web site comes in part from the Internet Data eXchange ("IDX") program of METROLIST, INC., DBA RECOLORADO® Real estate listings held by brokers other than RE/MAX Professionals are marked with the IDX Logo. This information is being provided for the consumers personal, non-commercial use and may not be used for any other purpose. All information subject to change and should be independently verified.

Copyright 2026 METROLIST, INC., DBA RECOLORADO® -- All Rights Reserved 6455 S. Yosemite St., Suite 500 Greenwood Village, CO 80111 USA

Listing information last updated on February 9th, 2026 at 9:48pm MST.