Connect

4681 S Lowell Boulevard, Denver, CO – $305,900

  • $306k Price
  • 4 Beds
  • 4 Baths
  • 2,166 Sqft
  • $306k Price
  • 4 Beds
  • 4 Baths
  • 2,166 Sqft

New Search X

4681 S Lowell Boulevard

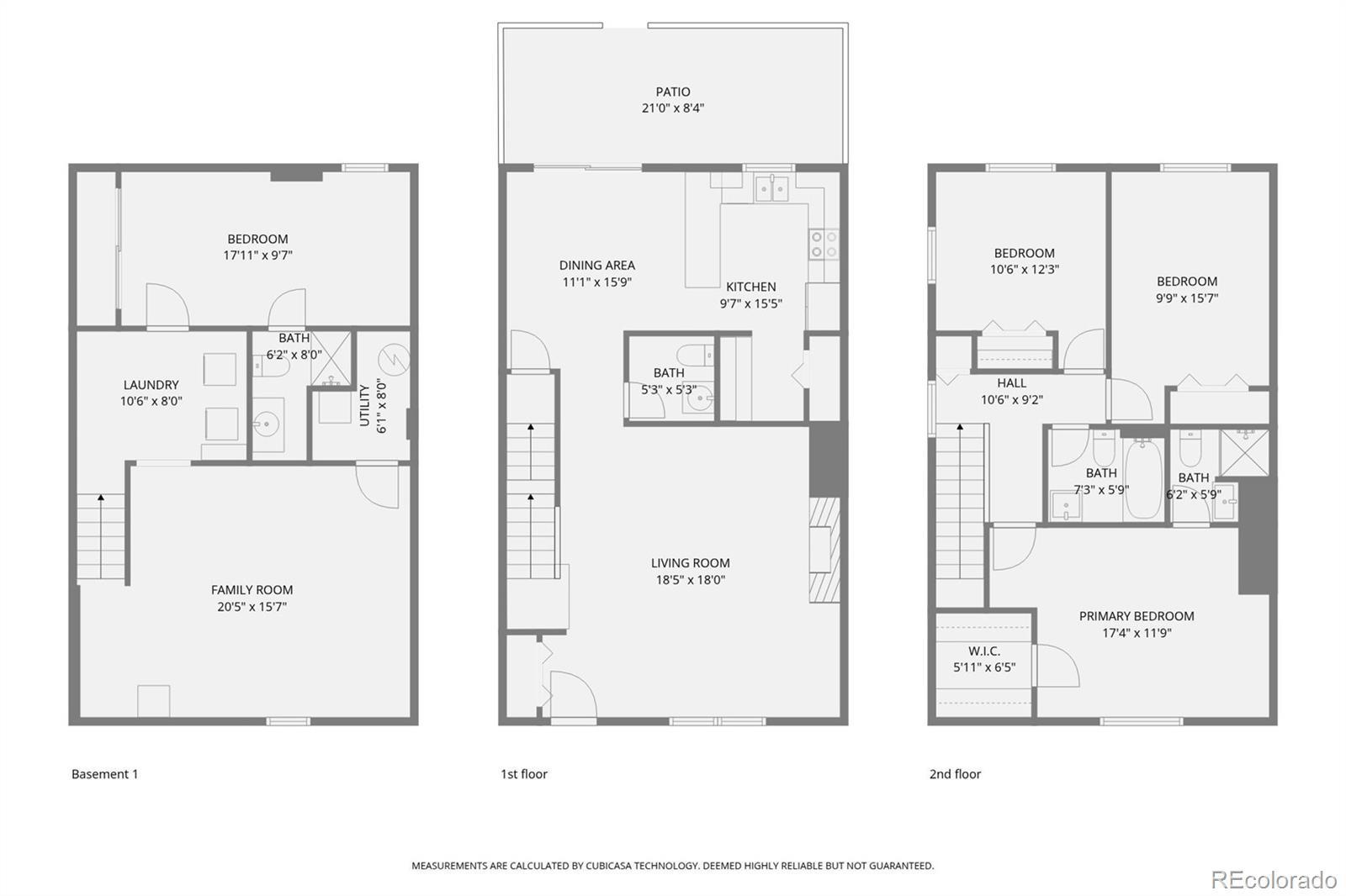
Spacious 4-bed, 4-bath townhome (1 non-conforming) just 1/2 block from public transit. This home offers great versatility and house-hacking potential with a finished basement featuring its own living area, non-conforming bedroom, and full en-suite bath. The main floor includes newer flooring, a bright living room with a wood-burning fireplace, dining area, and a functional kitchen with freshly painted cabinets and a butler’s pantry. Sliding glass doors open to a private, fenced, and covered patio. Upstairs you’ll find three bedrooms, including a primary suite with an attached bath and walk-in closet. Several bathrooms have been refreshed over time. Basement has brand-new carpet and an oversized laundry room for extra storage. Recent updates: • New furnace (2023) • New water heater (2025) • New basement carpet (2025) • New flooring in laundry room & basement bedroom (2025) • New upstairs & stair flooring (2023) • Fresh interior paint Includes one covered parking space + one permitted spot. Convenient to parks, shopping, restaurants, a golf course, and more.

Listing Office: Telos Real Estate Advisors, LLC

Essential Information

  • MLS® #1776164
  • Price$305,900
  • Bedrooms4
  • Bathrooms4.00
  • Full Baths1
  • Half Baths1
  • Square Footage2,166
  • Acres0.00
  • Year Built1973
  • TypeResidential
  • Sub-TypeCondominium
  • StatusPending

Community Information

  • Address4681 S Lowell Boulevard
  • SubdivisionFort Logan
  • CityDenver
  • CountyDenver
  • StateCO
  • Zip Code80236

Amenities

  • AmenitiesClubhouse, Parking
  • Parking Spaces2
  • ParkingAsphalt

Interior

  • HeatingForced Air, Natural Gas
  • CoolingAir Conditioning-Room
  • StoriesTwo

Appliances

Dishwasher, Disposal, Dryer, Microwave, Range, Refrigerator, Washer

Exterior

  • Exterior FeaturesPrivate Yard, Rain Gutters
  • RoofComposition

School Information

  • DistrictDenver 1
  • ElementaryKaiser
  • MiddleDSST: College View
  • HighJohn F. Kennedy

Additional Information

  • Date ListedNovember 21st, 2025
  • ZoningR-3

Listing Details

Telos Real Estate Advisors, LLC

Please provide a valid email address.

Terms and Conditions: The content relating to real estate for sale in this Web site comes in part from the Internet Data eXchange ("IDX") program of METROLIST, INC., DBA RECOLORADO® Real estate listings held by brokers other than RE/MAX Professionals are marked with the IDX Logo. This information is being provided for the consumers personal, non-commercial use and may not be used for any other purpose. All information subject to change and should be independently verified.

Copyright 2026 METROLIST, INC., DBA RECOLORADO® -- All Rights Reserved 6455 S. Yosemite St., Suite 500 Greenwood Village, CO 80111 USA

Listing information last updated on March 3rd, 2026 at 10:48pm MST.