Connect

1974 Van Buren Way 278, Aurora, CO – $70,000

  • $70k Price
  • 3 Beds
  • 2 Baths
  • 1,216 Sqft
  • $70k Price
  • 3 Beds
  • 2 Baths
  • 1,216 Sqft

New Search X

1974 Van Buren Way 278

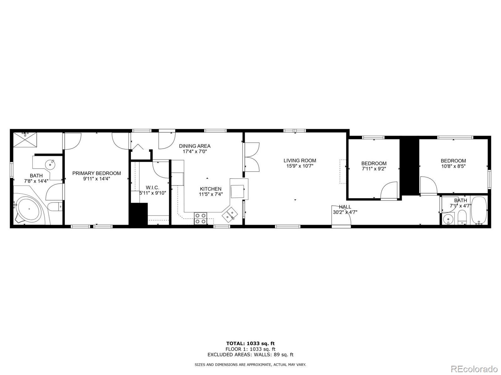
A sense of comfort and functionality defines this three-bedroom, two-bath manufactured home, presenting an approachable opportunity for homeownership without compromise. Offering 1,216 square feet of living space, the thoughtfully designed layout emphasizes light, flow, and connection, ensuring each room feels purposeful while maintaining a welcoming charm. The kitchen serves as a bright centerpiece, enhanced by a skylight and window that draw in natural light to highlight honey-toned cabinetry and parquet flooring. A clever passthrough with counter seating connects the kitchen to the living room, allowing conversations to carry easily and making entertaining feel effortless. The living room itself provides an inviting atmosphere with space for both everyday living and gatherings, while the open flow creates continuity between shared areas. Each bedroom is generously sized and well-appointed with excellent storage, offering flexibility for rest, work, or hobbies. The primary suite is a retreat of its own, complete with a large soaking tub, a separate shower, and ample vanity space designed for comfort and ease. Functionality continues with the convenience of in-unit laundry, while outside, mature trees and an adjacent greenbelt bring a sense of calm and privacy to the setting. This natural backdrop offers a refreshing oasis just beyond the door, a rare find at this price point. Practical details make life simpler, too, with the HOA handling road maintenance and snow removal, providing year-round ease and peace of mind. Together, these elements create a home that is both attainable and enriching, blending affordability with thoughtful design and a connection to its surroundings.

Listing Office: Real Broker, LLC DBA Real

Essential Information

  • MLS® #1909160
  • Price$70,000
  • Bedrooms3
  • Bathrooms2.00
  • Full Baths2
  • Square Footage1,216
  • Acres0.00
  • Year Built1995
  • TypeResidential
  • Sub-TypeSingle Family Residence
  • StyleTraditional
  • StatusPending

Community Information

  • Address1974 Van Buren Way 278
  • SubdivisionFriendly Village
  • CityAurora
  • CountyAdams
  • StateCO
  • Zip Code80011

Amenities

  • Parking Spaces2

Utilities

Cable Available, Electricity Available, Electricity Connected, Internet Access (Wired), Natural Gas Available, Natural Gas Connected, Phone Available

Interior

  • HeatingForced Air
  • CoolingEvaporative Cooling
  • StoriesOne

Interior Features

Eat-in Kitchen, Five Piece Bath, High Ceilings, High Speed Internet, No Stairs, Primary Suite, Vaulted Ceiling(s)

Appliances

Dishwasher, Disposal, Microwave, Range, Range Hood, Refrigerator

Exterior

  • WindowsSkylight(s)
  • RoofComposition

School Information

  • DistrictAdams-Arapahoe 28J
  • ElementaryAltura
  • MiddleEast
  • HighHinkley

Additional Information

  • Date ListedSeptember 4th, 2025

Listing Details

  • Real Broker, LLC DBA Real
Please provide a valid email address.

Terms and Conditions: The content relating to real estate for sale in this Web site comes in part from the Internet Data eXchange ("IDX") program of METROLIST, INC., DBA RECOLORADO® Real estate listings held by brokers other than RE/MAX Professionals are marked with the IDX Logo. This information is being provided for the consumers personal, non-commercial use and may not be used for any other purpose. All information subject to change and should be independently verified.

Copyright 2025 METROLIST, INC., DBA RECOLORADO® -- All Rights Reserved 6455 S. Yosemite St., Suite 500 Greenwood Village, CO 80111 USA

Listing information last updated on December 26th, 2025 at 3:48pm MST.