Connect

1184 Merion Place, Broomfield, CO – $825,000

  • 4 Beds
  • 3 Baths
  • 2,908 Sqft
  • .21 Acres
  • 4 Beds
  • 3 Baths
  • 2,908 Sqft
  • .21 Acres

New Search X

1184 Merion Place

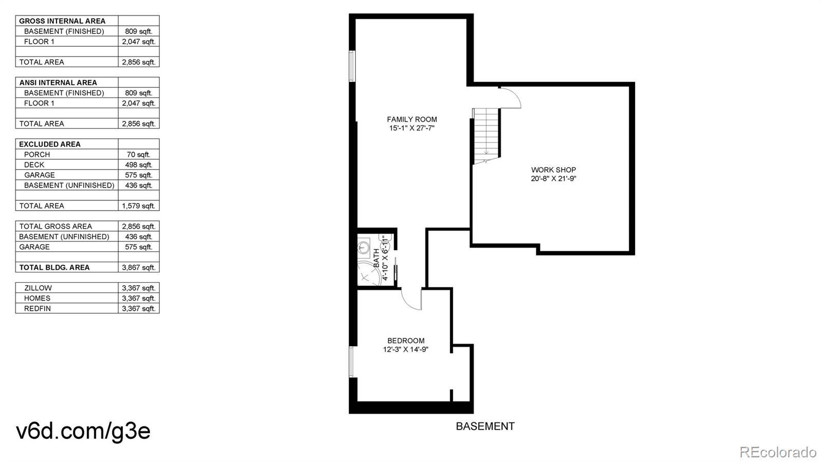
Main-Level Comfort Meets a Prime Broomfield Location in this beautifully updated ranch-style home located in the desirable Broomfield Country Club neighborhood. With a classic brick exterior, fenced yard, and leased solar panels for lower energy bills, this home offers comfort, efficiency, and true main-level living. The main floor features three bedrooms, including a spacious primary suite with a remodeled bath showcasing double sinks, a walk-in shower with seating, and a walk-in closet. Enjoy effortless living with a formal dining area and sitting room, perfect for entertaining or quiet evenings at home. The open-concept kitchen is the heart of the home, offering granite countertops, stainless steel appliances, a gas range, and a casual eating area that flows into the cozy family room with a fireplace. French doors lead to a covered patio, creating seamless indoor-outdoor living. Additional main-level conveniences include a laundry room with sink and granite countertop, plus a washer and dryer included. The oversized two-car garage provides ample room for parking and storage. The finished basement expands your living space with a versatile recreation or bonus room perfect for a home theater or flex space, a fourth bedroom, and a 3/4 bath, along with additional unfinished space ideal for storage or future customization. Step outside to your own outdoor oasis, featuring a fenced backyard, mature trees, and a covered patio—perfect for relaxing or entertaining. Located within the Boulder Valley School District, this home offers an exceptional combination of comfort, functionality, and location. Easy access to shopping and Broomfield amenities. Come see it today and experience main-floor living at its best.

Listing Office: Berkshire Hathaway HomeServices Colorado Real Estate, LLC

Essential Information

  • MLS® #2019431
  • Price$825,000
  • Bedrooms4
  • Bathrooms3.00
  • Full Baths1
  • Square Footage2,908
  • Acres0.21
  • Year Built1989
  • TypeResidential
  • Sub-TypeSingle Family Residence
  • StatusActive

Community Information

  • Address1184 Merion Place
  • CityBroomfield
  • CountyBroomfield
  • StateCO
  • Zip Code80020

Subdivision

Broomfield Country Club Filing 4

Amenities

  • Parking Spaces2
  • ParkingConcrete
  • # of Garages2

Utilities

Cable Available, Electricity Connected

Interior

  • HeatingForced Air
  • CoolingCentral Air
  • FireplaceYes
  • # of Fireplaces1
  • StoriesOne

Interior Features

Ceiling Fan(s), Eat-in Kitchen, Granite Counters, Open Floorplan, Pantry, Primary Suite, Radon Mitigation System, Smoke Free, Vaulted Ceiling(s)

Appliances

Dishwasher, Disposal, Dryer, Gas Water Heater, Microwave, Oven, Range, Refrigerator

Exterior

  • WindowsDouble Pane Windows
  • RoofComposition

School Information

  • DistrictBoulder Valley RE 2
  • ElementaryBirch
  • MiddleAspen Creek K-8
  • HighBroomfield

Additional Information

  • Date ListedJanuary 29th, 2026

Listing Details

Berkshire Hathaway HomeServices Colorado Real Estate, LLC

Please provide a valid email address.

Terms and Conditions: The content relating to real estate for sale in this Web site comes in part from the Internet Data eXchange ("IDX") program of METROLIST, INC., DBA RECOLORADO® Real estate listings held by brokers other than RE/MAX Professionals are marked with the IDX Logo. This information is being provided for the consumers personal, non-commercial use and may not be used for any other purpose. All information subject to change and should be independently verified.

Copyright 2026 METROLIST, INC., DBA RECOLORADO® -- All Rights Reserved 6455 S. Yosemite St., Suite 500 Greenwood Village, CO 80111 USA

Listing information last updated on February 8th, 2026 at 4:18pm MST.