Connect

6857 E 149th Avenue, Thornton, CO – $574,850

  • 4 Beds
  • 4 Baths
  • 2,166 Sqft
  • .06 Acres
  • 4 Beds
  • 4 Baths
  • 2,166 Sqft
  • .06 Acres

New Search X

6857 E 149th Avenue

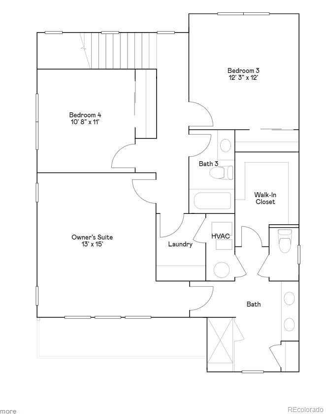
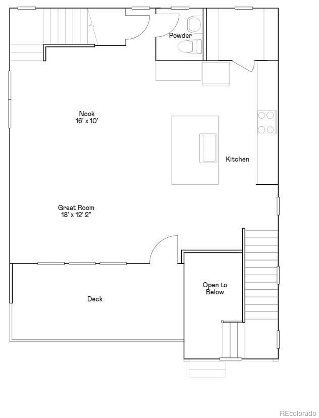
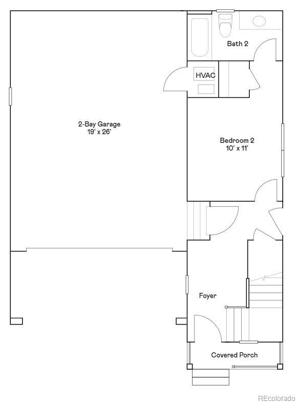
**Available with rates as low as 3.75 % when using builder’s preferred lender – terms and conditions apply – ask for details****Contact builder today about Special Financing for this home - terms and conditions apply**Welcome to the Skyline Collection, where contemporary design meets easy, everyday living. This thoughtfully designed three-story home offers a flexible first-floor bedroom with a private en-suite bath—ideal for guests, multigenerational living, or a home office. The second level serves as the main living space, featuring a bright open-concept layout that seamlessly connects the kitchen, dining, and living areas, perfect for both entertaining and daily life. Upstairs, three spacious bedrooms include a private owner’s suite with a spa-inspired bathroom and generous walk-in closet, along with a conveniently located laundry room. Ideally situated near shopping and dining at Denver Premium Outlets and abundant recreation at Trail Winds Recreation Center. Estimated Completion is April of 2026.

Listing Office: Coldwell Banker Realty 56

Essential Information

  • MLS® #2026376
  • Price$574,850
  • Bedrooms4
  • Bathrooms4.00
  • Full Baths2
  • Half Baths1
  • Square Footage2,166
  • Acres0.06
  • Year Built2024
  • TypeResidential
  • Sub-TypeSingle Family Residence
  • StyleContemporary
  • StatusActive

Community Information

  • Address6857 E 149th Avenue
  • SubdivisionParterre
  • CityThornton
  • CountyAdams
  • StateCO
  • Zip Code80602

Amenities

  • UtilitiesElectricity Connected
  • Parking Spaces2
  • # of Garages2

Amenities

Garden Area, Park, Playground, Tennis Court(s), Trail(s)

Interior

  • HeatingForced Air
  • CoolingCentral Air
  • StoriesTri-Level

Interior Features

Breakfast Bar, Eat-in Kitchen, Entrance Foyer, High Ceilings, In-Law Floorplan, Kitchen Island, Open Floorplan, Pantry, Primary Suite, Quartz Counters, Walk-In Closet(s)

Appliances

Dishwasher, Disposal, Microwave, Oven, Refrigerator

Exterior

  • Exterior FeaturesBalcony, Rain Gutters
  • Lot DescriptionCorner Lot
  • WindowsDouble Pane Windows
  • RoofComposition

School Information

  • DistrictSchool District 27-J
  • ElementaryWest Ridge
  • MiddleRoger Quist
  • HighRiverdale Ridge

Additional Information

  • Date ListedFebruary 2nd, 2026

Listing Details

  • Coldwell Banker Realty 56
Please provide a valid email address.

Terms and Conditions: The content relating to real estate for sale in this Web site comes in part from the Internet Data eXchange ("IDX") program of METROLIST, INC., DBA RECOLORADO® Real estate listings held by brokers other than RE/MAX Professionals are marked with the IDX Logo. This information is being provided for the consumers personal, non-commercial use and may not be used for any other purpose. All information subject to change and should be independently verified.

Copyright 2026 METROLIST, INC., DBA RECOLORADO® -- All Rights Reserved 6455 S. Yosemite St., Suite 500 Greenwood Village, CO 80111 USA

Listing information last updated on February 6th, 2026 at 6:04am MST.