Connect

20568 E Lake Place, Aurora, CO – $510,000

  • 2 Beds
  • 3 Baths
  • 1,537 Sqft
  • .08 Acres
  • 2 Beds
  • 3 Baths
  • 1,537 Sqft
  • .08 Acres

New Search X

20568 E Lake Place

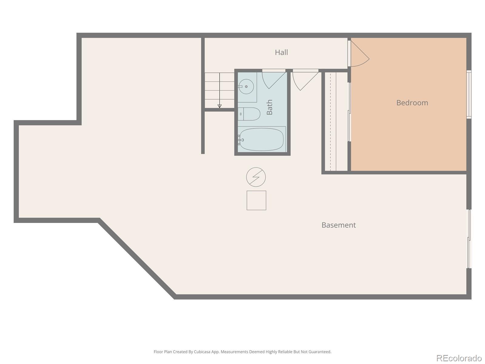
Step into 20568 E Lake Pl and feel the spacious ease of ranch-style living! The open layout with large windows gathers living, dining, and kitchen spaces into one connected heart of the home flooded with natural light. Primary bedroom upstairs plus a dedicated office (with a closet) offers flexibility for work, guests, or hobbies. The laundry room has been plumbed for a shower, so you can easily make the powder room into a ¾ bathroom! The walk-out basement has a large bedroom and full bathroom but the huge unfinished portion expands possibilities: future finishing, storage, workout space, or large flex space. Outside, the Greenfield neighborhood wraps you in amenities: pool, clubhouse, playgrounds, and winding trails that lace through nearby open space. Weekend errands stay easy with convenient access to shopping and dining, and the home sits within the Cherry Creek School District. A polished, inviting home in a community that encourages both play and ease and ready to welcome its next chapter!

Listing Office: Lincoln Real Estate Group LLC

Essential Information

  • MLS® #2032838
  • Price$510,000
  • Bedrooms2
  • Bathrooms3.00
  • Full Baths1
  • Half Baths1
  • Square Footage1,537
  • Acres0.08
  • Year Built2003
  • TypeResidential
  • Sub-TypeTownhouse
  • StatusActive

Community Information

  • Address20568 E Lake Place
  • SubdivisionGreenfield
  • CityAurora
  • CountyArapahoe
  • StateCO
  • Zip Code80016

Amenities

  • Parking Spaces2
  • ParkingConcrete, Oversized
  • # of Garages2

Amenities

Clubhouse, Park, Playground, Pond Seasonal, Pool, Tennis Court(s), Trail(s)

Utilities

Cable Available, Electricity Connected, Natural Gas Connected, Phone Connected

Interior

  • HeatingForced Air, Natural Gas
  • CoolingCentral Air
  • FireplaceYes
  • # of Fireplaces1
  • FireplacesFamily Room, Gas
  • StoriesOne

Interior Features

Ceiling Fan(s), Central Vacuum, Granite Counters, Open Floorplan, Pantry, Smoke Free, Walk-In Closet(s)

Appliances

Dishwasher, Disposal, Dryer, Microwave, Oven, Refrigerator, Washer

Exterior

  • RoofComposition
  • FoundationStructural

Lot Description

Sprinklers In Front, Sprinklers In Rear

Windows

Double Pane Windows, Window Coverings

School Information

  • DistrictCherry Creek 5
  • ElementaryRolling Hills
  • MiddleFalcon Creek
  • HighGrandview

Additional Information

  • Date ListedDecember 18th, 2025

Listing Details

  • Lincoln Real Estate Group LLC
Please provide a valid email address.

Terms and Conditions: The content relating to real estate for sale in this Web site comes in part from the Internet Data eXchange ("IDX") program of METROLIST, INC., DBA RECOLORADO® Real estate listings held by brokers other than RE/MAX Professionals are marked with the IDX Logo. This information is being provided for the consumers personal, non-commercial use and may not be used for any other purpose. All information subject to change and should be independently verified.

Copyright 2026 METROLIST, INC., DBA RECOLORADO® -- All Rights Reserved 6455 S. Yosemite St., Suite 500 Greenwood Village, CO 80111 USA

Listing information last updated on January 2nd, 2026 at 9:48am MST.