Connect

9114 Old Divide Drive, Colorado Springs, CO – $524,900

  • 4 Beds
  • 3 Baths
  • 2,073 Sqft
  • .14 Acres
  • 4 Beds
  • 3 Baths
  • 2,073 Sqft
  • .14 Acres

New Search X

9114 Old Divide Drive

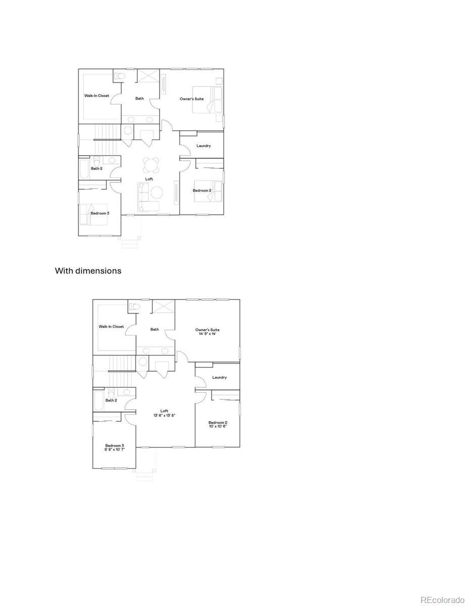
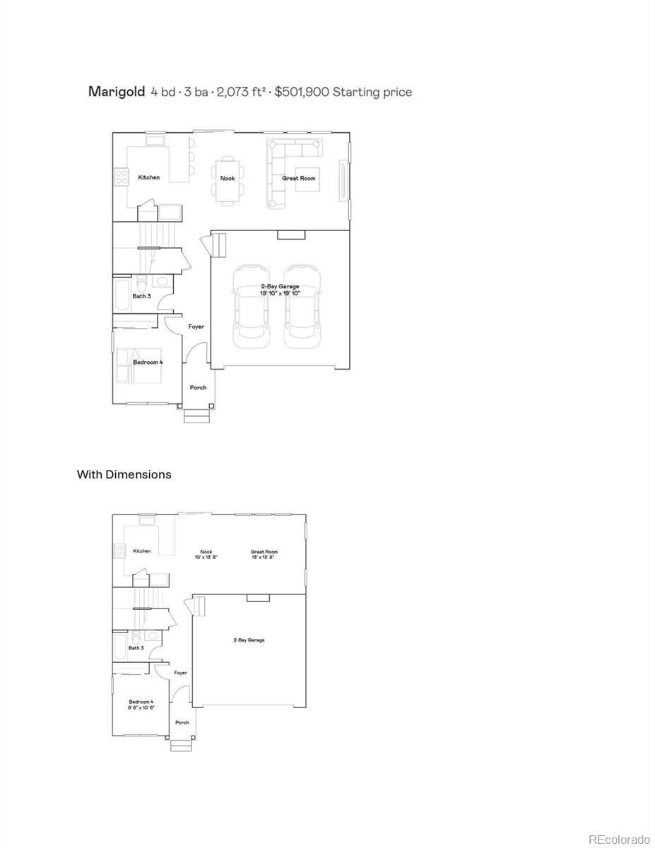
***Contact builder today about Special Financing for this home - terms and conditions apply** Anticipated completion November 2025! This gorgeous Marigold 2-story in Percheron features 4 beds (3 upper / 1 main), 2 baths, great room, kitchen, loft, 2 car garage and crawlspace. Beautiful upgrades and finishes throughout including vinyl plank floors, stainless steel appliances, slab Quartz counters and more. This builder provides the latest in energy efficiency and state of the art technology with several fabulous floorplans to choose from. Energy efficiency & technology/connectivity seamlessly blended with luxury to make your new house a home. What some builders consider high-end upgrades, the builder makes a standard inclusion. This community offers single family homes for every lifestyle. Close to dining, shopping, entertainment and other amenities. Don’t wait – this community will sell out quickly! Photos and walkthrough tour are model only and subject to change.

Listing Office: RE/MAX Professionals

Essential Information

  • MLS® #2057669
  • Price$524,900
  • Bedrooms4
  • Bathrooms3.00
  • Full Baths2
  • Square Footage2,073
  • Acres0.14
  • Year Built2025
  • TypeResidential
  • Sub-TypeSingle Family Residence
  • StatusPending

Community Information

  • Address9114 Old Divide Drive
  • SubdivisionPercheron
  • CityColorado Springs
  • CountyEl Paso
  • StateCO
  • Zip Code80908

Amenities

  • Parking Spaces2
  • ParkingConcrete, Tandem
  • # of Garages2

Utilities

Cable Available, Electricity Available, Electricity Connected, Natural Gas Available, Natural Gas Connected, Phone Available

Interior

  • HeatingForced Air, Natural Gas
  • CoolingCentral Air
  • StoriesTwo

Interior Features

Breakfast Bar, Kitchen Island, Pantry, Quartz Counters, Smoke Free, Walk-In Closet(s)

Appliances

Dishwasher, Disposal, Microwave, Refrigerator, Self Cleaning Oven

Exterior

  • Exterior FeaturesPrivate Yard, Rain Gutters
  • WindowsDouble Pane Windows
  • RoofComposition

School Information

  • DistrictDistrict 49
  • ElementaryInspiration View
  • MiddleSky View
  • HighVista Ridge

Additional Information

  • Date ListedOctober 24th, 2025
  • ZoningRES

Listing Details

  • RE/MAX Professionals
Please provide a valid email address.

Terms and Conditions: The content relating to real estate for sale in this Web site comes in part from the Internet Data eXchange ("IDX") program of METROLIST, INC., DBA RECOLORADO® Real estate listings held by brokers other than RE/MAX Professionals are marked with the IDX Logo. This information is being provided for the consumers personal, non-commercial use and may not be used for any other purpose. All information subject to change and should be independently verified.

Copyright 2025 METROLIST, INC., DBA RECOLORADO® -- All Rights Reserved 6455 S. Yosemite St., Suite 500 Greenwood Village, CO 80111 USA

Listing information last updated on November 5th, 2025 at 2:34pm MST.