Connect

7843 S Cherokee Trail, Centennial, CO – $748,350

  • 4 Beds
  • 3 Baths
  • 2,379 Sqft
  • .1 Acres
  • 4 Beds
  • 3 Baths
  • 2,379 Sqft
  • .1 Acres

New Search X

7843 S Cherokee Trail

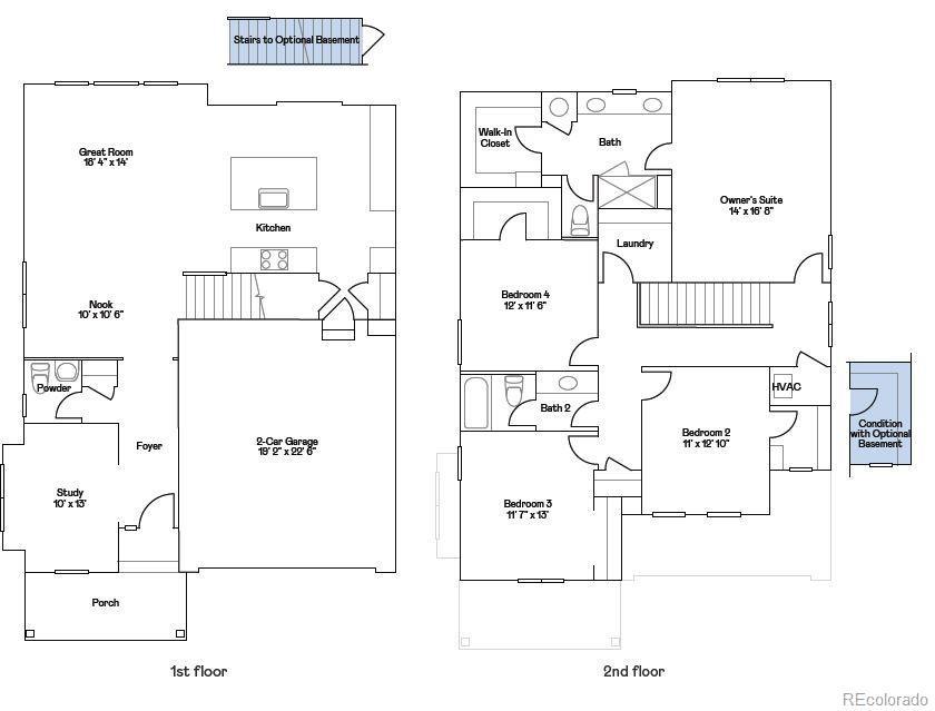
**Contact builder today about Special Financing for this home - terms and conditions apply** Move In Ready NOW!! This home has it all! This popular floor plan is sure to impress. Beautiful Pinnacle 2-story in the brand new Vermilion community boasts tons of windows, one of the largest kitchens offered with tons of cabinets and massive center island! Convenient study on the main level offers additional space and versatile use! Upstairs features 4 bedrooms, 2.5 bathrooms, and spacious laundry room. Other features include a 2-car garage! Enjoy gorgeous finishes and upgrades including stainless steel appliances, vinyl plank flooring, slab quartz counters/island, and more! This community offers single-family homes tailored to every lifestyle. Discover the charm of this vibrant community with something for everyone. Photos and walkthrough tours represent the model and are subject to change. Association fee subject to change. This home comes with washer, dryer & whole home blinds. Enjoy easy access to Tagawa Gardens and the Cherry Creek Trails right outside your neighborhood.

Listing Office: RE/MAX Professionals

Essential Information

  • MLS® #2106831
  • Price$748,350
  • Bedrooms4
  • Bathrooms3.00
  • Full Baths1
  • Half Baths1
  • Square Footage2,379
  • Acres0.10
  • Year Built2025
  • TypeResidential
  • Sub-TypeSingle Family Residence
  • StatusActive

Community Information

  • Address7843 S Cherokee Trail
  • SubdivisionVermilion
  • CityCentennial
  • CountyArapahoe
  • StateCO
  • Zip Code80016

Amenities

  • Parking Spaces2
  • ParkingConcrete
  • # of Garages2

Utilities

Cable Available, Electricity Available, Electricity Connected, Natural Gas Available, Natural Gas Connected, Phone Available

Interior

  • HeatingForced Air, Natural Gas
  • CoolingCentral Air
  • StoriesTwo

Interior Features

Breakfast Bar, Kitchen Island, Open Floorplan, Primary Suite, Smoke Free, Walk-In Closet(s)

Appliances

Dishwasher, Disposal, Microwave, Oven, Refrigerator

Exterior

  • Exterior FeaturesRain Gutters
  • WindowsDouble Pane Windows
  • RoofComposition

School Information

  • DistrictCherry Creek 5
  • ElementaryRed Hawk Ridge
  • MiddleLiberty
  • HighGrandview

Additional Information

  • Date ListedJanuary 15th, 2026

Listing Details

  • RE/MAX Professionals
Please provide a valid email address.

Terms and Conditions: The content relating to real estate for sale in this Web site comes in part from the Internet Data eXchange ("IDX") program of METROLIST, INC., DBA RECOLORADO® Real estate listings held by brokers other than RE/MAX Professionals are marked with the IDX Logo. This information is being provided for the consumers personal, non-commercial use and may not be used for any other purpose. All information subject to change and should be independently verified.

Copyright 2026 METROLIST, INC., DBA RECOLORADO® -- All Rights Reserved 6455 S. Yosemite St., Suite 500 Greenwood Village, CO 80111 USA

Listing information last updated on January 27th, 2026 at 12:03pm MST.