Connect

4605 Quebec Street B4, Denver, CO – $475,000

  • $475k Price
  • 2,023 Sqft
  • 3.13 Acres
  • $475k Price
  • 2,023 Sqft
  • 3.13 Acres

New Search X

4605 Quebec Street B4

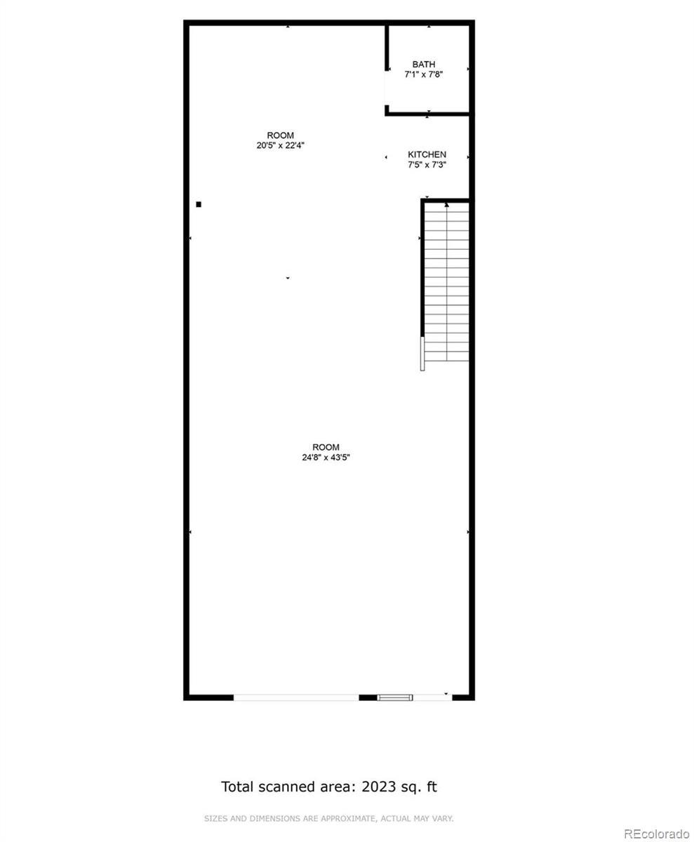
Meticulously maintained and updated industrial flex/office/warehouse space conveniently located near the major transportation corridors of I-70, I-270, and just minutes from I-225. Situated in a thriving business hub near the Northfield and Central Park neighborhoods, units in this building are rarely for sale. Property Highlights: 1433 SF main floor with flexible layout including a storage room, kitchenette and private half bathroom. An additional 590 SF Mezzanine ideal for office conversion, storage, or additional workspace. 20’ Ceilings throughout the warehouse area. Drive right into unit through the 10’ x 10’ Oversized Door (potential for expansion). Abundant Natural Light via south-facing windows and skylight. Updated electrical panel & lighting with built-in cabinets for added storage. HVAC system and water heater included. Professionally managed with HOA dues of $399.95/month, covering water, trash, snow removal, roof maintenance, and common area upkeep. Additional parking in lot out front of the building, This property offers unbeatable value for owner-users or investors seeking a versatile space suitable for a wide variety of light industrial, office, or business operations. A security perimeter fence around the building and lot will be going in soon. Contact us today to schedule a private tour!

Listing Office: LoKation

Essential Information

  • MLS® #2113023
  • Price$475,000
  • Bathrooms0.00
  • Square Footage2,023
  • Acres3.13
  • Year Built2007
  • TypeCommercial Sale
  • Sub-TypeIndustrial
  • StatusActive
  • FeaturesDrive Indoors

Community Information

  • Address4605 Quebec Street B4
  • CityDenver
  • CountyDenver
  • StateCO
  • Zip Code80216

Amenities

  • Parking Spaces8
  • # of Garages2

Utilities

Cable Available, Electricity Connected, Internet Access (Wired), Phone Available

Parking

Asphalt, Concrete, Exterior Access Door, Finished Garage, Heated Garage, Insulated Garage, Lighted, Oversized, Oversized Door, RV Garage, Storage, Tandem

Exterior

  • Lot DescriptionLevel
  • RoofTar/Gravel, Unknown

Additional Information

  • Date ListedJuly 31st, 2025
  • ZoningI-B

Listing Details

  • LoKation
Please provide a valid email address.

Terms and Conditions: The content relating to real estate for sale in this Web site comes in part from the Internet Data eXchange ("IDX") program of METROLIST, INC., DBA RECOLORADO® Real estate listings held by brokers other than RE/MAX Professionals are marked with the IDX Logo. This information is being provided for the consumers personal, non-commercial use and may not be used for any other purpose. All information subject to change and should be independently verified.

Copyright 2025 METROLIST, INC., DBA RECOLORADO® -- All Rights Reserved 6455 S. Yosemite St., Suite 500 Greenwood Village, CO 80111 USA

Listing information last updated on November 4th, 2025 at 11:03pm MST.