Connect

560 Gunsmoke Drive, Bailey, CO – $630,000

  • 3 Beds
  • 3 Baths
  • 2,150 Sqft
  • 1 Acres
  • 3 Beds
  • 3 Baths
  • 2,150 Sqft
  • 1 Acres

New Search X

560 Gunsmoke Drive

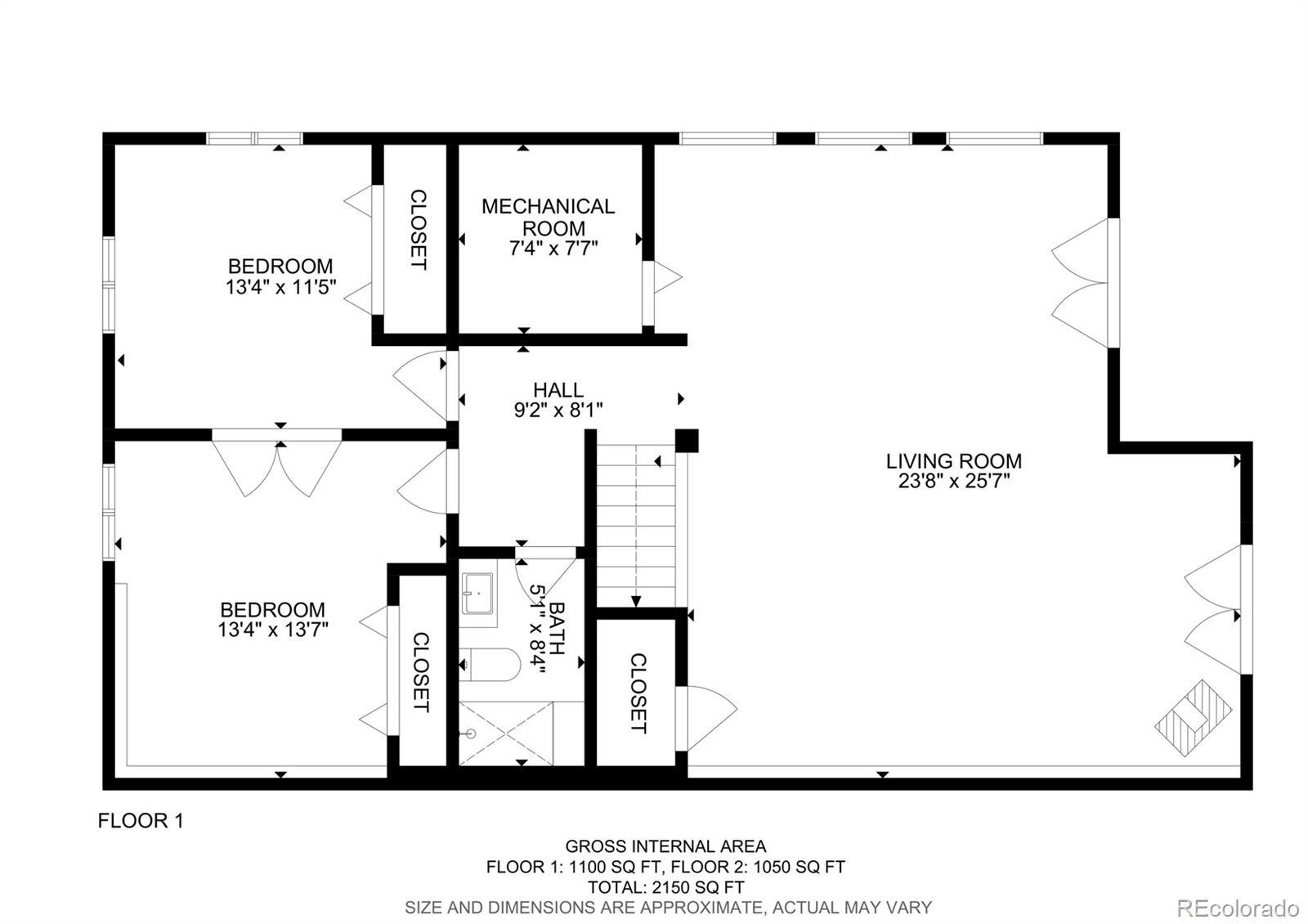
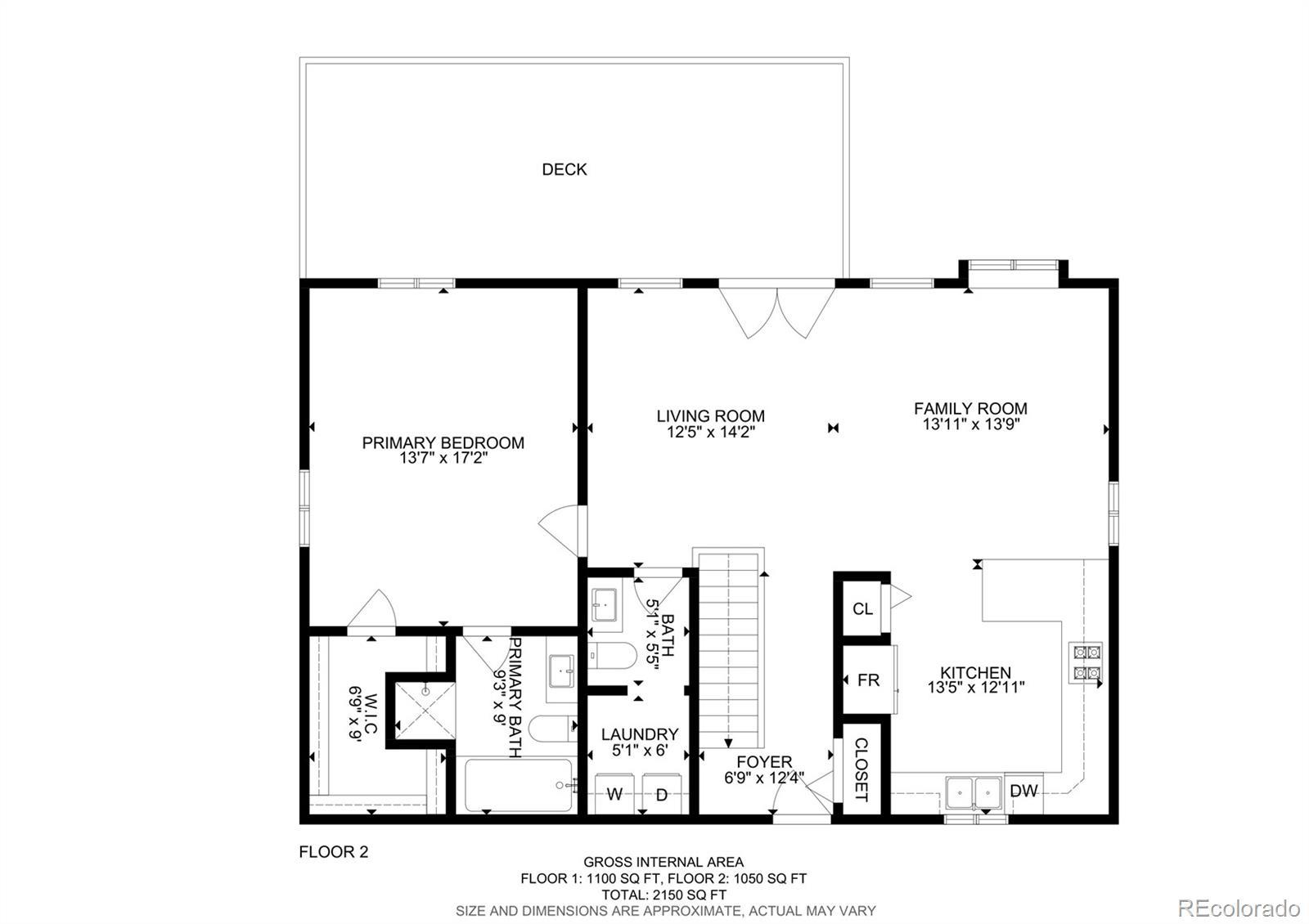
PROPERTY QUALIFIES FOR A $0 DOWN 100% USDA MORTGAGE LOAN - ask your Mortgage Broker!!! Discover peaceful mountain living in this beautifully updated 3-bed, 2-bath home on a private 1-acre lot in the desirable Deer Creek Valley Ranchos community. Built in 1994, this inviting property blends rustic Colorado character with modern comfort and thoughtful upgrades throughout. The bright open-concept main level features vaulted ceilings, large view windows, and direct access to a spacious deck—perfect for enjoying the crisp mountain air or evening sunsets. The kitchen boasts stylish concrete counters, warm wood cabinetry, stainless-steel appliances, and ample workspace for cooking and entertaining. The primary suite offers a peaceful retreat with abundant light and storage. Main floor laundry room. The lower level includes two comfortable bedrooms, a large cozy family room with a gas fireplace and over-sized south facing windows, and a beautifully updated ¾ bath. French doors lead directly outside, creating seamless indoor-outdoor living. Outside, mature pines and aspens frame the fenced yard, providing privacy and natural beauty. This gently sloping lot offers room to build your dream garage, ADU, workshop, or even corral/stables for animals. Major updates include a brand-new Navien furnace and tankless water heater, plus a whole-home water purification system, ensuring energy efficiency and clean mountain living and a brand new septic system (2025). Additional features include newer flooring, fresh paint, and a storage shed. Conveniently located just minutes from Hwy 285, yet tucked away in the pines, this comfortable mountain home provides an easy commute to Denver while preserving the tranquility of Bailey’s mountain lifestyle. Enjoy nearby hiking, fishing, and abundant wildlife from your own private retreat. 560 Gunsmoke Drive offers the ideal combination of modern upgrades, natural beauty, and endless potential—all in the heart of Colorado’s mountain paradise.

Listing Office: Trenthams Realty

Essential Information

  • MLS® #2120360
  • Price$630,000
  • Bedrooms3
  • Bathrooms3.00
  • Full Baths1
  • Half Baths1
  • Square Footage2,150
  • Acres1.00
  • Year Built1994
  • TypeResidential
  • Sub-TypeSingle Family Residence
  • StyleTraditional
  • StatusActive

Community Information

  • Address560 Gunsmoke Drive
  • SubdivisionDeer Creek Valley Ranchos
  • CityBailey
  • CountyPark
  • StateCO
  • Zip Code80421

Amenities

  • Parking Spaces5
  • ParkingGravel
  • ViewMountain(s)

Utilities

Electricity Connected, Natural Gas Connected, Phone Available

Interior

  • HeatingForced Air
  • CoolingNone
  • FireplaceYes
  • # of Fireplaces1
  • FireplacesBasement
  • StoriesTwo

Interior Features

Concrete Counters, Five Piece Bath, High Ceilings, High Speed Internet, Open Floorplan, Pantry, Primary Suite, Radon Mitigation System, Smoke Free, Vaulted Ceiling(s), Walk-In Closet(s)

Appliances

Bar Fridge, Dishwasher, Disposal, Dryer, Microwave, Oven, Refrigerator, Tankless Water Heater, Washer, Water Purifier

Exterior

  • Exterior FeaturesDog Run, Rain Gutters
  • WindowsDouble Pane Windows
  • RoofComposition
  • FoundationConcrete Perimeter, Slab

School Information

  • DistrictPlatte Canyon RE-1
  • ElementaryDeer Creek
  • MiddleFitzsimmons
  • HighPlatte Canyon

Additional Information

  • Date ListedOctober 23rd, 2025
  • ZoningR

Listing Details

  • Trenthams Realty
Please provide a valid email address.

Terms and Conditions: The content relating to real estate for sale in this Web site comes in part from the Internet Data eXchange ("IDX") program of METROLIST, INC., DBA RECOLORADO® Real estate listings held by brokers other than RE/MAX Professionals are marked with the IDX Logo. This information is being provided for the consumers personal, non-commercial use and may not be used for any other purpose. All information subject to change and should be independently verified.

Copyright 2026 METROLIST, INC., DBA RECOLORADO® -- All Rights Reserved 6455 S. Yosemite St., Suite 500 Greenwood Village, CO 80111 USA

Listing information last updated on February 1st, 2026 at 11:19pm MST.