Connect

302 Bennett Avenue, Bennett, CO – $462,900

  • $463k Price
  • 3 Beds
  • 3 Baths
  • 1,635 Sqft
  • $463k Price
  • 3 Beds
  • 3 Baths
  • 1,635 Sqft

New Search X

302 Bennett Avenue

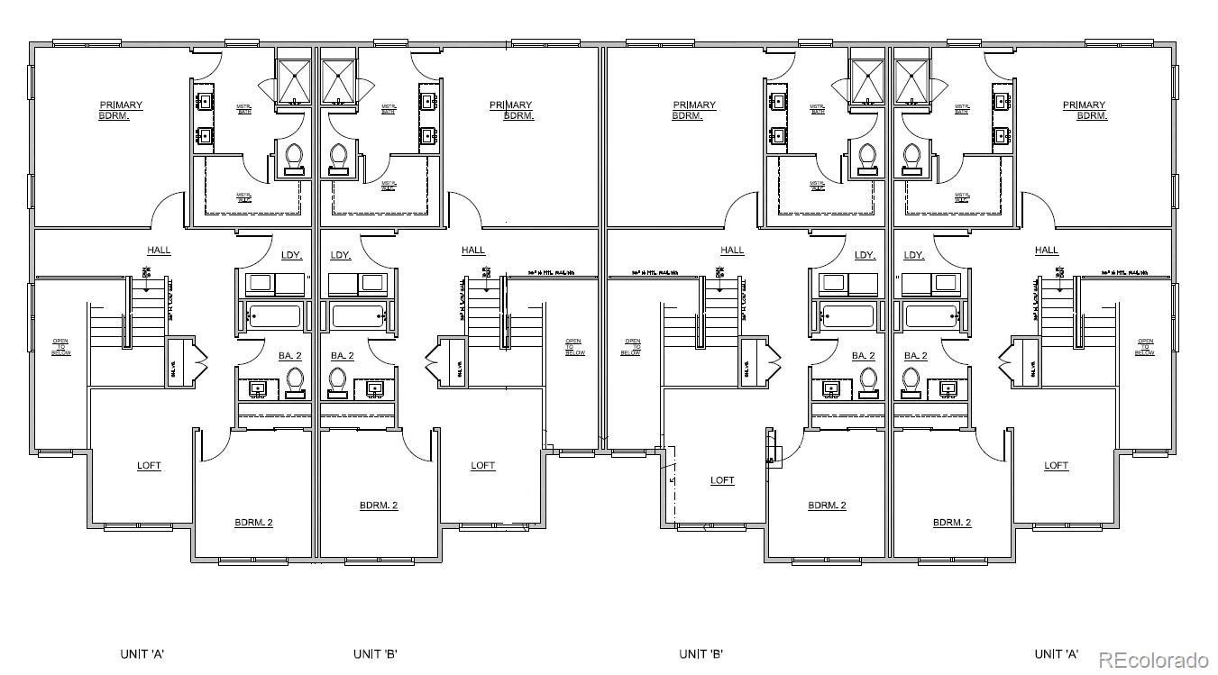
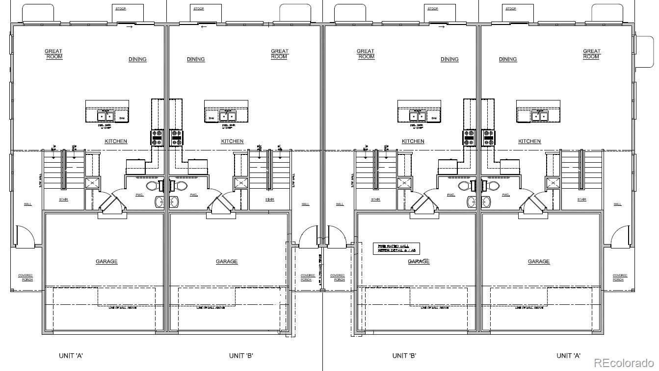
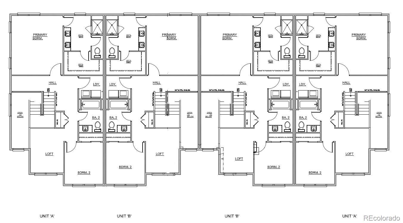
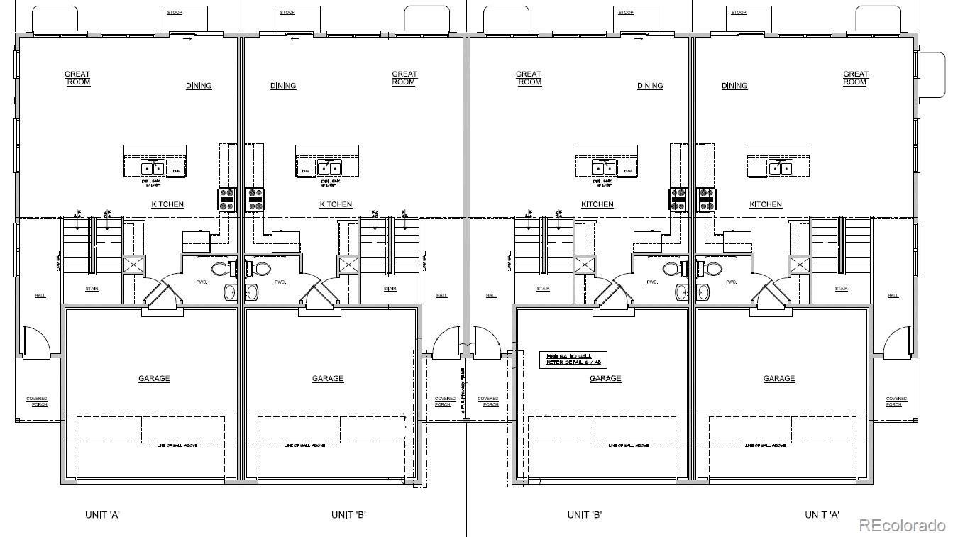
FULL BASEMENT, READY TO FINISH!! FENCED BACK YARD!! The bright, open-concept floor plan features 3 bedrooms and two and a half bathrooms, perfect for comfortable family living or entertaining the residence is finished to a high standard, with tasteful details throughout. Highlights include luxury vinyl plank flooring on the main level, plush carpeting in the bedrooms, and contemporary light fixtures. The spacious kitchen is equipped with sleek granite countertops, shaker cabinets, stainless steel appliances, and a large kitchen island. The luxurious primary suite serves as a private retreat, complete with a generously sized walk-in closet and a spa-inspired ensuite bathroom featuring dual vanities and a large walk-in shower. Additional conveniences include an upstairs laundry area and an attached two-car garage. The main floor has ADA friendly features including a zero-entry front door for ease of access. This townhome seamlessly blends comfort, style, and low-maintenance living. Visit www.bennettavetownhomes.com for more information.

Listing Office: Six Star Properties LLC

Essential Information

  • MLS® #2138907
  • Price$462,900
  • Bedrooms3
  • Bathrooms3.00
  • Full Baths1
  • Half Baths1
  • Square Footage1,635
  • Acres0.00
  • Year Built2025
  • TypeResidential
  • Sub-TypeTownhouse
  • StatusActive

Community Information

  • Address302 Bennett Avenue
  • SubdivisionBennett Avenue Townhomes
  • CityBennett
  • CountyAdams
  • StateCO
  • Zip Code80102

Amenities

  • Parking Spaces2
  • ParkingConcrete, Lighted
  • # of Garages2

Utilities

Electricity Connected, Natural Gas Connected

Interior

  • HeatingForced Air, Natural Gas
  • CoolingCentral Air
  • StoriesTwo

Interior Features

Ceiling Fan(s), Granite Counters, Kitchen Island, Open Floorplan, Primary Suite, Smoke Free, Walk-In Closet(s)

Appliances

Dishwasher, Disposal, Microwave, Refrigerator, Self Cleaning Oven

Exterior

  • Exterior FeaturesPrivate Yard, Rain Gutters
  • Lot DescriptionSprinklers In Front
  • WindowsDouble Pane Windows
  • RoofComposition
  • FoundationStructural

School Information

  • DistrictBennett 29-J
  • ElementaryBennett
  • MiddleBennett
  • HighBennett

Additional Information

  • Date ListedDecember 1st, 2025

Listing Details

  • Six Star Properties LLC
Please provide a valid email address.

Terms and Conditions: The content relating to real estate for sale in this Web site comes in part from the Internet Data eXchange ("IDX") program of METROLIST, INC., DBA RECOLORADO® Real estate listings held by brokers other than RE/MAX Professionals are marked with the IDX Logo. This information is being provided for the consumers personal, non-commercial use and may not be used for any other purpose. All information subject to change and should be independently verified.

Copyright 2026 METROLIST, INC., DBA RECOLORADO® -- All Rights Reserved 6455 S. Yosemite St., Suite 500 Greenwood Village, CO 80111 USA

Listing information last updated on February 3rd, 2026 at 3:48pm MST.