Connect

4270 W 13th Avenue, Denver, CO – $750,000

  • 3 Beds
  • 5 Baths
  • 1,777 Sqft
  • .02 Acres
  • 3 Beds
  • 5 Baths
  • 1,777 Sqft
  • .02 Acres

New Search X

4270 W 13th Avenue

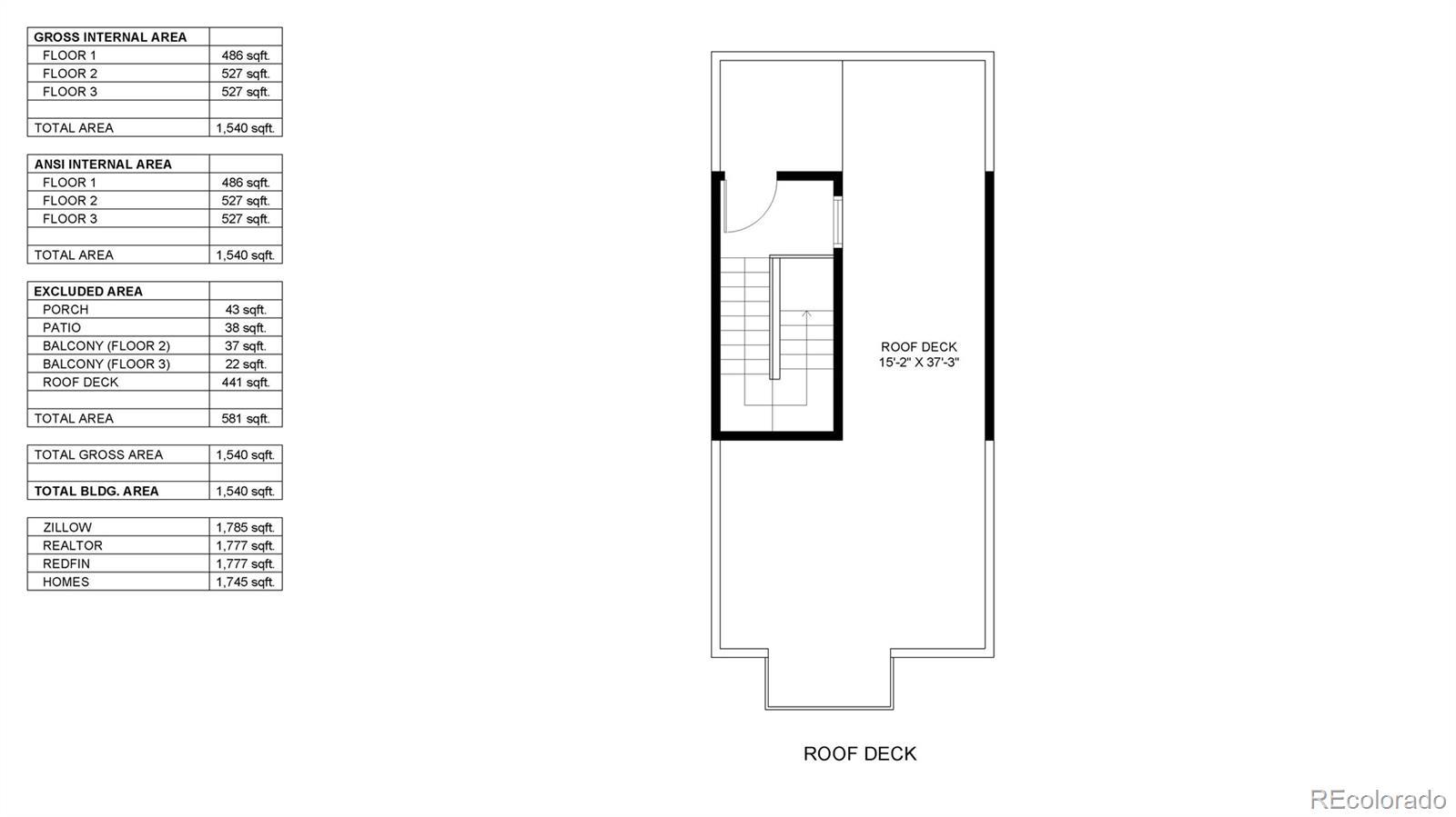
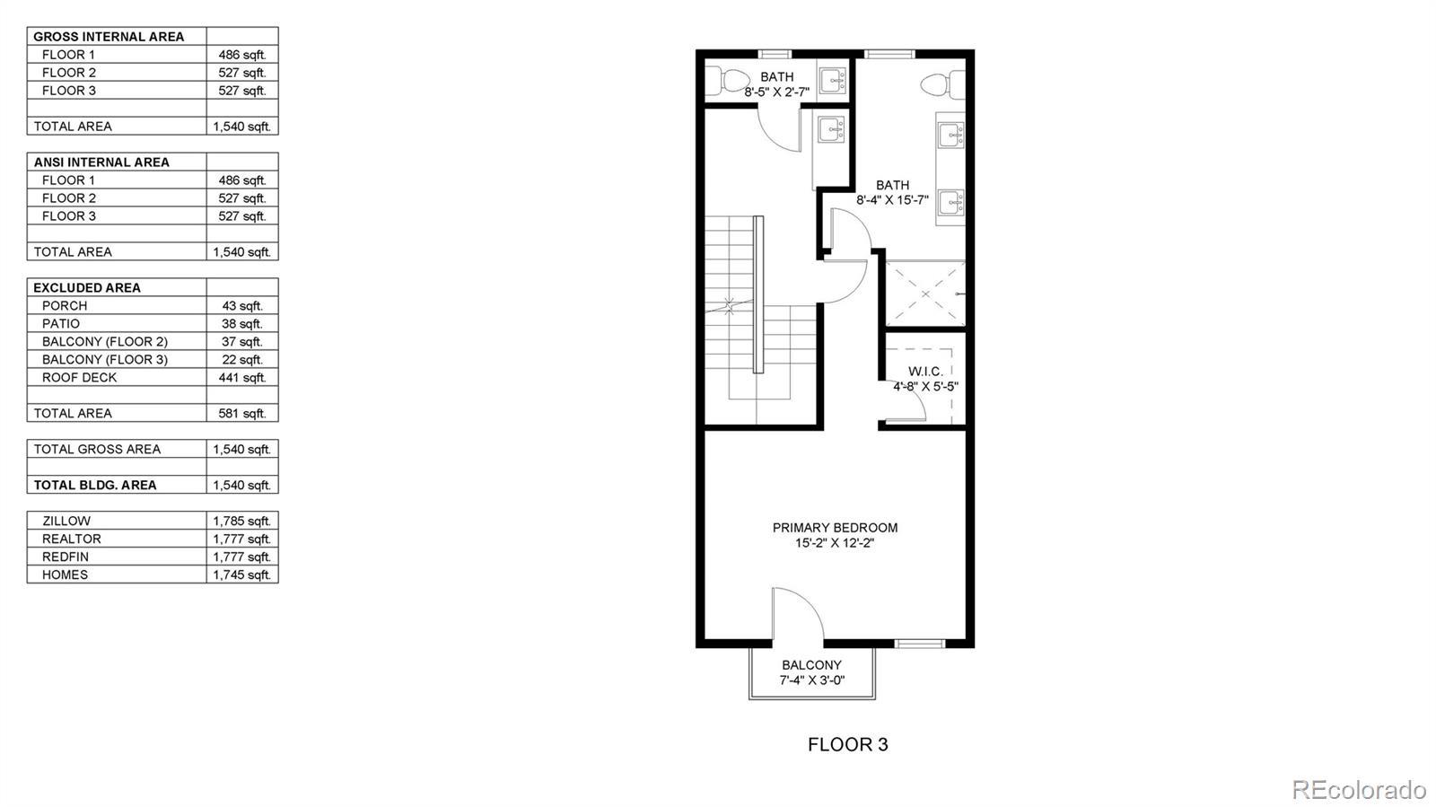
INCREDIBLE LOCATION + ROOFTOP DECK with STUNNING CITY AND MTN VIEWS! Experience modern city living at its best in this nearly brand new 3 story, 3 bedroom, 5 bath home located in one of Denver’s most sought-after neighborhoods: the vibrant West Colfax area near Sloan’s Lake. Inside, every detail has been carefully curated to create a home that’s as beautiful as it is functional. The gourmet kitchen features waterfall quartz countertops, high-end stainless appliances, tile backsplash, and sleek modern cabinetry. You’ll love the wide-plank hardwood floors, Anderson windows, custom wrought iron stair railings, and designer finishes throughout. Each bedroom offers its own beautifully designed bathroom, including two junior suites (one with a private deck) plus a luxurious primary suite with its own private outdoor space and walk-in closet. The rooftop deck is built with durable, weather-resistant Trex-like material and includes a gas hookup, making it perfect for entertaining year-round. With no HOA, a private furnace, your own water meter, and a small backyard area, you’ll appreciate the independence and low maintenance lifestyle this home provides. The detached one-car garage offers extra room to add ceiling storage, if desired. All of this is just steps from Sloan’s Lake, local parks, fun restaurants and shops, the Sheridan Light Rail Station, and with easy access to downtown and the mountains!

Listing Office: Compass - Denver

Essential Information

  • MLS® #2454300
  • Price$750,000
  • Bedrooms3
  • Bathrooms5.00
  • Full Baths2
  • Half Baths2
  • Square Footage1,777
  • Acres0.02
  • Year Built2022
  • TypeResidential
  • Sub-TypeTownhouse
  • StyleUrban Contemporary
  • StatusActive

Community Information

  • Address4270 W 13th Avenue
  • SubdivisionVilla Park / West Colfax
  • CityDenver
  • CountyDenver
  • StateCO
  • Zip Code80204

Amenities

  • Parking Spaces1
  • # of Garages1
  • ViewCity, Mountain(s)

Interior

  • HeatingForced Air, Natural Gas
  • CoolingCentral Air
  • StoriesThree Or More

Interior Features

Breakfast Bar, Ceiling Fan(s), Eat-in Kitchen, Entrance Foyer, High Ceilings, Open Floorplan, Pantry, Quartz Counters, Smoke Free, Vaulted Ceiling(s), Walk-In Closet(s), Wet Bar

Appliances

Dishwasher, Disposal, Dryer, Microwave, Oven, Refrigerator, Washer

Exterior

  • Exterior FeaturesBalcony, Gas Valve
  • Lot DescriptionSprinklers In Front
  • RoofRolled/Hot Mop

Windows

Double Pane Windows, Window Treatments

School Information

  • DistrictDenver 1
  • ElementaryColfax
  • MiddleStrive Lake
  • HighNorth

Additional Information

  • Date ListedNovember 13th, 2025

Listing Details

  • Compass - Denver
Please provide a valid email address.

Terms and Conditions: The content relating to real estate for sale in this Web site comes in part from the Internet Data eXchange ("IDX") program of METROLIST, INC., DBA RECOLORADO® Real estate listings held by brokers other than RE/MAX Professionals are marked with the IDX Logo. This information is being provided for the consumers personal, non-commercial use and may not be used for any other purpose. All information subject to change and should be independently verified.

Copyright 2025 METROLIST, INC., DBA RECOLORADO® -- All Rights Reserved 6455 S. Yosemite St., Suite 500 Greenwood Village, CO 80111 USA

Listing information last updated on December 24th, 2025 at 5:18pm MST.