Connect

240 W 6th Avenue, Broomfield, CO – $584,900

  • 5 Beds
  • 3 Baths
  • 2,445 Sqft
  • .23 Acres
  • 5 Beds
  • 3 Baths
  • 2,445 Sqft
  • .23 Acres

New Search X

240 W 6th Avenue

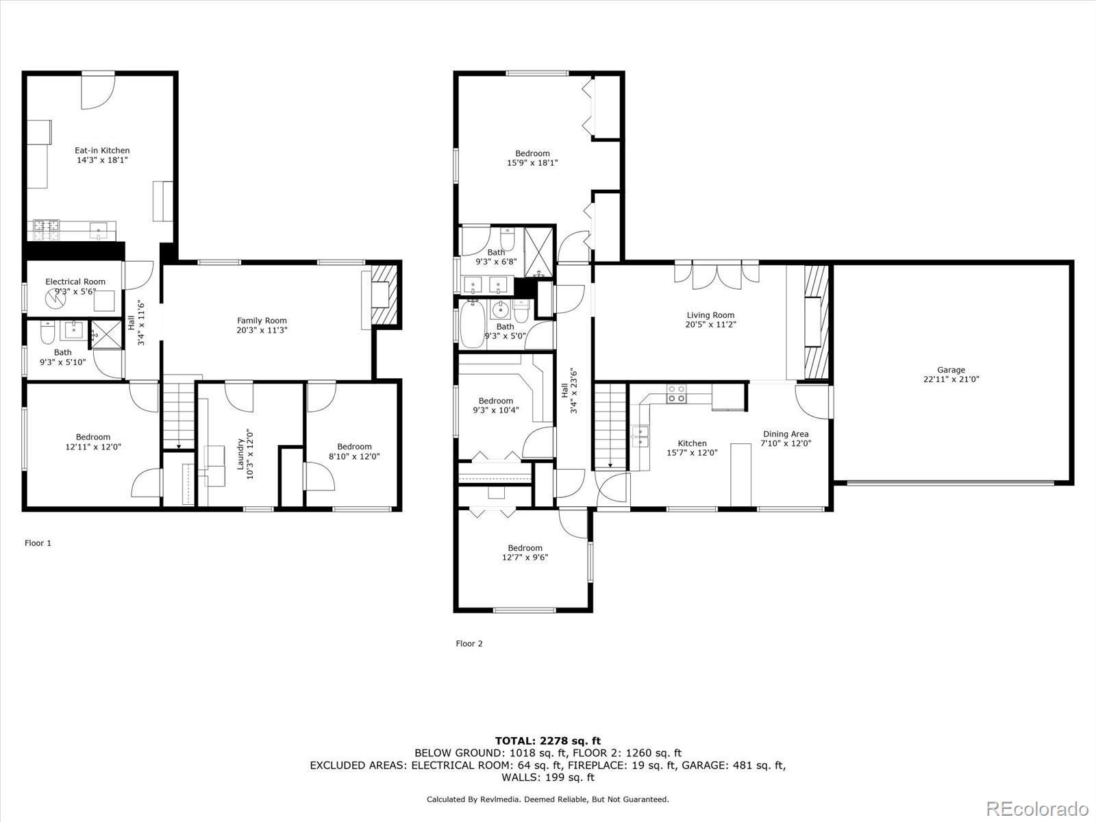
Spacious 5-bedroom, 3-bath home in the heart of Broomfield with over 3,000 square feet! Built in 1959, this property combines classic charm with modern finishes. The main level offers bright living spaces, a functional kitchen, and generously sized bedrooms. The finished basement features a private entrance to a full mother-in-law suite with its own living area, kitchen, bedroom, and bath—perfect for multi-generational living or rental income opportunities. Enjoy a large lot with room to entertain, garden, or relax outdoors. Conveniently located near schools, parks, shopping, and dining with easy access to Boulder, Denver, and surrounding areas. A rare find offering versatility, space, and location all in one!

Listing Office: RE/MAX Professionals

Essential Information

  • MLS® #2560531
  • Price$584,900
  • Bedrooms5
  • Bathrooms3.00
  • Full Baths1
  • Square Footage2,445
  • Acres0.23
  • Year Built1959
  • TypeResidential
  • Sub-TypeSingle Family Residence
  • StatusPending

Community Information

  • Address240 W 6th Avenue
  • SubdivisionBroomfield Heights
  • CityBroomfield
  • CountyBroomfield
  • StateCO
  • Zip Code80020

Amenities

  • Parking Spaces2
  • # of Garages2

Interior

  • HeatingForced Air
  • CoolingCentral Air
  • StoriesOne

Interior Features

Ceiling Fan(s), Eat-in Kitchen, Granite Counters, Primary Suite

Appliances

Dishwasher, Disposal, Dryer, Humidifier, Microwave, Oven, Range, Refrigerator, Washer

Exterior

  • Exterior FeaturesPrivate Yard
  • RoofComposition

School Information

  • DistrictBoulder Valley RE 2
  • ElementaryKohl
  • MiddleAspen Creek K-8
  • HighBroomfield

Additional Information

  • Date ListedAugust 25th, 2025
  • ZoningR-1

Listing Details

  • RE/MAX Professionals
Please provide a valid email address.

Terms and Conditions: The content relating to real estate for sale in this Web site comes in part from the Internet Data eXchange ("IDX") program of METROLIST, INC., DBA RECOLORADO® Real estate listings held by brokers other than RE/MAX Professionals are marked with the IDX Logo. This information is being provided for the consumers personal, non-commercial use and may not be used for any other purpose. All information subject to change and should be independently verified.

Copyright 2025 METROLIST, INC., DBA RECOLORADO® -- All Rights Reserved 6455 S. Yosemite St., Suite 500 Greenwood Village, CO 80111 USA

Listing information last updated on November 3rd, 2025 at 9:49pm MST.