Connect

6425 Tremolite Drive, Castle Rock, CO – $1,550,000

  • 6 Beds
  • 5 Baths
  • 5,530 Sqft
  • .91 Acres
  • 6 Beds
  • 5 Baths
  • 5,530 Sqft
  • .91 Acres

New Search X

6425 Tremolite Drive

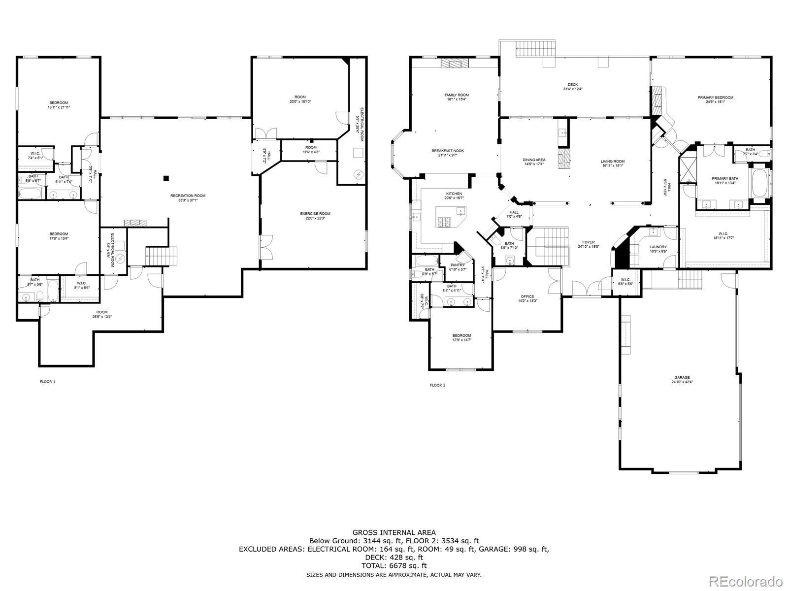
APPRAISED AT $1,650,000. Welcome to this exceptional home nestled on nearly a full acre in the coveted Puma Ridge community, offering 6 bedrooms, 5 bathrooms, a 4-car garage, and a walkout basement. A grand circular driveway welcomes you to the stately entrance, drawing you into an elegant foyer with custom niche details and expansive windows that showcase breathtaking views. The formal living space, with access to the deck, shares a three-sided fireplace with the ample formal dining room, complete with a wet bar for effortless entertaining. In the updated gourmet kitchen, matte black cabinetry complements the stunning quartz countertops, shimmering backsplash, and stainless steel appliances. A breakfast bar and charming nook framed by bay windows provide casual dining options. The area opens to the great room, where contemporary shiplap enhances the gas fireplace and entertainment space. Beyond the powder room and spacious walk-in pantry, a guest bedroom with soaring ceilings sits next to a well-appointed study. The primary suite is a luxurious retreat with space for a sitting area by the third gas fireplace and private access to the expansive back deck. Step through the distinctive double doors to the renovated en-suite bathroom, featuring large-format marble floors, a soaking tub, and a generous walk-in shower. A cedar-lined walk-in closet, flooded with natural light, completes this refined space. Downstairs, the light-filled recreation area offers endless possibilities, with another gas fireplace and access to the dry walk-out patio. Three additional bedrooms, two bathrooms, a gym (or sixth bedroom), and a bonus room extend off the spacious recreation area, creating plenty of space for entertainment or relaxation. Outside, the landscaped yard is framed by mature trees and panoramic views, creating a serene and picturesque backdrop in this prestigious neighborhood. This home embodies luxury Colorado living at its finest, priced to sell!

Listing Office: Meta Properties Group

Essential Information

  • MLS® #2667060
  • Price$1,550,000
  • Bedrooms6
  • Bathrooms5.00
  • Full Baths4
  • Half Baths1
  • Square Footage5,530
  • Acres0.91
  • Year Built2007
  • TypeResidential
  • Sub-TypeSingle Family Residence
  • StatusActive

Community Information

  • Address6425 Tremolite Drive
  • SubdivisionPuma Ridge
  • CityCastle Rock
  • CountyDouglas
  • StateCO
  • Zip Code80108

Amenities

  • Parking Spaces4
  • # of Garages4

Amenities

Clubhouse, Pool, Spa/Hot Tub, Tennis Court(s), Trail(s)

Utilities

Electricity Connected, Natural Gas Connected

Parking

Circular Driveway, Concrete, Exterior Access Door, Finished Garage, Floor Coating, Oversized

Interior

  • HeatingForced Air, Natural Gas
  • CoolingCentral Air
  • FireplaceYes
  • # of Fireplaces4
  • StoriesOne

Interior Features

Breakfast Bar, Built-in Features, Entrance Foyer, Five Piece Bath, High Ceilings, Kitchen Island, Open Floorplan, Pantry, Primary Suite, Quartz Counters, Vaulted Ceiling(s), Walk-In Closet(s)

Appliances

Cooktop, Dishwasher, Disposal, Double Oven, Dryer, Microwave, Refrigerator, Washer

Fireplaces

Basement, Gas, Gas Log, Great Room, Living Room, Primary Bedroom

Exterior

  • Exterior FeaturesPrivate Yard, Rain Gutters
  • WindowsDouble Pane Windows
  • RoofUnknown

Lot Description

Greenbelt, Irrigated, Landscaped, Level

School Information

  • DistrictDouglas RE-1
  • ElementarySage Canyon
  • MiddleMesa
  • HighDouglas County

Additional Information

  • Date ListedApril 10th, 2025

Listing Details

  • Meta Properties Group
Please provide a valid email address.

Terms and Conditions: The content relating to real estate for sale in this Web site comes in part from the Internet Data eXchange ("IDX") program of METROLIST, INC., DBA RECOLORADO® Real estate listings held by brokers other than RE/MAX Professionals are marked with the IDX Logo. This information is being provided for the consumers personal, non-commercial use and may not be used for any other purpose. All information subject to change and should be independently verified.

Copyright 2025 METROLIST, INC., DBA RECOLORADO® -- All Rights Reserved 6455 S. Yosemite St., Suite 500 Greenwood Village, CO 80111 USA

Listing information last updated on November 7th, 2025 at 10:18pm MST.