Connect

471 High Drive, Castle Rock, CO – $800,000

  • 4 Beds
  • 3 Baths
  • 2,392 Sqft
  • .28 Acres
  • 4 Beds
  • 3 Baths
  • 2,392 Sqft
  • .28 Acres

New Search X

471 High Drive

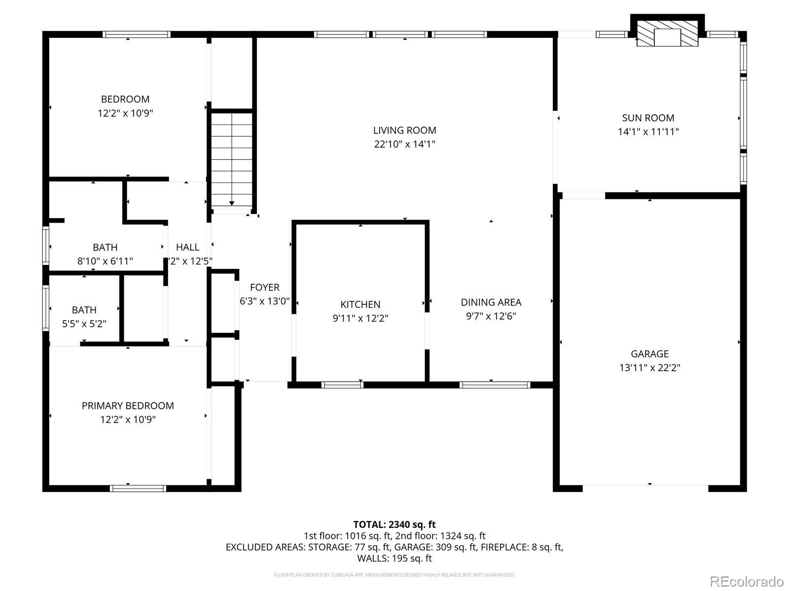
Welcome to a truly flexible Castle Rock opportunity just 0.7 miles from the heart of downtown. This upgraded ranch-style home offers an innovative layout, a walk-out basement, and a location that fits nearly every lifestyle — from young families to downsizers, multi-gen households, or anyone wanting a quiet neighborhood with walkability to town. Step inside a beautifully remodeled and upgraded kitchen featuring modern finishes and thoughtful functionality — the kind of space that works just as well for busy weeknights as for hosting. On the main level, the ranch layout provides easy, no-stairs living ideal for anyone wanting a simple, comfortable flow. The main level has 2 bedrooms and 1.5 baths. The WOW factor on this level is a giant window in the living room that overlooks your backyard retreat, mountains, and parts of town. Wildlife visitors come by frequently. The walk-out basement has 1 bedroom (non-conforming; possibly 2, depending on the buyer's choice in the flex room), and 1 bathroom (recently updated). This expands the possibilities even further. With brand-new carpet and fresh paint. Many amenities. This space is move-in ready and can serve as many things: • A dedicated home office or studio • Guest quarters for visiting family and friends • A hobby, fitness, or play space An Airbnb, per the town. Has an RV parking A perfect blend of vintage bones and modern possibility. Don't miss this NO-HOA terrific neighborhood! For those who love time outdoors, the oversized lot and peaceful setting are perfect for gardening, relaxing evenings, or creating your own outdoor entertaining space. The quiet, established neighborhood gives you breathing room, yet you’re only moments from the Recreation Center/ Senior Center, Rock Park-The Star, Festival Park, D. County Events, Tri Arts Center, and more. A remodeled kitchen, refreshed basement, walkability, and endless use-case options — this home is ready for its next chapter, and it’s designed to fit yours.

Listing Office: Realty One Group Premier

Essential Information

  • MLS® #2668018
  • Price$800,000
  • Bedrooms4
  • Bathrooms3.00
  • Full Baths2
  • Half Baths1
  • Square Footage2,392
  • Acres0.28
  • Year Built1965
  • TypeResidential
  • Sub-TypeSingle Family Residence
  • StatusActive

Community Information

  • Address471 High Drive
  • SubdivisionCastle Rock Heights
  • CityCastle Rock
  • CountyDouglas
  • StateCO
  • Zip Code80104

Amenities

  • Parking Spaces1
  • ParkingConcrete
  • # of Garages1
  • ViewCity, Mountain(s)

Utilities

Cable Available, Electricity Connected, Natural Gas Connected, Phone Available

Interior

  • HeatingForced Air, Natural Gas
  • FireplaceYes
  • # of Fireplaces2
  • StoriesOne

Interior Features

Built-in Features, High Speed Internet, Smoke Free

Appliances

Dishwasher, Disposal, Double Oven, Dryer, Gas Water Heater, Microwave, Oven, Range, Refrigerator, Self Cleaning Oven, Washer

Cooling

Air Conditioning-Room, Central Air

Fireplaces

Basement, Gas Log, Other, Wood Burning

Exterior

  • RoofComposition
  • FoundationConcrete Perimeter

Exterior Features

Fire Pit, Garden, Private Yard, Rain Gutters

Lot Description

Landscaped, Many Trees, Sprinklers In Front, Sprinklers In Rear

Windows

Window Coverings, Window Treatments

School Information

  • DistrictDouglas RE-1
  • ElementarySouth Ridge
  • MiddleMesa
  • HighDouglas County

Additional Information

  • Date ListedDecember 4th, 2025
  • ZoningR-1

Listing Details

  • Realty One Group Premier
Please provide a valid email address.

Terms and Conditions: The content relating to real estate for sale in this Web site comes in part from the Internet Data eXchange ("IDX") program of METROLIST, INC., DBA RECOLORADO® Real estate listings held by brokers other than RE/MAX Professionals are marked with the IDX Logo. This information is being provided for the consumers personal, non-commercial use and may not be used for any other purpose. All information subject to change and should be independently verified.

Copyright 2025 METROLIST, INC., DBA RECOLORADO® -- All Rights Reserved 6455 S. Yosemite St., Suite 500 Greenwood Village, CO 80111 USA

Listing information last updated on December 14th, 2025 at 11:33pm MST.