Connect

704 S Monaco Street Parkway, Denver, CO – $1,279,000

  • $1.3M Price
  • 3,770 Sqft
  • .23 Acres
  • $1.3M Price
  • 3,770 Sqft
  • .23 Acres

New Search X

704 S Monaco Street Parkway

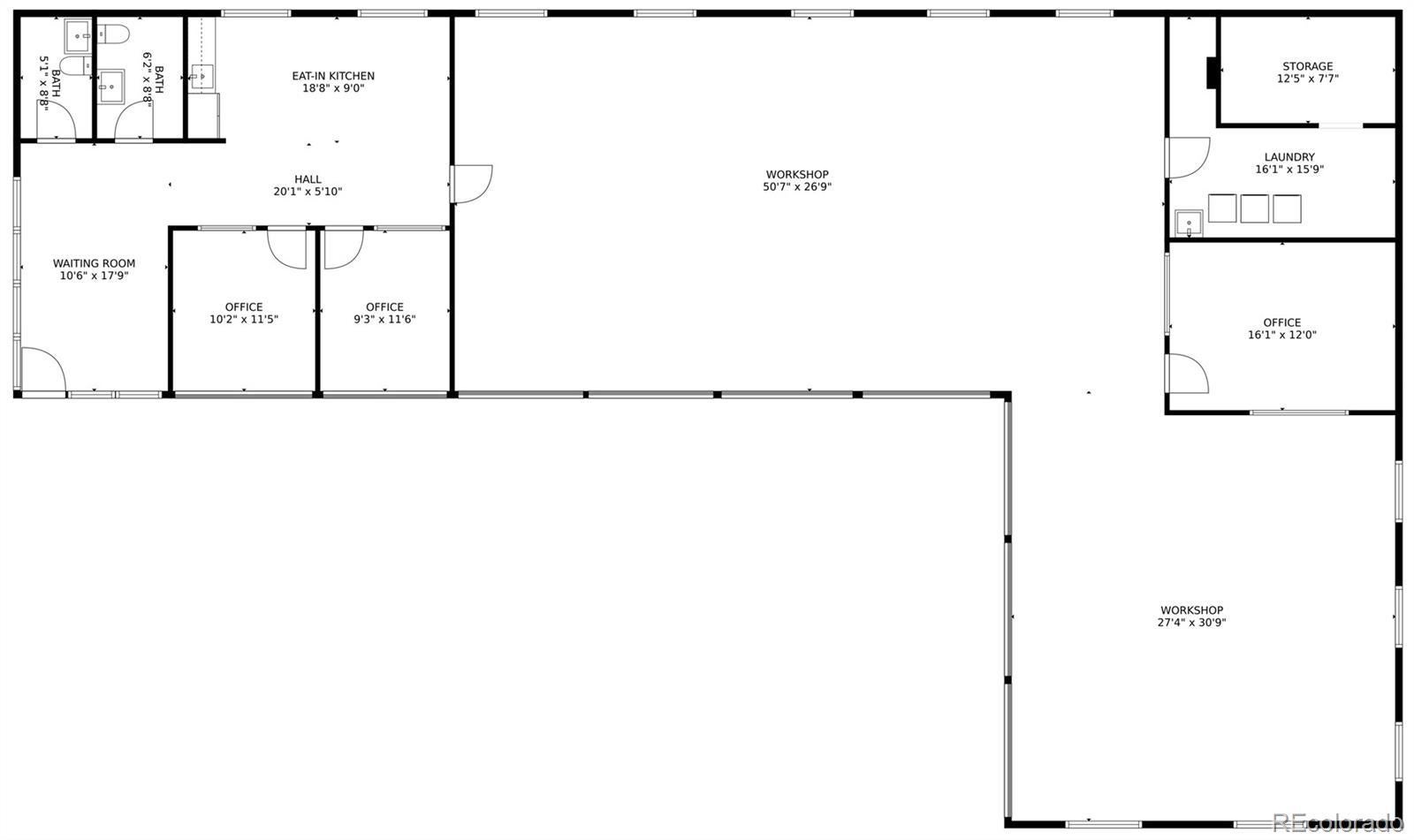
This commercial building offers a new roof, dual combo HVAC units, and all new LED lighting. A newly resurfaced parking lot and improved drainage complement the new interior and exterior paint. On the inside, there is a fully rehabilitated office suite, two new bathrooms, a new kitchen, conference and meeting space, and two private offices. Floor drains are throughout the building, all leading to a recently jetted and serviced sand trap. New and owned security system. There is a large storage area with laundry facilities. Eleven vehicles are consistently and comfortably stored within the building, with 9 off-street parking spaces.

Listing Office: Fuller Real Estate Llc

Essential Information

  • MLS® #2764965
  • Price$1,279,000
  • Bathrooms0.00
  • Square Footage3,770
  • Acres0.23
  • Year Built1966
  • TypeCommercial Sale
  • Sub-TypeRetail
  • StatusActive
  • FeaturesSignage Included, Storage

Community Information

  • Address704 S Monaco Street Parkway
  • CityDenver
  • CountyDenver
  • StateCO
  • Zip Code80224

Amenities

  • Parking Spaces19
  • # of Garages10

Utilities

Electricity Connected, Sewer Connected

Parking

Concrete, Finished Garage, Floor Coating, Heated Garage, Lighted, Storage

Exterior

  • Lot DescriptionNear Public Transit
  • RoofMembrane

Additional Information

  • Date ListedOctober 27th, 2025
  • ZoningS-MX-3A

Listing Details

  • Fuller Real Estate Llc
Please provide a valid email address.

Terms and Conditions: The content relating to real estate for sale in this Web site comes in part from the Internet Data eXchange ("IDX") program of METROLIST, INC., DBA RECOLORADO® Real estate listings held by brokers other than RE/MAX Professionals are marked with the IDX Logo. This information is being provided for the consumers personal, non-commercial use and may not be used for any other purpose. All information subject to change and should be independently verified.

Copyright 2025 METROLIST, INC., DBA RECOLORADO® -- All Rights Reserved 6455 S. Yosemite St., Suite 500 Greenwood Village, CO 80111 USA

Listing information last updated on November 8th, 2025 at 1:03pm MST.