Connect

267 S Jackson Street, Denver, CO – $895,000

  • 3 Beds
  • 4 Baths
  • 2,370 Sqft
  • .14 Acres
  • 3 Beds
  • 4 Baths
  • 2,370 Sqft
  • .14 Acres

New Search X

267 S Jackson Street

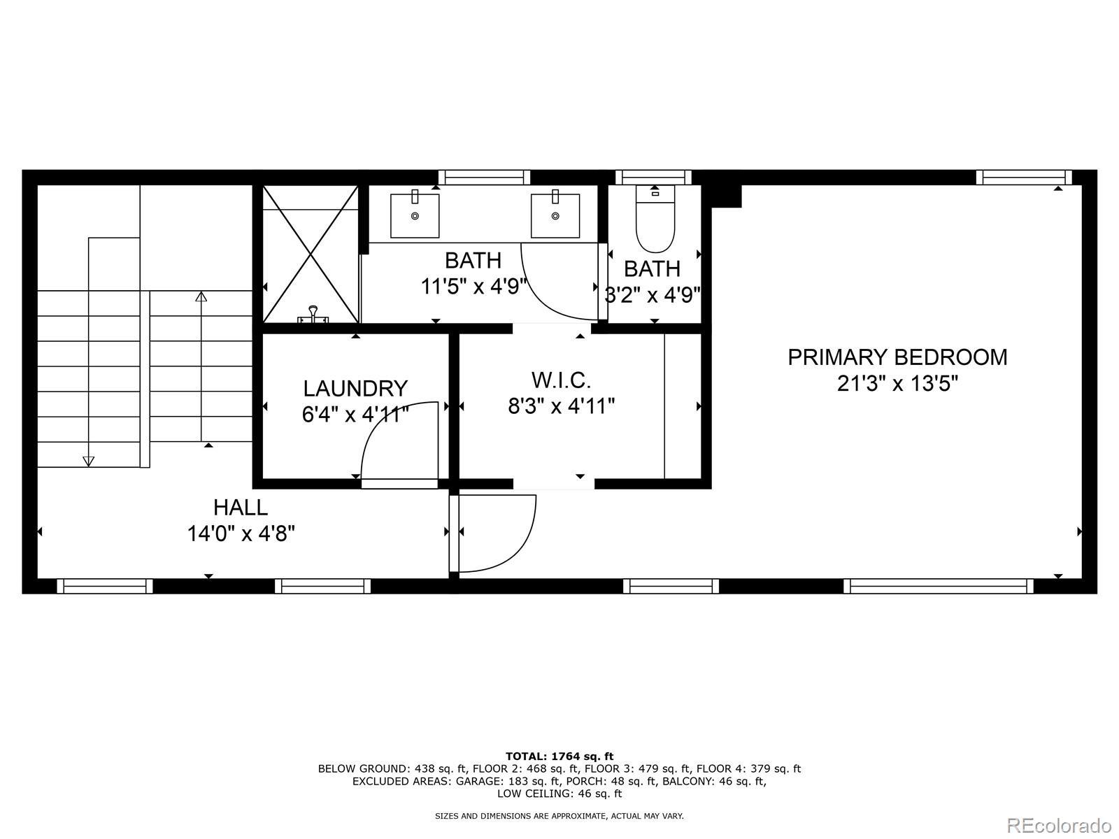
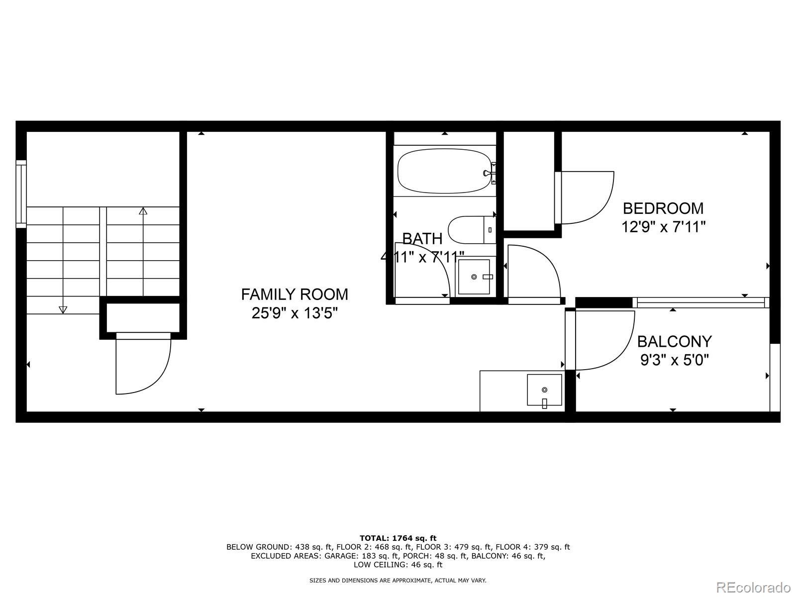
A sophisticated collection of brand-new, three-story contemporary residences in the heart of Cherry Creek. Designed with modern living in mind, these homes showcase open-concept floor plans filled with natural light and elevated by premium finishes throughout. The main level is an entertainer’s dream, featuring a designer kitchen with an eat-in island, seamlessly connected to the bright living and dining areas. Versatile lower-level quarters offer a private bedroom, full bath, living space, and kitchenette, ideal for guests, a home office, or a rentable in-law suite. Upstairs, the second-floor primary suite is a serene retreat with a walk-in closet, double vanity, and spa-inspired shower. A conveniently located laundry room completes this level for added functionality. The third floor offers additional flexible space with a bonus room, wet bar, third bedroom, full bath, and a covered balcony, perfect for hosting or unwinding. Additional perks include a one-car garage with generous storage height and an unrivaled location just moments from Cherry Creek’s premier dining, boutique shopping, parks, and recreation. Stylish, spacious, and ideally located, the Jackson Street Duplexes are urban living at its finest.

Listing Office: Compass - Denver

Essential Information

  • MLS® #2774235
  • Price$895,000
  • Bedrooms3
  • Bathrooms4.00
  • Full Baths1
  • Half Baths1
  • Square Footage2,370
  • Acres0.14
  • Year Built2023
  • TypeResidential
  • Sub-TypeSingle Family Residence
  • StatusActive

Community Information

  • Address267 S Jackson Street
  • SubdivisionCherry Creek North
  • CityDenver
  • CountyDenver
  • StateCO
  • Zip Code80209

Amenities

  • Parking Spaces1
  • # of Garages1

Utilities

Electricity Connected, Internet Access (Wired), Natural Gas Connected, Phone Available

Interior

  • HeatingBaseboard, Forced Air
  • CoolingCentral Air
  • StoriesThree Or More

Interior Features

Ceiling Fan(s), Eat-in Kitchen, Entrance Foyer, High Ceilings, Kitchen Island, Open Floorplan, Pantry, Primary Suite, Walk-In Closet(s), Wet Bar

Appliances

Dishwasher, Microwave, Oven, Range, Refrigerator

Exterior

  • Lot DescriptionCorner Lot, Level
  • WindowsSkylight(s)
  • RoofShake

Exterior Features

Balcony, Lighting, Rain Gutters

School Information

  • DistrictDenver 1
  • ElementarySteck
  • MiddleHill
  • HighGeorge Washington

Additional Information

  • Date ListedOctober 9th, 2025
  • ZoningG-RH-3

Listing Details

  • Compass - Denver
Please provide a valid email address.

Terms and Conditions: The content relating to real estate for sale in this Web site comes in part from the Internet Data eXchange ("IDX") program of METROLIST, INC., DBA RECOLORADO® Real estate listings held by brokers other than RE/MAX Professionals are marked with the IDX Logo. This information is being provided for the consumers personal, non-commercial use and may not be used for any other purpose. All information subject to change and should be independently verified.

Copyright 2025 METROLIST, INC., DBA RECOLORADO® -- All Rights Reserved 6455 S. Yosemite St., Suite 500 Greenwood Village, CO 80111 USA

Listing information last updated on October 29th, 2025 at 7:18am MDT.