Connect

15264 Milwaukee Street, Thornton, CO – $560,450

  • 4 Beds
  • 3 Baths
  • 2,184 Sqft
  • .12 Acres
  • 4 Beds
  • 3 Baths
  • 2,184 Sqft
  • .12 Acres

New Search X

15264 Milwaukee Street

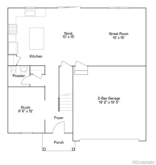
**Eligible for 3.75 FHA 5/1 ARM or 4.25% fixed rate when using builder’s preferred lender – terms and conditions apply – ask for details*******Contact Lennar today about Special Financing for this home - terms and conditions apply**Welcome to East Creek Farm – Where Comfort Meets Convenience! This stunning two-story home offers spacious living and thoughtful design throughout. The main level features a chef’s kitchen with a generous eat-in island that flows seamlessly into the nook and expansive great room—perfect for entertaining or relaxing. A dedicated main-level office provides space for work or creativity. Upstairs, the Primary suite invites you to unwind with a private en-suite bathroom, joined by three additional spacious bedrooms and a convenient laundry room. Best of all, this home is 100% electric—modern efficiency meets everyday comfort. Located in a vibrant community near urban amenities and abundant outdoor recreation, residents enjoy easy access to premier shopping at Denver Premium Outlets and Orchard Town Center. Plus, adventure awaits at the nearby Thornton Trail Winds Park and Open Space complex, offering miles of scenic paths and natural beauty. Move in Ready!

Listing Office: Coldwell Banker Realty 56

Essential Information

  • MLS® #2815713
  • Price$560,450
  • Bedrooms4
  • Bathrooms3.00
  • Full Baths1
  • Half Baths1
  • Square Footage2,184
  • Acres0.12
  • Year Built2024
  • TypeResidential
  • Sub-TypeSingle Family Residence
  • StatusPending

Community Information

  • Address15264 Milwaukee Street
  • SubdivisionEast Creek Farm
  • CityThornton
  • CountyAdams
  • StateCO
  • Zip Code80602

Amenities

  • UtilitiesElectricity Connected
  • Parking Spaces2
  • # of Garages2

Interior

  • HeatingElectric
  • CoolingCentral Air
  • StoriesTwo

Interior Features

Eat-in Kitchen, Entrance Foyer, Kitchen Island, Open Floorplan, Primary Suite, Quartz Counters, Walk-In Closet(s)

Appliances

Dishwasher, Disposal, Microwave, Oven

Exterior

  • WindowsDouble Pane Windows
  • RoofComposition

School Information

  • DistrictAdams 12 5 Star Schl
  • ElementarySilver Creek
  • MiddleRocky Top
  • HighMountain Range

Additional Information

  • Date ListedJuly 25th, 2025

Listing Details

  • Coldwell Banker Realty 56
Please provide a valid email address.

Terms and Conditions: The content relating to real estate for sale in this Web site comes in part from the Internet Data eXchange ("IDX") program of METROLIST, INC., DBA RECOLORADO® Real estate listings held by brokers other than RE/MAX Professionals are marked with the IDX Logo. This information is being provided for the consumers personal, non-commercial use and may not be used for any other purpose. All information subject to change and should be independently verified.

Copyright 2025 METROLIST, INC., DBA RECOLORADO® -- All Rights Reserved 6455 S. Yosemite St., Suite 500 Greenwood Village, CO 80111 USA

Listing information last updated on November 6th, 2025 at 7:18pm MST.