Connect

477 W View Road, Cotopaxi, CO – $595,000

  • 2 Beds
  • 2 Baths
  • 1,950 Sqft
  • 4.47 Acres
  • 2 Beds
  • 2 Baths
  • 1,950 Sqft
  • 4.47 Acres

New Search X

477 W View Road

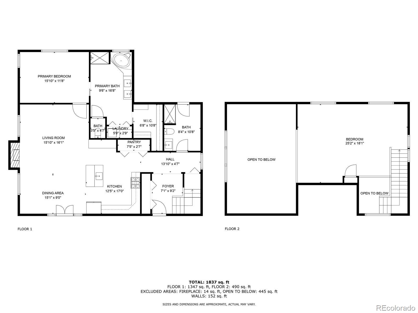
Discover refined Colorado mountain living in this custom-built masterpiece, set on nearly 5 fully mitigated acres in the scenic Glen Vista community. From the moment you walk in, the craftsmanship shines—exquisite finishes, cherry hardwood floors throughout, vaulted ceilings, and a gas fireplace with a stone hearth create a warm, elegant atmosphere. The open-concept layout and center island kitchen make everyday living and entertaining effortless, all while showcasing sweeping mountain views. Built with durability and ease in mind, the home features a stucco exterior, metal roof, and composite decking, plus fire mitigation already completed for added peace of mind. A private detached studio apartment ADU offers its own bathroom and garage, making it perfect for guests, in-laws, or rental income. Need more space? You’ll love the oversized 3-car garage, ideal for vehicles, tools, and Colorado toys. Located in Glen Vista, you'll enjoy year-round access, privacy, and the freedom of light community guidelines—all while being just minutes from the endless adventure of the Arkansas River Valley. This area is a haven for outdoor enthusiasts, with gold medal fishing, whitewater rafting, ATV trails, hiking, and climbing all close by. Plus, you’re a short drive from the charming towns of Salida, Westcliffe, and Cañon City, known for their art scenes, events, and small-town hospitality. Whether you're seeking a luxurious full-time home, a peaceful retreat, or an income-producing property, this one offers it all—style, function, and location.

Listing Office: Real Broker, LLC DBA Real

Essential Information

  • MLS® #2963411
  • Price$595,000
  • Bedrooms2
  • Bathrooms2.00
  • Full Baths1
  • Square Footage1,950
  • Acres4.47
  • Year Built2008
  • TypeResidential
  • Sub-TypeSingle Family Residence
  • StatusActive

Community Information

  • Address477 W View Road
  • SubdivisionGlen Vista
  • CityCotopaxi
  • CountyFremont
  • StateCO
  • Zip Code81223

Amenities

  • Parking Spaces4
  • # of Garages4

Utilities

Electricity Connected, Natural Gas Connected

Interior

  • HeatingForced Air
  • CoolingNone
  • FireplaceYes
  • # of Fireplaces1
  • StoriesTwo

Exterior

  • RoofOther

School Information

  • DistrictCotopaxi RE-3
  • ElementaryCotopaxi
  • MiddleCotopaxi
  • HighCotopaxi

Additional Information

  • Date ListedJuly 29th, 2025
  • ZoningR-2

Listing Details

  • Real Broker, LLC DBA Real
Please provide a valid email address.

Terms and Conditions: The content relating to real estate for sale in this Web site comes in part from the Internet Data eXchange ("IDX") program of METROLIST, INC., DBA RECOLORADO® Real estate listings held by brokers other than RE/MAX Professionals are marked with the IDX Logo. This information is being provided for the consumers personal, non-commercial use and may not be used for any other purpose. All information subject to change and should be independently verified.

Copyright 2025 METROLIST, INC., DBA RECOLORADO® -- All Rights Reserved 6455 S. Yosemite St., Suite 500 Greenwood Village, CO 80111 USA

Listing information last updated on December 29th, 2025 at 12:33pm MST.