Connect

2919 Forest Street, Denver, CO – $750,000

  • 3 Beds
  • 3 Baths
  • 2,018 Sqft
  • .22 Acres
  • 3 Beds
  • 3 Baths
  • 2,018 Sqft
  • .22 Acres

New Search X

2919 Forest Street

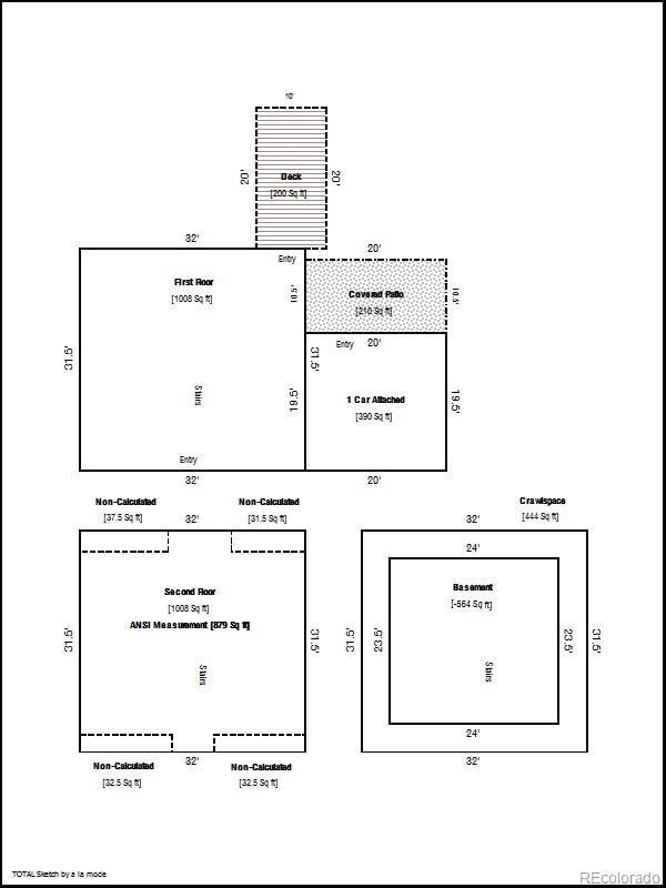
Investor Special – Triple Lot in North Park Hill! Rare opportunity to own a property with serious potential in one of Denver’s most sought-after neighborhoods. Located on a triple lot in North Park Hill, this 2-story home built in 1906 has already undergone major structural updates and is ready for your finishing touches. Previously the owner’s residence for nearly 20 years, the home has been gutted to the studs and partially rebuilt. Interior framing, insulation, and most electrical and plumbing are already in place, saving time and money for the next phase. A new grand center staircase and open-concept main level layout have been completed, offering a modern design foundation. Upstairs, you'll find a framed-in primary suite with private bath, two additional bedrooms, and a full bath. The basement remains unfinished, offering even more customization potential. Major updates completed in 2017 include: New roof, Electrical service, Furnace, Double-pane windows. An oversized 1-car garage with loft storage adds extra value. Engineer’s plans for the approx. 2,000 sq ft layout are included. Whether you’re looking to finish and flip, create a custom dream home, or add to your investment portfolio, this property offers the perfect canvas. Sold strictly AS-IS. Don’t miss this value-add opportunity in a fast-appreciating area of Denver! Additional photos and walk through videos available in virtual tour tab, or request link from listing agent at rodneyallenre@gmail.com. Serious inquiries only - direct buyer/cash buyer only, no wholesalers.

Listing Office: Coldwell Banker Global Luxury Denver

Essential Information

  • MLS® #3030093
  • Price$750,000
  • Bedrooms3
  • Bathrooms3.00
  • Full Baths2
  • Half Baths1
  • Square Footage2,018
  • Acres0.22
  • Year Built1906
  • TypeResidential
  • Sub-TypeSingle Family Residence
  • StyleTraditional
  • StatusActive

Community Information

  • Address2919 Forest Street
  • SubdivisionNorth Park Hill
  • CityDenver
  • CountyDenver
  • StateCO
  • Zip Code80207

Amenities

  • UtilitiesElectricity Available
  • Parking Spaces1
  • # of Garages1

Parking

Concrete, Exterior Access Door

Interior

  • HeatingForced Air
  • CoolingNone
  • FireplaceYes
  • # of Fireplaces1
  • FireplacesLiving Room
  • StoriesTwo

Exterior

  • Exterior FeaturesPrivate Yard, Rain Gutters
  • Lot DescriptionLevel
  • RoofComposition

School Information

  • DistrictDenver 1
  • ElementaryPark Hill
  • MiddleMcAuliffe International
  • HighEast

Additional Information

  • Date ListedJuly 17th, 2025
  • ZoningE-SU-DX

Listing Details

Coldwell Banker Global Luxury Denver

Please provide a valid email address.

Terms and Conditions: The content relating to real estate for sale in this Web site comes in part from the Internet Data eXchange ("IDX") program of METROLIST, INC., DBA RECOLORADO® Real estate listings held by brokers other than RE/MAX Professionals are marked with the IDX Logo. This information is being provided for the consumers personal, non-commercial use and may not be used for any other purpose. All information subject to change and should be independently verified.

Copyright 2025 METROLIST, INC., DBA RECOLORADO® -- All Rights Reserved 6455 S. Yosemite St., Suite 500 Greenwood Village, CO 80111 USA

Listing information last updated on November 1st, 2025 at 12:18pm MDT.