Connect

8734 Independence Way, Arvada, CO – $650,000

  • 4 Beds
  • 3 Baths
  • 1,905 Sqft
  • .07 Acres
  • 4 Beds
  • 3 Baths
  • 1,905 Sqft
  • .07 Acres

New Search X

8734 Independence Way

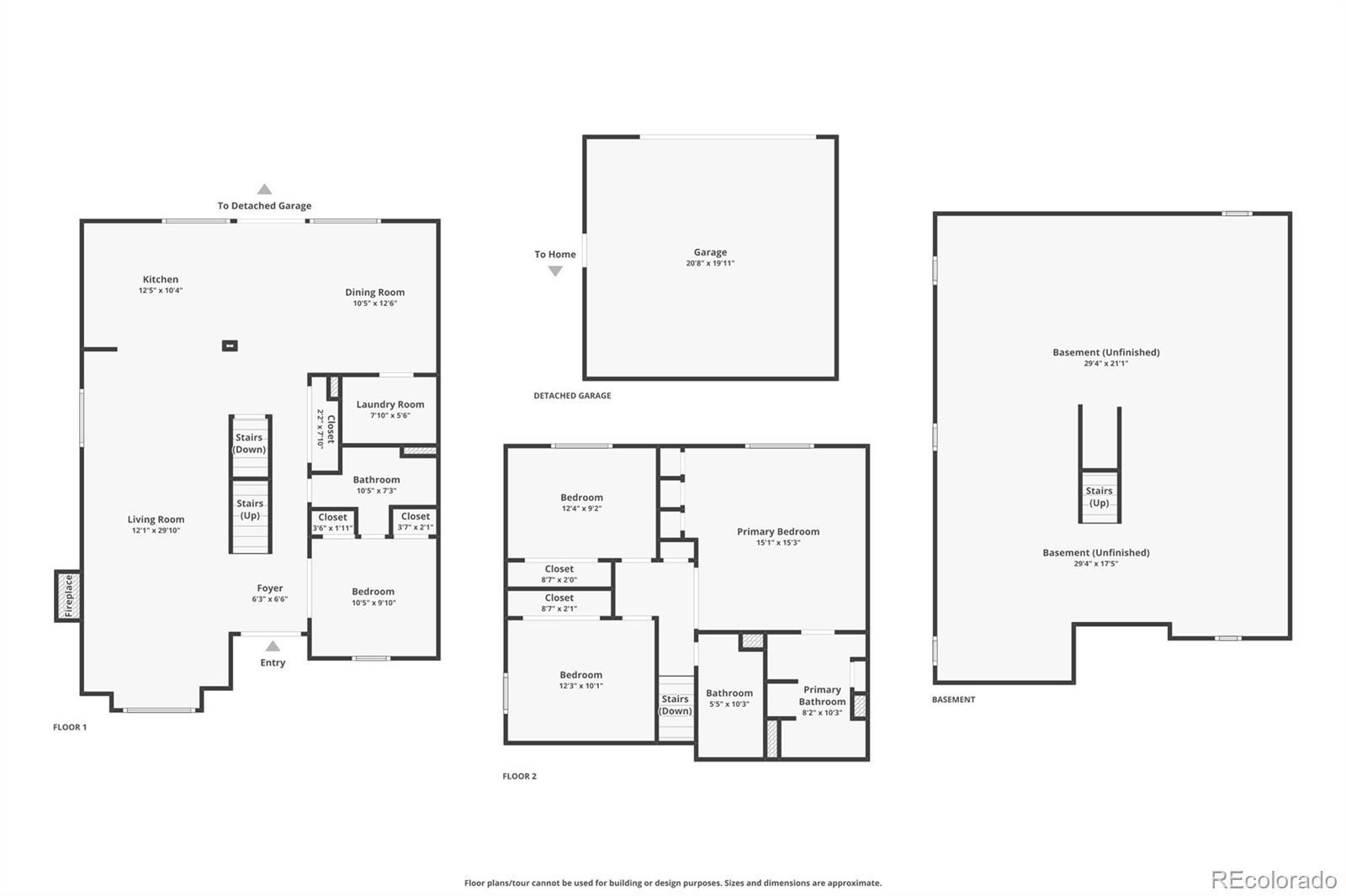
Welcome to 8734 Independence Way, a beautifully updated home in The Pond community of Arvada, where modern upgrades meet outdoor ease. Renovations throughout showcase thoughtful details, including granite countertops, refreshed kitchen and bathrooms, new flooring, and fresh paint inside and out; creating a bright, move-in-ready feel. Recent improvements—such as a new roof (2025) and owned solar panels—add long-term value and energy efficiency. New deck and new fireplace make the home cozy and enjoyable throughout the whole year. The layout offers comfortable living and flexible spaces suited to modern life. The main floor has a bedroom that can easily function as an office. Upstairs you will find the primary bedroom with its own bathroom and two additional bedrooms and a full bath. Residents of The Pond enjoy access to a private lake for kayaking and fishing, as well as a pool, clubhouse, tennis courts, and playground. Surrounded by walking paths and mature landscaping, this home is also just minutes from Standley Lake, nearby parks, local dining, and commuter routes, blending peaceful surroundings with everyday convenience. Home also includes new: insulation, glass on double front doors, blinds, gutters, and front porch! This home has been loved from top to bottom and is ready for its new adventure!

Listing Office: Nookhaven Homes

Essential Information

  • MLS® #3046291
  • Price$650,000
  • Bedrooms4
  • Bathrooms3.00
  • Full Baths1
  • Square Footage1,905
  • Acres0.07
  • Year Built1974
  • TypeResidential
  • Sub-TypeSingle Family Residence
  • StatusPending

Community Information

  • Address8734 Independence Way
  • SubdivisionThe Pond
  • CityArvada
  • CountyJefferson
  • StateCO
  • Zip Code80005

Amenities

  • Parking Spaces2
  • # of Garages2

Amenities

Clubhouse, Garden Area, Playground, Pool

Parking

Exterior Access Door, Oversized

Interior

  • HeatingForced Air
  • CoolingCentral Air
  • FireplaceYes
  • # of Fireplaces1
  • FireplacesLiving Room
  • StoriesTwo

Interior Features

Ceiling Fan(s), Entrance Foyer, Granite Counters, High Ceilings, Vaulted Ceiling(s)

Appliances

Dishwasher, Disposal, Dryer, Gas Water Heater, Microwave, Range, Refrigerator, Washer

Exterior

  • Lot DescriptionLevel
  • WindowsDouble Pane Windows
  • RoofShingle

Exterior Features

Private Yard, Rain Gutters, Spa/Hot Tub

School Information

  • DistrictJefferson County R-1
  • ElementaryWeber
  • MiddlePomona
  • HighPomona

Additional Information

  • Date ListedNovember 14th, 2025

Listing Details

  • Nookhaven Homes
Please provide a valid email address.

Terms and Conditions: The content relating to real estate for sale in this Web site comes in part from the Internet Data eXchange ("IDX") program of METROLIST, INC., DBA RECOLORADO® Real estate listings held by brokers other than RE/MAX Professionals are marked with the IDX Logo. This information is being provided for the consumers personal, non-commercial use and may not be used for any other purpose. All information subject to change and should be independently verified.

Copyright 2025 METROLIST, INC., DBA RECOLORADO® -- All Rights Reserved 6455 S. Yosemite St., Suite 500 Greenwood Village, CO 80111 USA

Listing information last updated on December 2nd, 2025 at 1:48am MST.