Connect

4342 Delaware Street, Denver, CO – $625,000

  • $625k Price
  • 1,791 Sqft
  • .13 Acres
  • $625k Price
  • 1,791 Sqft
  • .13 Acres

New Search X

4342 Delaware Street

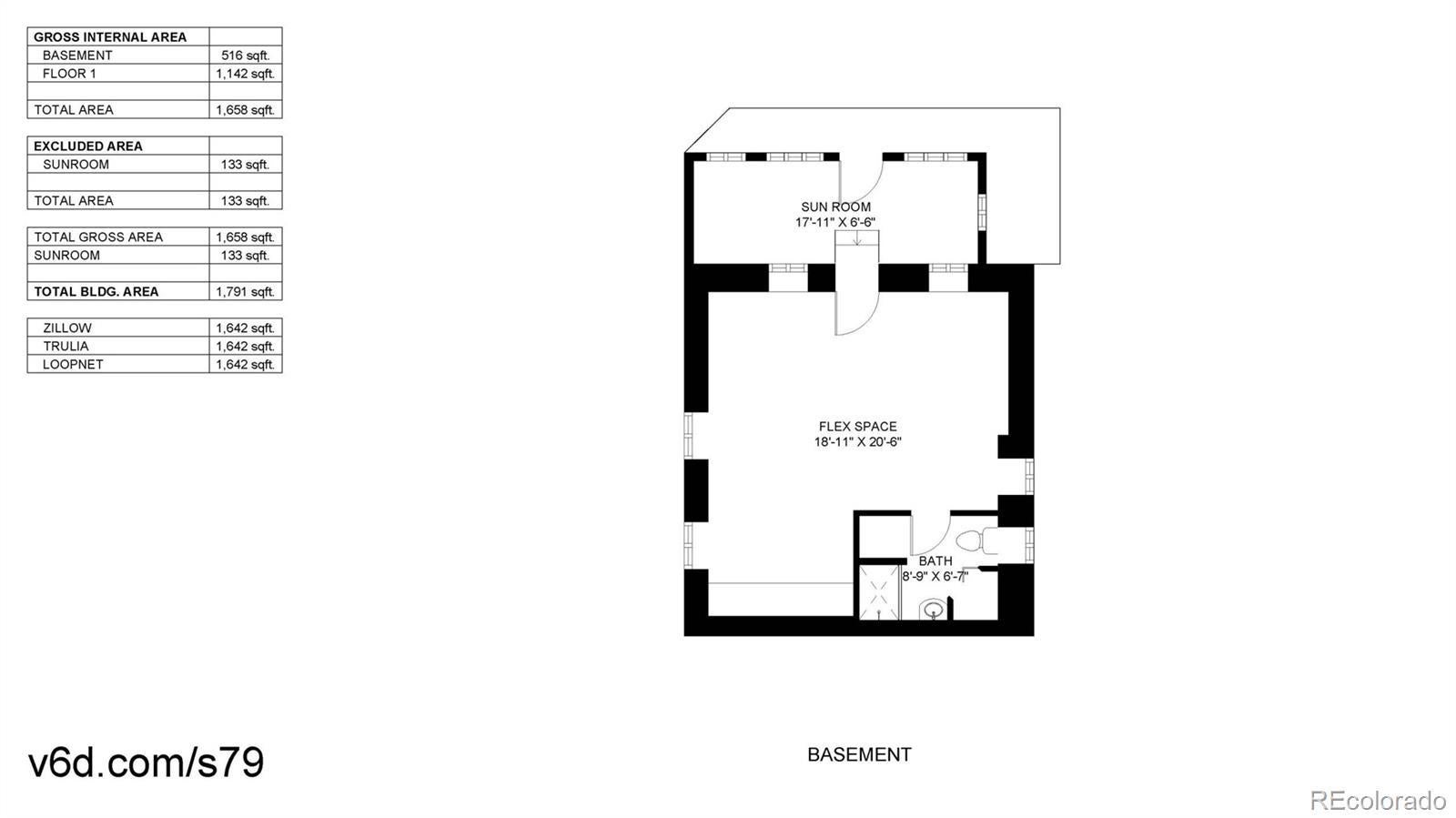
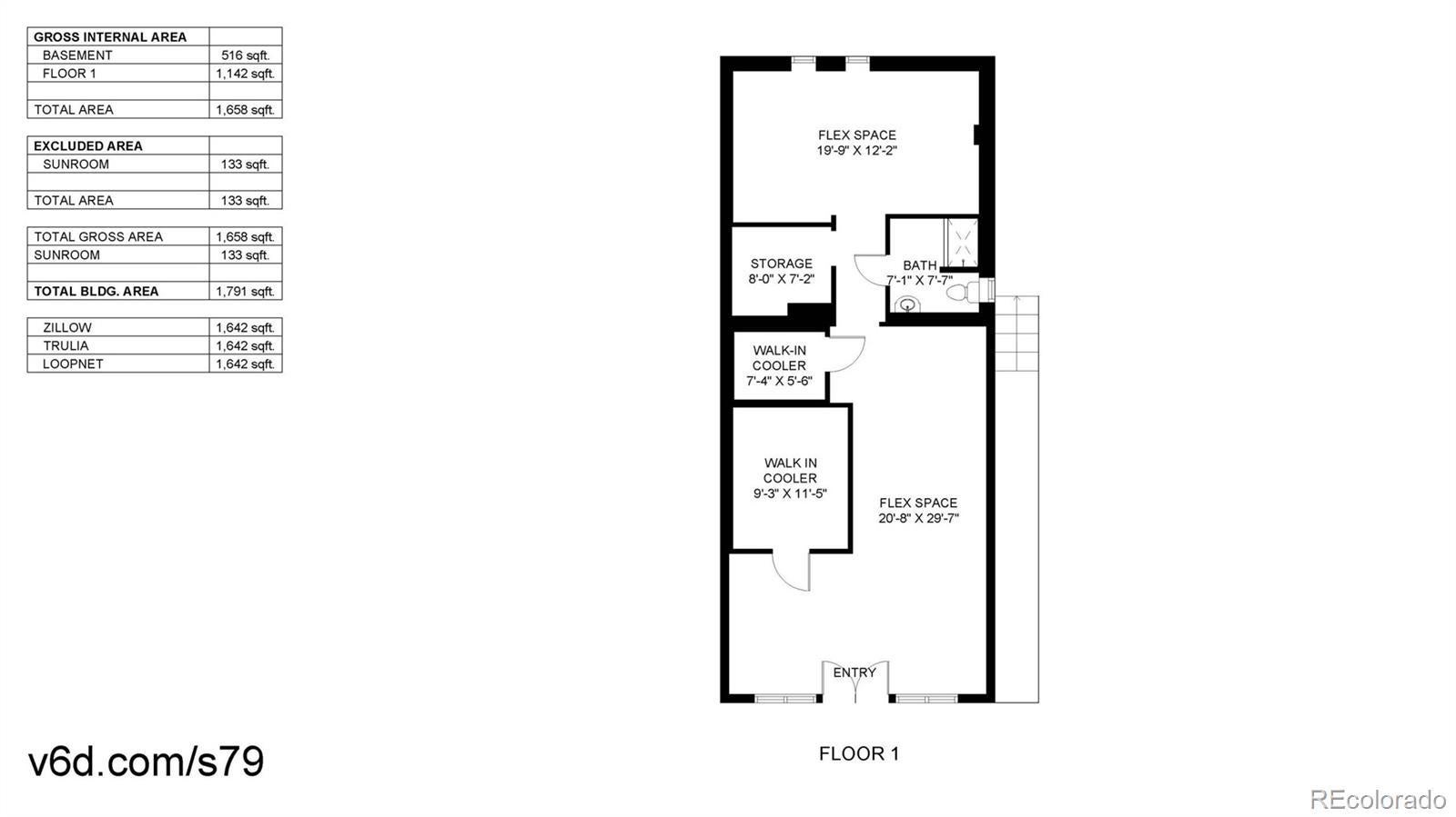
Prime Commercial Opportunity in the growing Fox Island District in Globeville! Presenting a rare opportunity to acquire a recently remodeled, turn-key commercial property with exceptional versatility. The main level offers 1,142 sqft of open functional area, while the fully finished ground-level basement adds an additional 649 sqft, complete with its own private entrance. The fully finished basement level is equipped with a bathroom, washer & dryer hookups, and a bar/kitchen area —offering additional functionality for operations, storage, or separate tenancy. Situated on 2 combined lots totaling 5,530 sqft (2 lots of 2,765 sqft each), the property offers plenty of exterior space for parking, storage, or room for potential future expansion/development. Currently equipped with two walk-in coolers, this building creates an excellent opportunity perfect for food concepts or food truck operators seeking office, prep space, storage, parking, or other business concepts. Maximize your investment with multiple options: live/work, lease both levels separately, utilize 1 while generating rental income from the other, or occupy the entire space for your own enterprise. * Prime Location Near Major New Development! Located just blocks from the highly anticipated World Trade Center Denver campus, set to open in 2027, this property is positioned in the heart of one of Denver’s fastest-growing districts. WTC project is part of the 41-acre Fox Park development, will feature over 2 million sqft of office space, 3,400 residential units, hotel, restaurants & 14 acres of parks & public amenities. URWLD, a new indoor adventure hub will also be part of this redevelopment. With easy access to I25, I70, and the 41st & Fox light rail station. This area is quickly becoming a major hub for global business, culture, & community growth. Don’t miss this rare opportunity to own a turn-key commercial property with tremendous upside potential and long-term value in a highly desirable location!

Listing Office: Luxe Realty, Inc.

Essential Information

  • MLS® #3051350
  • Price$625,000
  • Bathrooms0.00
  • Square Footage1,791
  • Acres0.13
  • Year Built1886
  • TypeCommercial Sale
  • Sub-TypeIndustrial
  • StatusActive

Community Information

  • Address4342 Delaware Street
  • CityDenver
  • CountyDenver
  • StateCO
  • Zip Code80216

Amenities

  • ParkingAsphalt, Concrete, Unpaved

Exterior

  • Lot DescriptionLevel

Additional Information

  • Date ListedJune 27th, 2025
  • ZoningI-A

Listing Details

  • Luxe Realty, Inc.
Please provide a valid email address.

Terms and Conditions: The content relating to real estate for sale in this Web site comes in part from the Internet Data eXchange ("IDX") program of METROLIST, INC., DBA RECOLORADO® Real estate listings held by brokers other than RE/MAX Professionals are marked with the IDX Logo. This information is being provided for the consumers personal, non-commercial use and may not be used for any other purpose. All information subject to change and should be independently verified.

Copyright 2025 METROLIST, INC., DBA RECOLORADO® -- All Rights Reserved 6455 S. Yosemite St., Suite 500 Greenwood Village, CO 80111 USA

Listing information last updated on November 6th, 2025 at 12:18pm MST.