Connect

7680 E 6th Avenue, Denver, CO – $2,750,000

  • 4 Beds
  • 5 Baths
  • 5,812 Sqft
  • .33 Acres
  • 4 Beds
  • 5 Baths
  • 5,812 Sqft
  • .33 Acres

New Search X

7680 E 6th Avenue

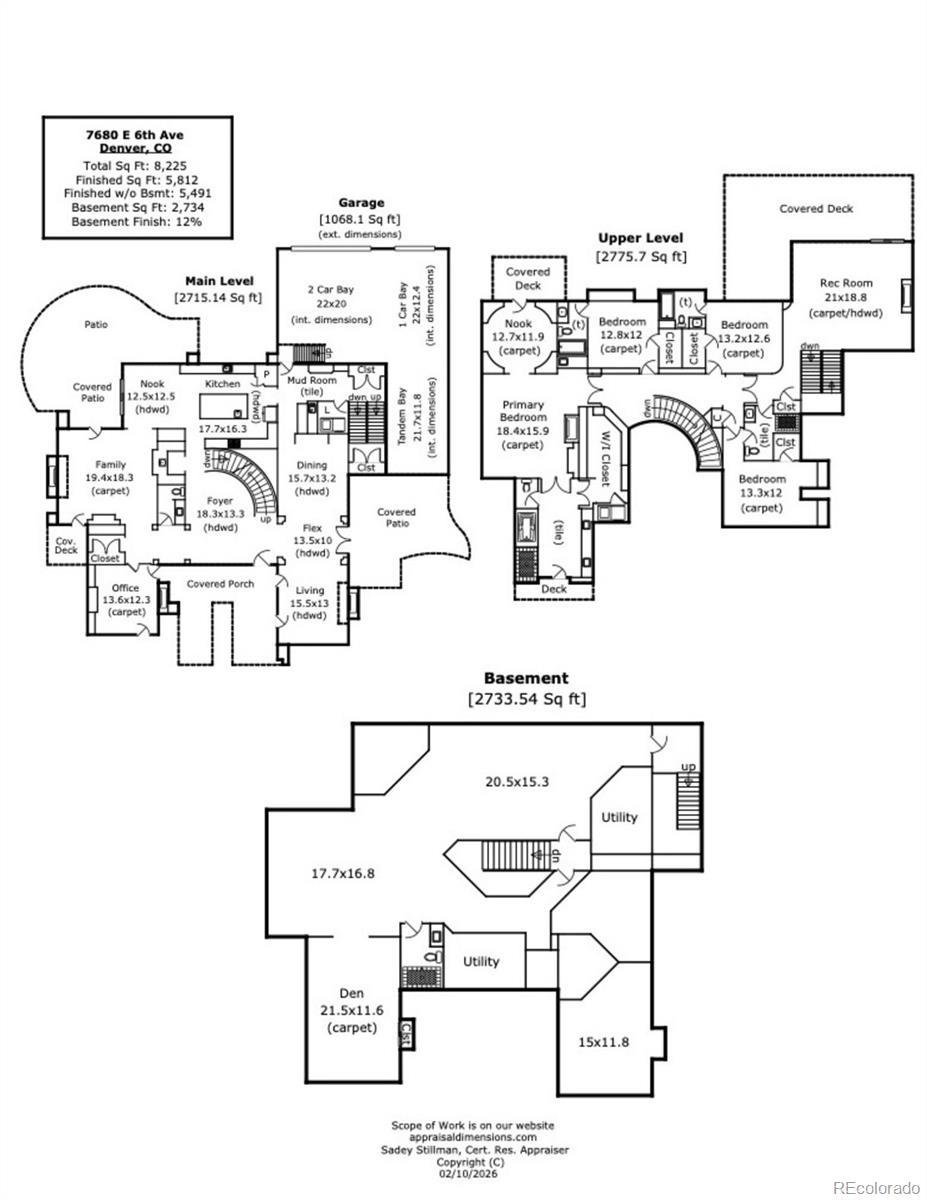
A statement in scale and design, this custom-built estate rises with architectural presence on a prominent corner lot in one of Lowry’s most coveted enclaves. Set along the distinguished stretch of 6th Avenue Parkway, where true estates rarely trade - the home enjoys a scarce position backing to open space, delivering unobstructed sunset and mountain views few in the neighborhood can claim. Built with quality and craftsmanship seldom found today, this residence offers long-term versatility. A covered front porch welcomes you into a grand foyer with sweeping staircase, soaring ceilings, and dramatic two-story windows. Arched French-pane windows flood interior with sunlight, while custom millwork creates a timeless aesthetic. The East wing of the main level features a sunlit east-facing office with fireplace, luxurious powder bath, and oversized receiving area with full wet bar with refrigeration and outdoor patio access. The West wing of the main level is anchored by a formal living room, flexible piano or sitting room, and formal dining space supported by a well-appointed butler’s pantry. The chef’s kitchen offers an eat-in island, integrated appliances, walk-in pantry, warming drawer, and six-burner range with custom hood and pot filler. Off the four-car garage, a mudroom with built-ins connects to a well-appointed laundry room with utility sink. Upstairs, four ensuite bedrooms with walk-in closets plus a large recreation room with fireplace and wraparound deck support multigenerational living. The primary suite features a fireplace, sitting area, wet bar, covered balcony, and spa bath with jetted tub, walk-in shower, dual vanities, and custom closet with laundry. The lower level is prepped for future finish with office, bath/bar plumbing, and bedroom framing. Fully fenced yard and integrated security complete this rare offering backing to open space just moments from Denver’s core.

Listing Office: LIV Sotheby's International Realty

Essential Information

  • MLS® #3204856
  • Price$2,750,000
  • Bedrooms4
  • Bathrooms5.00
  • Full Baths3
  • Half Baths1
  • Square Footage5,812
  • Acres0.33
  • Year Built2005
  • TypeResidential
  • Sub-TypeSingle Family Residence
  • StyleTraditional
  • StatusActive

Community Information

  • Address7680 E 6th Avenue
  • SubdivisionLowry
  • CityDenver
  • CountyDenver
  • StateCO
  • Zip Code80230

Amenities

  • Parking Spaces4
  • # of Garages4
  • ViewMountain(s)

Interior

  • HeatingHeat Pump
  • CoolingCentral Air
  • FireplaceYes
  • # of Fireplaces4
  • StoriesTwo

Interior Features

Audio/Video Controls, Built-in Features, Ceiling Fan(s), Eat-in Kitchen, Five Piece Bath, High Ceilings, Kitchen Island, Pantry, Primary Suite, Smart Light(s), Walk-In Closet(s), Wet Bar

Appliances

Bar Fridge, Dishwasher, Dryer, Microwave, Range, Range Hood, Refrigerator, Warming Drawer, Washer

Fireplaces

Gas, Great Room, Living Room, Primary Bedroom

Exterior

  • Exterior FeaturesBalcony
  • RoofShingle

Lot Description

Corner Lot, Level, Near Public Transit

School Information

  • DistrictDenver 1
  • ElementaryLowry
  • MiddleHill
  • HighGeorge Washington

Additional Information

  • Date ListedFebruary 24th, 2026
  • ZoningR-1

Listing Details

LIV Sotheby's International Realty

Please provide a valid email address.

Terms and Conditions: The content relating to real estate for sale in this Web site comes in part from the Internet Data eXchange ("IDX") program of METROLIST, INC., DBA RECOLORADO® Real estate listings held by brokers other than RE/MAX Professionals are marked with the IDX Logo. This information is being provided for the consumers personal, non-commercial use and may not be used for any other purpose. All information subject to change and should be independently verified.

Copyright 2026 METROLIST, INC., DBA RECOLORADO® -- All Rights Reserved 6455 S. Yosemite St., Suite 500 Greenwood Village, CO 80111 USA

Listing information last updated on February 28th, 2026 at 10:03pm MST.