Connect

2220 S Fraser Street 4, Aurora, CO – $264,500

  • $265k Price
  • 840 Sqft
  • .04 Acres
  • $265k Price
  • 840 Sqft
  • .04 Acres

New Search X

2220 S Fraser Street 4

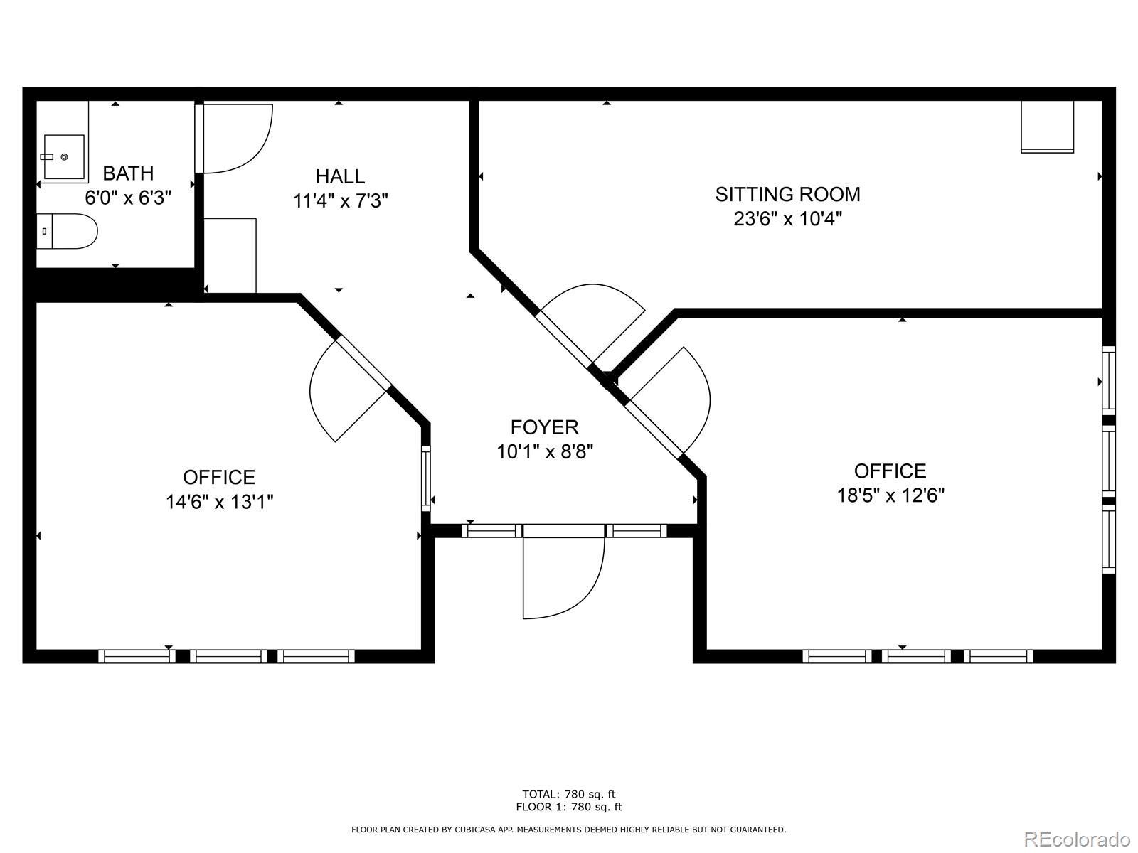
Turnkey office condo for sale in Aurora’s sought-after Fraser Business Park—ideal for medical, professional, or executive use. This 840 sq. ft. end-unit features a welcoming reception area, two spacious offices, a large private conference room, and an oversized half bathroom. The layout is perfect for healthcare providers, consultants, or small business operations seeking an efficient, move-in ready space. Enjoy abundant natural light with two bright, south-facing offices—one a corner suite that inspires productivity with ample windows. The centrally located conference room offers versatile potential as a private meeting space, kitchenette, storage, or additional office. Recent updates include fresh interior paint, new blinds, updated ceiling tiles, and modern lighting—delivering a clean, contemporary environment that supports focus and professionalism. Strategically located at Iliff & Chambers, this Class B office park offers high visibility and easy access to I-225 and E-470. Just 10 minutes from the VA Hospital, UCHealth Anschutz Medical Campus, and Children’s Hospital Colorado—and even closer to The Medical Center of Aurora and UCHealth Emergency Room – Aurora Central—this location is ideal for medical-adjacent professionals. Surrounded by a strong mix of tenants including medical offices, accounting firms, and insurance agencies, Fraser Business Park provides a vibrant and well-maintained business community. Rarely available, this end-unit office condo benefits from low monthly Association dues of just $217, covering landscaping, snow removal, exterior maintenance, water, sewer, and trash. Professionally managed and attractively landscaped, this is a rare opportunity to own a low-maintenance, high-function office space in Aurora’s growing medical and business corridor. The Seller will credit the buyer for 1 year of Building Owners Association Dues at closing!

Listing Office: RE/MAX Professionals

Essential Information

  • MLS® #3209133
  • Price$264,500
  • Bathrooms0.00
  • Square Footage840
  • Acres0.04
  • Year Built2002
  • TypeCommercial Sale
  • Sub-TypeOffice
  • StyleContemporary
  • StatusActive
  • FeaturesOn Site Management

Community Information

  • Address2220 S Fraser Street 4
  • CityAurora
  • CountyArapahoe
  • StateCO
  • Zip Code80014

Amenities

  • Parking Spaces2

Utilities

Electricity Connected, Internet Access (Wired), Natural Gas Connected

Exterior

  • RoofShingle

Lot Description

Corner Lot, Greenbelt, Irrigated, Landscaped

Additional Information

  • Date ListedMarch 28th, 2025
  • ZoningCommercial/Office

Listing Details

  • RE/MAX Professionals
Please provide a valid email address.

Terms and Conditions: The content relating to real estate for sale in this Web site comes in part from the Internet Data eXchange ("IDX") program of METROLIST, INC., DBA RECOLORADO® Real estate listings held by brokers other than RE/MAX Professionals are marked with the IDX Logo. This information is being provided for the consumers personal, non-commercial use and may not be used for any other purpose. All information subject to change and should be independently verified.

Copyright 2025 METROLIST, INC., DBA RECOLORADO® -- All Rights Reserved 6455 S. Yosemite St., Suite 500 Greenwood Village, CO 80111 USA

Listing information last updated on October 30th, 2025 at 5:18pm MDT.