Connect

567 Harrison Street, Denver, CO – $700,000

  • 3 Beds
  • 2 Baths
  • 1,468 Sqft
  • .09 Acres
  • 3 Beds
  • 2 Baths
  • 1,468 Sqft
  • .09 Acres

New Search X

567 Harrison Street

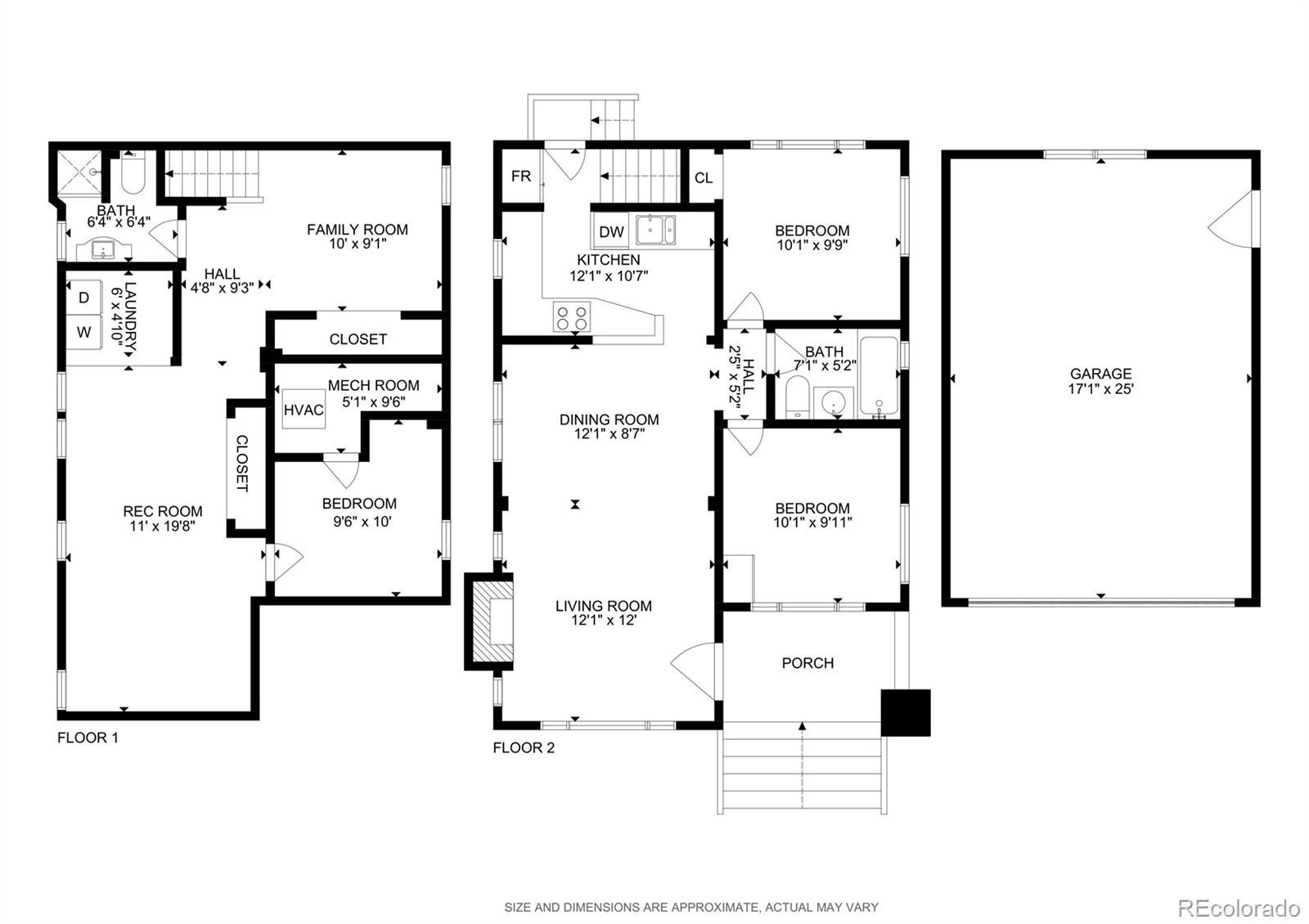
Charming and updated bungalow in Cherry Creek North offers a blend of classic character and modern comfort. This thoughtfully designed home includes three bedrooms and two bathrooms with a flexible layout perfect for everyday living and entertaining. The main floor has two bedrooms and one full bathroom, hardwood flooring, a cozy living room with a fireplace, and natural light throughout. The kitchen flows into adjacent spaces, making meal prep and gatherings effortless. The finished basement adds valuable living space, providing room for a family room, recreation space, or home office along with additional storage options. This level also includes a non-conforming bedroom and ¾ bath. Recent updates include a newer roof, windows, evaporative cooler, and furnace. Exterior features include a welcoming front porch, fully fenced yard for privacy, a variety of fruit trees and beautiful landscaping. The private backyard patio is perfect for hosting outdoor movies and watch parties. The oversized detached two-car garage offers off-street parking and additional storage. Situated on a corner lot in a highly desirable area, this home is close to vibrant dining, shopping, parks, and transit options. The combination of location, thoughtful updates, and classic architectural charm creates a rare opportunity for those seeking a move-in ready home with flexibility for the way you live. Discover comfort, character, and convenience in this delightful Cherry Creek residence.

Listing Office: Compass - Denver

Essential Information

  • MLS® #3311917
  • Price$700,000
  • Bedrooms3
  • Bathrooms2.00
  • Full Baths1
  • Square Footage1,468
  • Acres0.09
  • Year Built1923
  • TypeResidential
  • Sub-TypeSingle Family Residence
  • StyleBungalow
  • StatusPending

Community Information

  • Address567 Harrison Street
  • SubdivisionCherry Creek North
  • CityDenver
  • CountyDenver
  • StateCO
  • Zip Code80206

Amenities

  • Parking Spaces2
  • ParkingConcrete
  • # of Garages2

Interior

  • HeatingForced Air
  • CoolingEvaporative Cooling
  • FireplaceYes
  • # of Fireplaces1
  • FireplacesLiving Room
  • StoriesOne

Appliances

Dishwasher, Dryer, Microwave, Range, Refrigerator, Washer

Exterior

  • Exterior FeaturesGarden, Private Yard
  • Lot DescriptionLevel
  • WindowsDouble Pane Windows
  • RoofComposition

School Information

  • DistrictDenver 1
  • ElementarySteck
  • MiddleHill
  • HighGeorge Washington

Additional Information

  • Date ListedJanuary 22nd, 2026
  • ZoningG-RH-3

Listing Details

  • Compass - Denver
Please provide a valid email address.

Terms and Conditions: The content relating to real estate for sale in this Web site comes in part from the Internet Data eXchange ("IDX") program of METROLIST, INC., DBA RECOLORADO® Real estate listings held by brokers other than RE/MAX Professionals are marked with the IDX Logo. This information is being provided for the consumers personal, non-commercial use and may not be used for any other purpose. All information subject to change and should be independently verified.

Copyright 2026 METROLIST, INC., DBA RECOLORADO® -- All Rights Reserved 6455 S. Yosemite St., Suite 500 Greenwood Village, CO 80111 USA

Listing information last updated on January 30th, 2026 at 8:48am MST.