Connect

1415 Osceola Street, Denver, CO – $620,000

  • 5 Beds
  • 2 Baths
  • 2,682 Sqft
  • .14 Acres
  • 5 Beds
  • 2 Baths
  • 2,682 Sqft
  • .14 Acres

New Search X

1415 Osceola Street

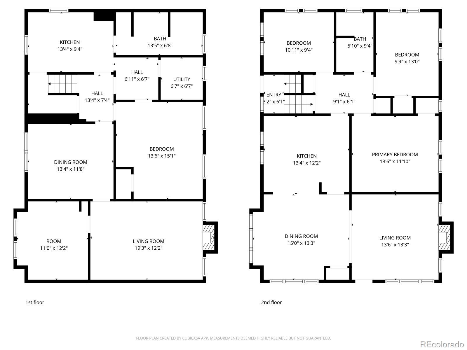
High-upside income property w redevelopment potential on a 6,250 sq ft RH-2.5 zoned lot. This oversized brick bungalow w a true lock-off basement apartment, allows for dual income streams & strong rent performance. Both the main level & basement feature tall ceilings & large sunny windows, a rare find that significantly boosts rental appeal. Separate laundry for each unit supports clean tenant separation & premium rents. Major capital improvements already completed, including new electrical & PEX plumbing (2017) reducing near-term maintenance risk. Beautiful, original wood floors & solid brick construction add durability & long-term value. Ideal for buy-and-hold investors, house hackers or developers seeking holding income while planning future expansion or redevelopment under RH-2.5 zoning (buyer to verify use and density.) Strategically located near Alamo Drafthouse Cinema, Sloan’s Lake & Downtown Denver, w quick highway access—a high-demand rental corridor with strong appreciation fundamentals! Property being sold "as-is." upper level rented for $2500 & basement at $1400 (both under-market) Multiple offers received! Please submit highest and best by 6pm 1/10/2026

Listing Office: West and Main Homes Inc

Essential Information

  • MLS® #3322225
  • Price$620,000
  • Bedrooms5
  • Bathrooms2.00
  • Full Baths2
  • Square Footage2,682
  • Acres0.14
  • Year Built1923
  • TypeResidential
  • Sub-TypeSingle Family Residence
  • StyleBungalow
  • StatusPending

Community Information

  • Address1415 Osceola Street
  • SubdivisionSloan's Lake
  • CityDenver
  • CountyDenver
  • StateCO
  • Zip Code80204

Amenities

  • Parking Spaces6
  • # of Garages2

Interior

  • CoolingEvaporative Cooling
  • FireplaceYes
  • # of Fireplaces2
  • FireplacesBasement, Living Room
  • StoriesOne

Interior Features

High Ceilings, In-Law Floorplan

Appliances

Cooktop, Dishwasher, Dryer, Gas Water Heater, Oven, Refrigerator, Self Cleaning Oven, Washer

Heating

Hot Water, Natural Gas, Radiant

Exterior

  • Exterior FeaturesGarden, Private Yard
  • Lot DescriptionLevel, Near Public Transit
  • WindowsDouble Pane Windows
  • RoofComposition

School Information

  • DistrictDenver 1
  • ElementaryColfax
  • MiddleLake Int'l
  • HighNorth

Additional Information

  • Date ListedJanuary 7th, 2026
  • ZoningU-RH-2.5

Listing Details

  • West and Main Homes Inc
Please provide a valid email address.

Terms and Conditions: The content relating to real estate for sale in this Web site comes in part from the Internet Data eXchange ("IDX") program of METROLIST, INC., DBA RECOLORADO® Real estate listings held by brokers other than RE/MAX Professionals are marked with the IDX Logo. This information is being provided for the consumers personal, non-commercial use and may not be used for any other purpose. All information subject to change and should be independently verified.

Copyright 2026 METROLIST, INC., DBA RECOLORADO® -- All Rights Reserved 6455 S. Yosemite St., Suite 500 Greenwood Village, CO 80111 USA

Listing information last updated on January 19th, 2026 at 5:19am MST.