Connect

2551 W 92nd, Denver, CO – $100,000

  • $100k Price
  • 5 Beds
  • 2 Baths
  • 1,188 Sqft
  • $100k Price
  • 5 Beds
  • 2 Baths
  • 1,188 Sqft

New Search X

2551 W 92nd

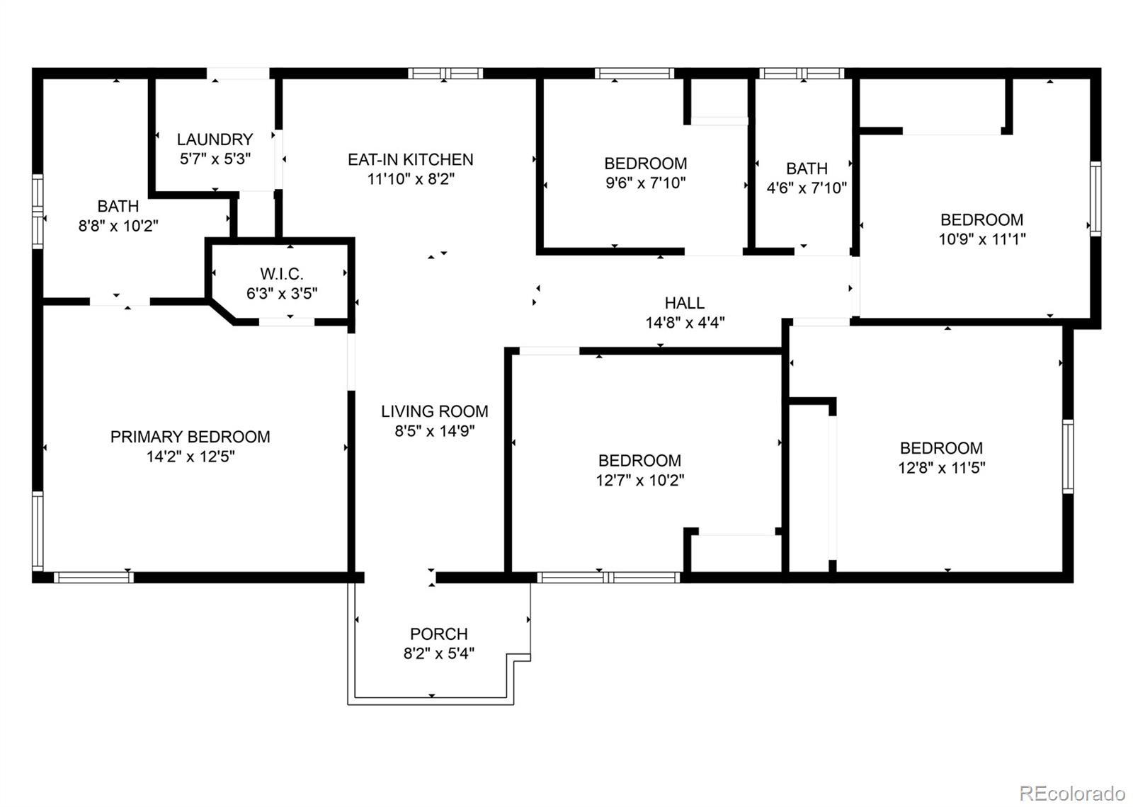
Well-distributed 5-bedroom, 2-bathroom mobile home located in the desirable Kimberly Hills community. This spacious double-wide offers abundant natural light, central A/C, spacious closets, and a dedicated laundry room. The layout includes a large primary suite with a private bathroom and flexible living space. One of the bedrooms was created from the original living room, making it ideal for larger households or those needing additional private rooms. The property also offers parking for up to 7 vehicles—a rare find in this type of community. Seller is willing to negotiate the furniture as well. Sold as-is. Conveniently located near shopping, dining, and major highways. Buyer must be approved by the park. Lot rent applies.

Listing Office: Megastar Realty

Essential Information

  • MLS® #3465486
  • Price$100,000
  • Bedrooms5
  • Bathrooms2.00
  • Full Baths1
  • Square Footage1,188
  • Acres0.00
  • Year Built1993
  • TypeManufactured In Park
  • Sub-TypeManufactured Home
  • StatusPending

Community Information

  • Address2551 W 92nd
  • CityDenver
  • CountyAdams
  • StateCO
  • Zip Code80260

Amenities

  • AmenitiesClubhouse, Playground, Pool
  • Parking Spaces7
  • ParkingConcrete

Interior

  • AppliancesConvection Oven, Refrigerator
  • HeatingForced Air
  • CoolingCentral Air

Interior Features

No Stairs, Open Floorplan, Smoke Free, Walk-In Closet(s)

Exterior

  • RoofOther

School Information

  • DistrictAdams 12 5 Star Schl
  • ElementaryFederal Heights
  • MiddleNorthglenn
  • HighNorthglenn

Additional Information

  • Date ListedJuly 22nd, 2025

Listing Details

  • Megastar Realty
Please provide a valid email address.

Terms and Conditions: The content relating to real estate for sale in this Web site comes in part from the Internet Data eXchange ("IDX") program of METROLIST, INC., DBA RECOLORADO® Real estate listings held by brokers other than RE/MAX Professionals are marked with the IDX Logo. This information is being provided for the consumers personal, non-commercial use and may not be used for any other purpose. All information subject to change and should be independently verified.

Copyright 2025 METROLIST, INC., DBA RECOLORADO® -- All Rights Reserved 6455 S. Yosemite St., Suite 500 Greenwood Village, CO 80111 USA

Listing information last updated on November 6th, 2025 at 12:03am MST.