Connect

1072 Cypress Way, Castle Rock, CO – $4,600,000

  • 6 Beds
  • 9 Baths
  • 10,043 Sqft
  • .99 Acres
  • 6 Beds
  • 9 Baths
  • 10,043 Sqft
  • .99 Acres

New Search X

1072 Cypress Way

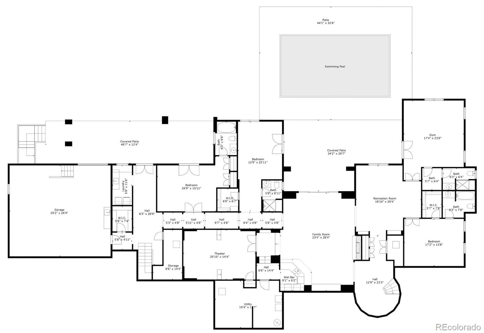
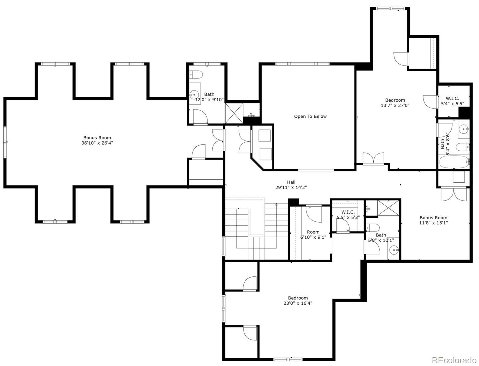
Set against a breathtaking, tree-filled backdrop on nearly an acre along the 5th fairway of the Country Club at Castle Pines, this extraordinary estate offers a rare blend of privacy, luxury, and lifestyle. Located in gated Castle Pines Village, the home feels like a secluded retreat where golf course views and towering pines create an unforgettable Colorado setting. Designed for both everyday enjoyment and effortless hosting, the residence is rich with private amenities and thoughtfully designed spaces. The walkout lower level opens to a resort-style backyard featuring a private pool, expansive patio, and lush lawn—ideal for relaxing ot entertaining. Inside, enjoy a dedicated fitness area, a television lounge with bar, a gaming and pool table space, and a home theater, creating endless options for recreation and hobbies without ever leaving home. Multiple bedrooms and flexible rooms throughout the home provide exceptional accommodations for guests, remote work, or creative pursuits, while generous living and entertaining areas invite gatherings both large and small. Upper decks offer sweeping views of the golf course and surrounding trees, and a separate lower-level garage adds valuable space for storage, gear, or collector vehicles. This is more than a residence—it’s a private golf course retreat designed to support every passion. Residents of The Village at Castle Pines enjoy a true mountain setting with 24-hour security, miles of trails, pools, tennis and pickleball courts, fitness facilities, playgrounds, and a vibrant calendar of community events. A rare opportunity to own an exceptional estate in one of Colorado’s most prestigious gated communities. Call Me Today for your private tour of this estate and the community amenities.

Listing Office: Coldwell Banker Realty 24

Essential Information

  • MLS® #3655990
  • Price$4,600,000
  • Bedrooms6
  • Bathrooms9.00
  • Full Baths4
  • Half Baths1
  • Square Footage10,043
  • Acres0.99
  • Year Built2006
  • TypeResidential
  • Sub-TypeSingle Family Residence
  • StatusActive

Community Information

  • Address1072 Cypress Way
  • SubdivisionThe Village at Castle Pines
  • CityCastle Rock
  • CountyDouglas
  • StateCO
  • Zip Code80108

Amenities

  • Parking Spaces5
  • ParkingOversized
  • # of Garages5
  • ViewGolf Course
  • Has PoolYes
  • PoolOutdoor Pool, Private

Amenities

Clubhouse, Fitness Center, Gated, Park, Playground, Pond Seasonal, Pool, Security, Spa/Hot Tub, Tennis Court(s), Trail(s)

Interior

  • HeatingForced Air
  • CoolingCentral Air
  • FireplaceYes
  • # of Fireplaces4
  • StoriesTwo

Interior Features

Breakfast Bar, Ceiling Fan(s), Eat-in Kitchen, Five Piece Bath, High Ceilings, Kitchen Island, Open Floorplan, Pantry, Primary Suite, Hot Tub, Vaulted Ceiling(s), Walk-In Closet(s), Wet Bar

Appliances

Bar Fridge, Dishwasher, Disposal, Microwave, Range, Range Hood, Refrigerator, Wine Cooler

Fireplaces

Family Room, Gas, Great Room, Living Room, Primary Bedroom

Exterior

  • RoofConcrete
  • FoundationSlab

Exterior Features

Lighting, Private Yard, Spa/Hot Tub

Lot Description

Cul-De-Sac, Landscaped, Many Trees, On Golf Course

School Information

  • DistrictDouglas RE-1
  • ElementaryBuffalo Ridge
  • MiddleRocky Heights
  • HighRock Canyon

Additional Information

  • Date ListedFebruary 10th, 2026
  • ZoningPDU

Listing Details

  • Coldwell Banker Realty 24
Please provide a valid email address.

Terms and Conditions: The content relating to real estate for sale in this Web site comes in part from the Internet Data eXchange ("IDX") program of METROLIST, INC., DBA RECOLORADO® Real estate listings held by brokers other than RE/MAX Professionals are marked with the IDX Logo. This information is being provided for the consumers personal, non-commercial use and may not be used for any other purpose. All information subject to change and should be independently verified.

Copyright 2026 METROLIST, INC., DBA RECOLORADO® -- All Rights Reserved 6455 S. Yosemite St., Suite 500 Greenwood Village, CO 80111 USA

Listing information last updated on February 20th, 2026 at 7:03pm MST.