Connect

6870 Juniper Drive, Thornton, CO – $499,000

  • 3 Beds
  • 3 Baths
  • 1,803 Sqft
  • .07 Acres
  • 3 Beds
  • 3 Baths
  • 1,803 Sqft
  • .07 Acres

New Search X

6870 Juniper Drive

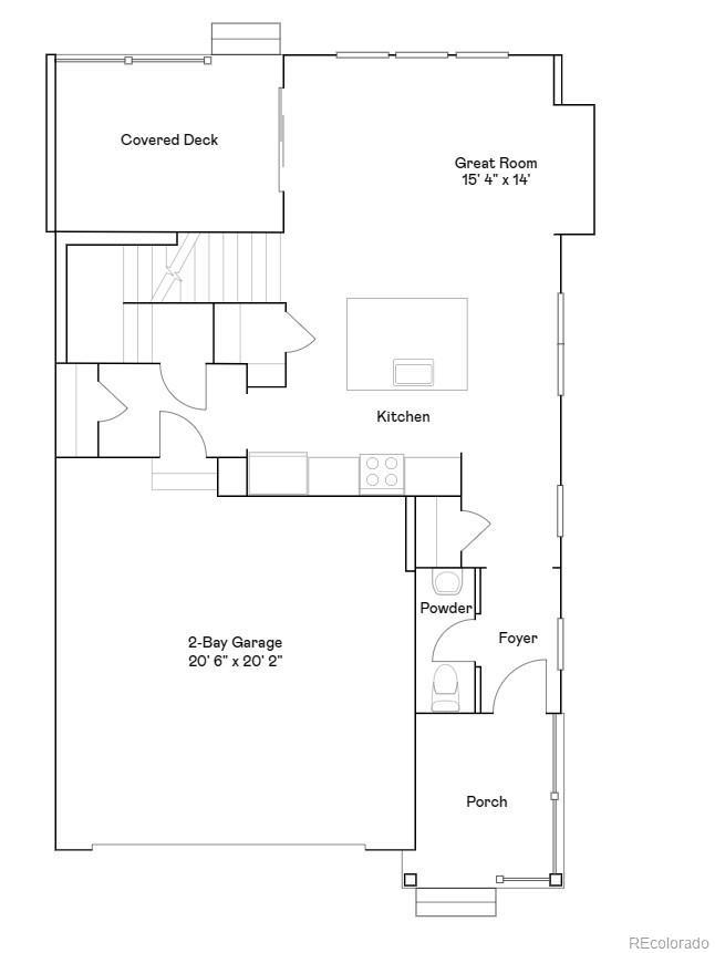
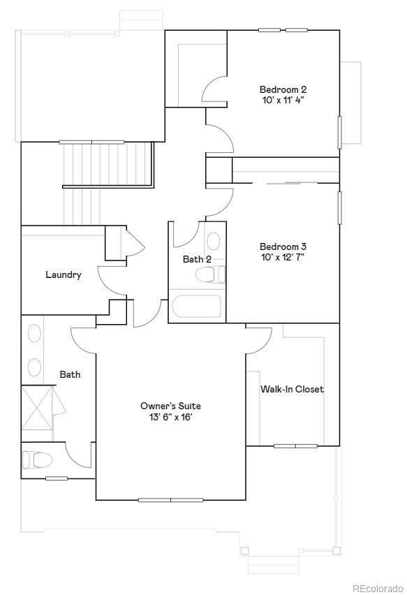
*** This home eligible for Special Financing - Terms and conditions apply - Ask for details!***Discover the perfect blend of style, comfort, and functionality in this beautifully designed paired home. The open-concept main level seamlessly unites the kitchen and Great Room, extending effortlessly to a covered deck—perfect for outdoor dining, morning coffee, or evening relaxation. Upstairs, three inviting bedrooms await, including a refined owner’s suite that offers peaceful privacy and modern comfort. A conveniently located laundry room enhances everyday ease. Elevated finishes throughout—such as luxury vinyl plank flooring and sleek quartz countertops—add a touch of sophistication, while the unfinished basement provides endless potential for future customization. Located in a thriving community, you’ll enjoy quick access to Denver Premium Outlets for exceptional shopping and dining, as well as abundant recreation at Trail Winds Recreation Center. This home delivers a versatile lifestyle designed to complement every chapter of life. Estimated completion is April 2026.

Listing Office: Coldwell Banker Realty 56

Essential Information

  • MLS® #3658220
  • Price$499,000
  • Bedrooms3
  • Bathrooms3.00
  • Full Baths1
  • Half Baths1
  • Square Footage1,803
  • Acres0.07
  • Year Built2024
  • TypeResidential
  • Sub-TypeSingle Family Residence
  • StyleContemporary
  • StatusPending

Community Information

  • Address6870 Juniper Drive
  • SubdivisionParterre
  • CityThornton
  • CountyAdams
  • StateCO
  • Zip Code80602

Amenities

  • Parking Spaces2
  • # of Garages2

Interior

  • HeatingForced Air
  • CoolingCentral Air
  • StoriesTwo

Interior Features

Eat-in Kitchen, Entrance Foyer, Kitchen Island, Open Floorplan, Primary Suite, Quartz Counters, Walk-In Closet(s)

Appliances

Dishwasher, Disposal, Microwave, Oven, Refrigerator

Exterior

  • WindowsDouble Pane Windows
  • RoofComposition
  • FoundationSlab

School Information

  • DistrictSchool District 27-J
  • ElementaryWest Ridge
  • MiddleRoger Quist
  • HighRiverdale Ridge

Additional Information

  • Date ListedNovember 21st, 2025

Listing Details

  • Coldwell Banker Realty 56
Please provide a valid email address.

Terms and Conditions: The content relating to real estate for sale in this Web site comes in part from the Internet Data eXchange ("IDX") program of METROLIST, INC., DBA RECOLORADO® Real estate listings held by brokers other than RE/MAX Professionals are marked with the IDX Logo. This information is being provided for the consumers personal, non-commercial use and may not be used for any other purpose. All information subject to change and should be independently verified.

Copyright 2026 METROLIST, INC., DBA RECOLORADO® -- All Rights Reserved 6455 S. Yosemite St., Suite 500 Greenwood Village, CO 80111 USA

Listing information last updated on February 6th, 2026 at 6:33pm MST.