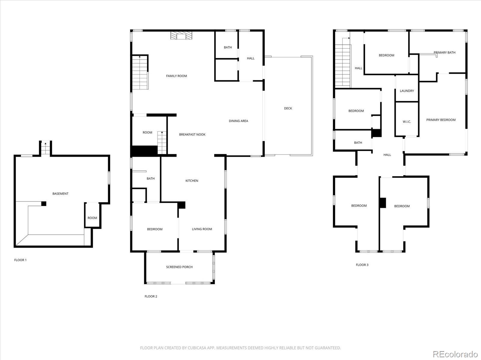
Welcome to 4144 Depew, in the heart of sought after Mountain View, a picturesque, quaint town in Denver. *This home was appraised in May of this year for $1,995,000- instant $200,000 equity!* It also has a legal STR license- nearly impossible to get in Denver! Located just blocks from Tennyson St, Sloan’s Lake, Randall Park, Edgewater, Highlands Square & Berkeley Park, this meticulously crafted custom home embodies everything buyers are asking for. Originally built in 1924, all of the unique character that makes a historic home special have been highlighted in this luxury designer farmhouse. There is also a privacy boasting ADU above the detached 2 car garage, which can be used as a mother-in-law suite, or an income generating opportunity. The 540 sq ft ADU is currently generating $2030/month. The main home features 5 beds/4 baths, and the ADU is a 1 bed/1 full bath w/ laundry hook-up, & private entrance. Notable features of the home include: historic sunroom-original to the 1924 home, main floor primary (or office) with en suite and heated floors, large open kitchen with high end appliances, custom wood cabinetry, tons of storage, cozy under the stairs reading nook, hidden door leading to partial basement and incredible storage area, dining room with huge bar, full wall of sliding glass doors, expansive deck and paradise like back yard and separate courtyard, fire pit, dog run, two car garage with electric car charger, fully fenced front and back yard, front and back sprinklers, two separate furnace and AC units for each floor to maximize heating and cooling, upper level laundry, game room, deck off the primary bedroom, and second en suite with heated floors, automatic heated bidet, and giant rain head. Don't miss your chance to own this beautiful custom home, as well as have a chance to walk into instant equity, an income generating opportunity (offset your mortgage!), or the potential to continue the already successful Airbnb! Home can be sold fully furnished
Listing Office: Bradway Real Estate, LLC  
 
Concrete, Dry Walled, Exterior Access Door
Breakfast Bar, Built-in Features, Butcher Counters, Ceiling Fan(s), Entrance Foyer, Five Piece Bath, Granite Counters, High Ceilings, High Speed Internet, In-Law Floorplan, Kitchen Island, Open Floorplan, Pantry, Primary Suite, Quartz Counters, Smart Thermostat, Smoke Free, Vaulted Ceiling(s), Walk-In Closet(s)
Bar Fridge, Convection Oven, Dishwasher, Disposal, Freezer, Microwave, Oven, Range, Range Hood, Refrigerator, Smart Appliance(s), Wine Cooler
Balcony, Dog Run, Lighting, Private Yard, Rain Gutters
 Bradway Real Estate, LLC
Bradway Real Estate, LLC Terms and Conditions: The content relating to real estate for sale in this Web site comes in  part from the Internet Data eXchange ("IDX") program of METROLIST, INC., DBA RECOLORADO® Real estate listings held by brokers other than RE/MAX Professionals are marked with the IDX Logo. This information is being  provided for the consumers personal, non-commercial use and may not be  used for any other purpose. All information subject to change and  should be independently verified.
 Terms and Conditions: The content relating to real estate for sale in this Web site comes in  part from the Internet Data eXchange ("IDX") program of METROLIST, INC., DBA RECOLORADO® Real estate listings held by brokers other than RE/MAX Professionals are marked with the IDX Logo. This information is being  provided for the consumers personal, non-commercial use and may not be  used for any other purpose. All information subject to change and  should be independently verified.
Copyright 2025 METROLIST, INC., DBA RECOLORADO® -- All Rights Reserved 6455 S. Yosemite St., Suite 500 Greenwood Village, CO 80111 USA
Listing information last updated on October 31st, 2025 at 4:33am MDT.