Connect

4266 Orchid Street, Colorado Springs, CO – $999,900

  • 8 Beds
  • 8 Baths
  • 5,116 Sqft
  • .16 Acres
  • 8 Beds
  • 8 Baths
  • 5,116 Sqft
  • .16 Acres

New Search X

4266 Orchid Street

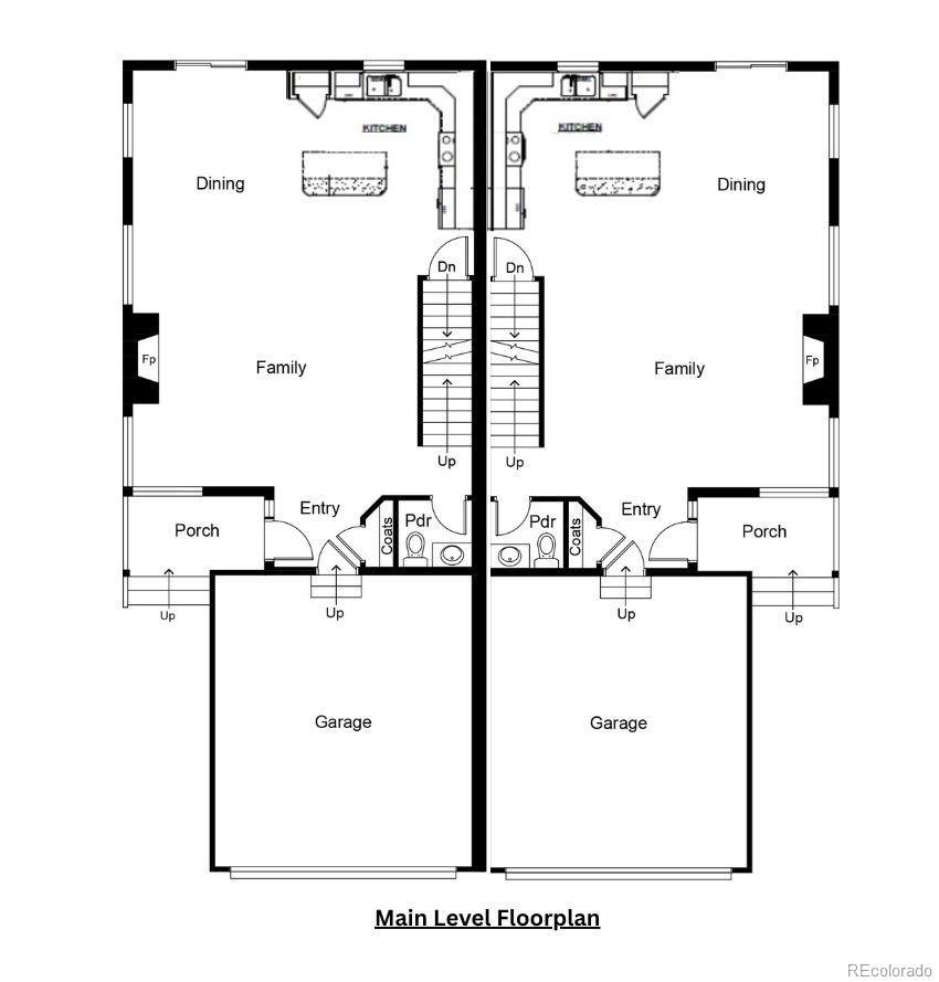
Excellent opportunity to invest in popular location with lots of rental demand. Each unit has 4 bedrooms, 4 bathrooms, and a 2 car garage. Open, spacious layouts! Modern open concept kitchen, living, dining space. Private fenced back yards with auto sprinklers and xeriscaped front yards. Primary bedrooms have full attached bathrooms with double vanities. Low maintenance stucco two-story duplex with 2,594 sqft total per unit. Kitchen features granite counters, island, pantry, and shaker style cabinets with extended height 42 inch upper cabinetry. Living room offers gas fireplace with tile surround and generous can light placement. Dining space walks out to the back yard with privacy fence. Luxury vinyl tile flooring in entry, kitchen, dining, living room, bathrooms, and laundry. Full finished basement has a bedroom, full bathroom, and a rec room pre-plumbed for a wet bar. A/C is included. Convenient to Academy, Powers, Austin Bluffs, and UCCS. Private cul-de-sac, quiet location.

Listing Office: Live Dream Colorado LLC

Essential Information

  • MLS® #3786682
  • Price$999,900
  • Bedrooms8
  • Bathrooms8.00
  • Square Footage5,116
  • Acres0.16
  • Year Built2025
  • TypeResidential Income
  • Sub-TypeDuplex
  • StyleContemporary
  • StatusActive

Community Information

  • Address4266 Orchid Street
  • SubdivisionPark Vista
  • CityColorado Springs
  • CountyEl Paso
  • StateCO
  • Zip Code80917

Amenities

  • Parking Spaces4
  • ParkingConcrete
  • # of Garages4

Utilities

Electricity Connected, Natural Gas Connected

Interior

  • HeatingForced Air, Natural Gas
  • CoolingCentral Air
  • FireplaceYes
  • # of Fireplaces2
  • FireplacesGas, Living Room
  • StoriesTwo

Interior Features

Granite Counters, High Ceilings, In-Law Floorplan, Kitchen Island, Open Floorplan, Pantry, Primary Suite, Smoke Free, Walk-In Closet(s)

Appliances

Dishwasher, Disposal, Dryer, Microwave, Oven, Range, Refrigerator, Washer

Exterior

  • Exterior FeaturesPrivate Yard
  • Lot DescriptionCul-De-Sac
  • RoofComposition
  • FoundationSlab

School Information

  • DistrictColorado Springs 11
  • ElementaryCarver
  • MiddleSabin
  • HighDoherty

Additional Information

  • Date ListedJuly 18th, 2025
  • ZoningR

Listing Details

  • Live Dream Colorado LLC
Please provide a valid email address.

Terms and Conditions: The content relating to real estate for sale in this Web site comes in part from the Internet Data eXchange ("IDX") program of METROLIST, INC., DBA RECOLORADO® Real estate listings held by brokers other than RE/MAX Professionals are marked with the IDX Logo. This information is being provided for the consumers personal, non-commercial use and may not be used for any other purpose. All information subject to change and should be independently verified.

Copyright 2025 METROLIST, INC., DBA RECOLORADO® -- All Rights Reserved 6455 S. Yosemite St., Suite 500 Greenwood Village, CO 80111 USA

Listing information last updated on December 26th, 2025 at 3:48am MST.