Connect

1145 S Wolff Street, Denver, CO – $425,000

  • 2 Beds
  • 1 Bath
  • 1,159 Sqft
  • .17 Acres
  • 2 Beds
  • 1 Bath
  • 1,159 Sqft
  • .17 Acres

New Search X

1145 S Wolff Street

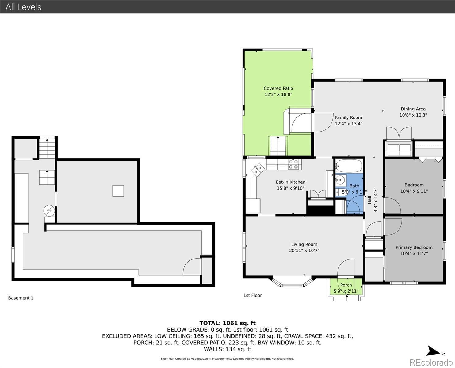
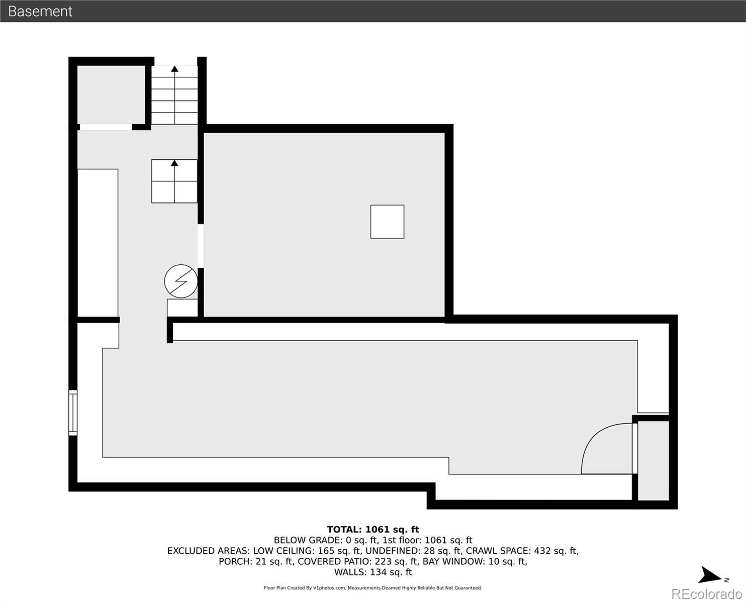
Very nice, well-cared-for and centrally located 1,159 sq ft ranch-style home offering 2 bedrooms and 1 full bath. This home features a large kitchen with breakfast nook, newer appliances, a spacious living/front room highlighted by a beautiful bay window, and a generously sized family room. Major updates include a new Class 4 composition shingle roof, newer sewer line, and newer windows throughout. Outdoor features include a covered back patio, a large yard with sprinkler system front and back, a beautiful block retaining wall, and a storage shed. The home also offers covered access to the crawl space with 7-foot ceilings, a dedicated workspace, and exceptional storage—making it a comfortable and functional workroom. Ample off-street parking is available in the driveway, with additional parking off the alley in the back. A solid, thoughtfully maintained home with great functionality and updates.

Listing Office: RE/MAX Professionals

Essential Information

  • MLS® #3860313
  • Price$425,000
  • Bedrooms2
  • Bathrooms1.00
  • Full Baths1
  • Square Footage1,159
  • Acres0.17
  • Year Built1952
  • TypeResidential
  • Sub-TypeSingle Family Residence
  • StyleBungalow
  • StatusPending

Community Information

  • Address1145 S Wolff Street
  • SubdivisionSheridan Park
  • CityDenver
  • CountyDenver
  • StateCO
  • Zip Code80219

Amenities

  • Parking Spaces4

Interior

  • Interior FeaturesBreakfast Bar, Ceiling Fan(s)
  • HeatingForced Air, Natural Gas
  • CoolingNone
  • StoriesOne

Appliances

Dishwasher, Microwave, Range, Refrigerator

Exterior

  • WindowsDouble Pane Windows
  • RoofComposition
  • FoundationBlock

Lot Description

Landscaped, Level, Sprinklers In Front, Sprinklers In Rear

School Information

  • DistrictDenver 1
  • ElementaryForce
  • MiddleStrive Westwood
  • HighJohn F. Kennedy

Additional Information

  • Date ListedJanuary 13th, 2026
  • ZoningE-SU-DX

Listing Details

  • RE/MAX Professionals
Please provide a valid email address.

Terms and Conditions: The content relating to real estate for sale in this Web site comes in part from the Internet Data eXchange ("IDX") program of METROLIST, INC., DBA RECOLORADO® Real estate listings held by brokers other than RE/MAX Professionals are marked with the IDX Logo. This information is being provided for the consumers personal, non-commercial use and may not be used for any other purpose. All information subject to change and should be independently verified.

Copyright 2026 METROLIST, INC., DBA RECOLORADO® -- All Rights Reserved 6455 S. Yosemite St., Suite 500 Greenwood Village, CO 80111 USA

Listing information last updated on January 30th, 2026 at 5:18am MST.