Connect

8060 E Girard Avenue 614, Denver, CO – $125,000

  • $125k Price
  • 1 Bed
  • 1 Bath
  • 754 Sqft
  • $125k Price
  • 1 Bed
  • 1 Bath
  • 754 Sqft

New Search X

8060 E Girard Avenue 614

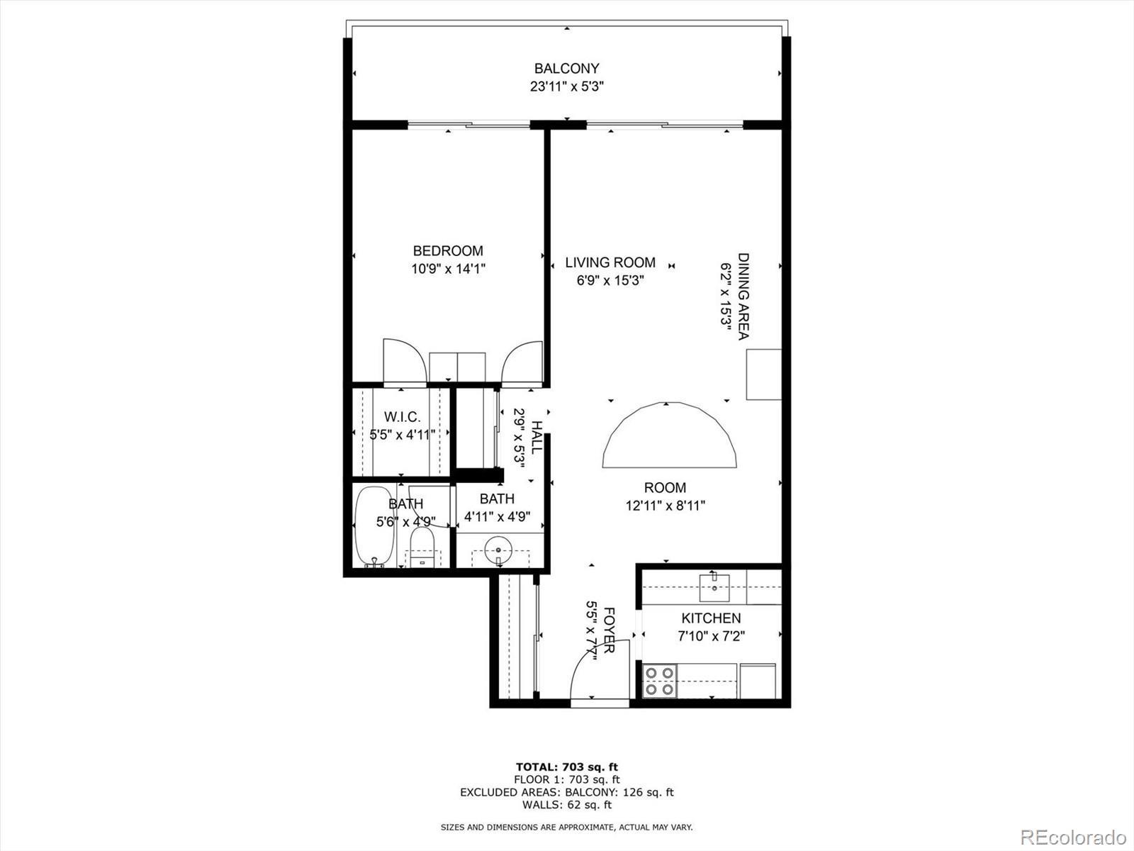
Welcome to this fabulous, 1-bedroom condominium, where breathtaking mountain views and abundant natural light greet you at every turn. This home is perfectly situated to capture the best of its surroundings. Inside this well-maintained residence the expansive, living room opens to the balcony and dinging areas, creating a seamless connection between comfort and serenity. The light and bright kitchen features a tile floor and flattop stove, provide a clean and modern feel. The well-proportioned primary bedroom boasts a walk-in closet, providing plenty of storage. Step onto the covered south-facing balcony, accessible from both the living room and bedroom, to enjoy your morning coffee or unwind during a stunning sunset, the perfect place to relax and soak in the peaceful surroundings and incredible vistas and is a true highlight of this home. Inside, you'll find an open floor plan that maximizes space and functionality, while the building offers true maintenance-free living. HOA dues cover nearly all utilities, has onsite management, and provide access to a wealth of amenities, including an in-house gym, billiards, ping pong, indoor and outdoor pools, hot tub, sauna, party room, community laundry, and barbershop! Convenience is key with shopping and dining options just a short walk away, including Whole Foods, Target, Starbucks, and nearby shopping centers. Take advantage of the nearby parks for leisurely strolls or outdoor activities. Transportation is a breeze with easy access to major highways, I-25 and I-225, as well as Light Rail Park-n-Ride and bus routes. Parking options include upper deck parking and underground garage spaces available for rent from the HOA. No unit has a deeded or assigned parking space, as all are owned by the association. Don't miss out on this fantastic opportunity to experience maintenance-free living with a host of amenities and a prime location. Schedule a showing today and make this your new home sweet home!

Listing Office: D R Real Estate Inc.

Essential Information

  • MLS® #3938349
  • Price$125,000
  • Bedrooms1
  • Bathrooms1.00
  • Full Baths1
  • Square Footage754
  • Acres0.00
  • Year Built1974
  • TypeResidential
  • Sub-TypeCondominium
  • StyleMid-Century Modern
  • StatusActive

Community Information

  • Address8060 E Girard Avenue 614
  • SubdivisionHampden East
  • CityDenver
  • CountyDenver
  • StateCO
  • Zip Code80231

Amenities

  • Parking Spaces2
  • # of Garages1
  • ViewCity, Mountain(s)
  • Has PoolYes
  • PoolIndoor

Amenities

Coin Laundry, Concierge, Elevator(s), Fitness Center, Gated, Laundry, On Site Management, Parking, Pool, Sauna, Spa/Hot Tub, Tennis Court(s)

Utilities

Cable Available, Electricity Connected, Phone Available

Interior

  • HeatingForced Air, Hot Water
  • CoolingCentral Air
  • StoriesOne

Interior Features

Entrance Foyer, Laminate Counters, Smoke Free, Walk-In Closet(s)

Appliances

Dishwasher, Disposal, Range, Range Hood, Refrigerator

Exterior

  • Exterior FeaturesBalcony
  • WindowsWindow Coverings
  • RoofMembrane, Unknown

School Information

  • DistrictDenver 1
  • ElementaryHolm
  • MiddleHamilton
  • HighThomas Jefferson

Additional Information

  • Date ListedAugust 13th, 2025
  • ZoningS-MU-12

Listing Details

  • D R Real Estate Inc.
Please provide a valid email address.

Terms and Conditions: The content relating to real estate for sale in this Web site comes in part from the Internet Data eXchange ("IDX") program of METROLIST, INC., DBA RECOLORADO® Real estate listings held by brokers other than RE/MAX Professionals are marked with the IDX Logo. This information is being provided for the consumers personal, non-commercial use and may not be used for any other purpose. All information subject to change and should be independently verified.

Copyright 2025 METROLIST, INC., DBA RECOLORADO® -- All Rights Reserved 6455 S. Yosemite St., Suite 500 Greenwood Village, CO 80111 USA

Listing information last updated on December 26th, 2025 at 11:03am MST.