Connect

15516 W 64th Loop F, Arvada, CO – $465,000

  • 3 Beds
  • 3 Baths
  • 1,424 Sqft
  • .02 Acres
  • 3 Beds
  • 3 Baths
  • 1,424 Sqft
  • .02 Acres

New Search X

15516 W 64th Loop F

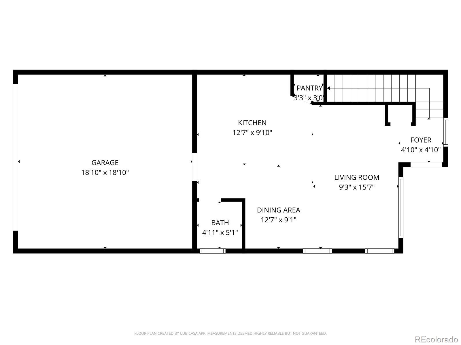
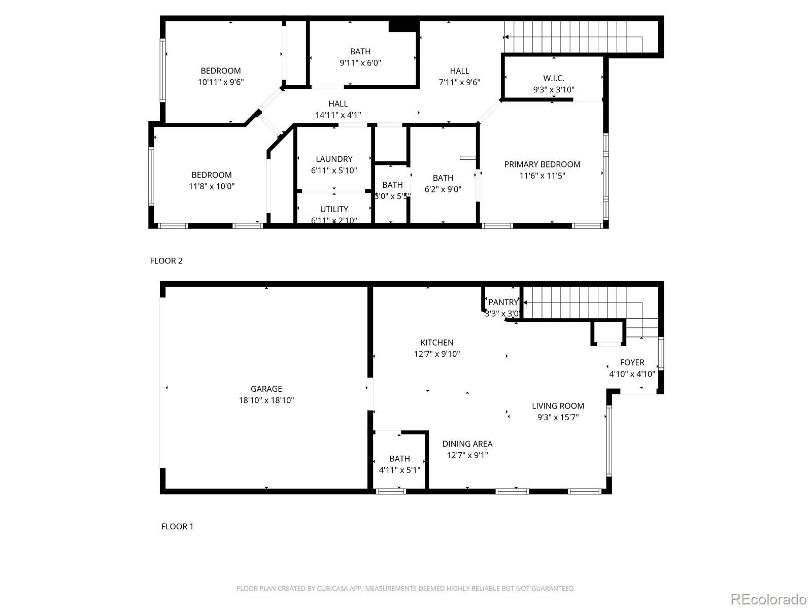
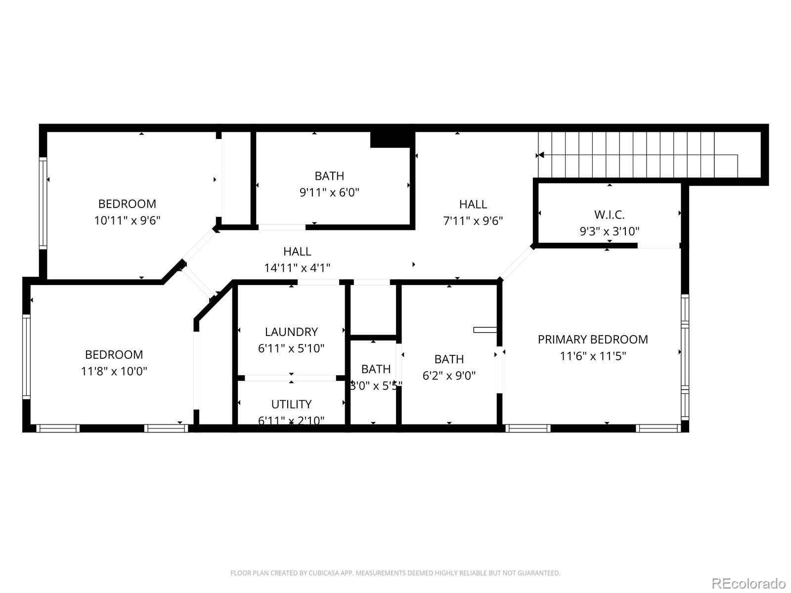
Welcome to this charming end-unit townhome featuring a covered front porch, perfect for relaxing or greeting guests. Step inside to an inviting open floor plan that seamlessly connects the family room and kitchen making entertaining on a small or large scale easy. The kitchen boasts quartz countertops, a spacious island, ample warm maple cabinetry for storage, a pantry, and a gas stove ideal for everyday living. Luxury vinyl planked flooring extends throughout the main level and provides the warm look of wood but very easy care if you have pets or children. Lots of windows provides daily sunlight making it a cheerful place to live. This level also has a powder bath. Upstairs, you’ll find three bedrooms and two bathrooms, including a generous primary suite complete with a private en suite bathroom and walk-in closet. The upper level also offers a dedicated laundry room and a versatile nook area that’s perfect for a home office, reading space, or play area. This home also includes an attached two car garage, a Ring doorbell, and a Ring camera above the garage for added peace of mind. Residents of this sought-after community enjoy access to a pool and playground, with HOA coverage that includes water, sewer, trash, recycling, and grounds maintenance. Ideally located in West Arvada and feeding to excellent ranked schools, making this spacious home perfect for busy families. Walking distance to local shopping and dining options and 20 minutes to either Downtown Denver, Boulder or the beautiful foothills. Just a block from the Ralston Creek trail making it easy to access miles of trails for biking/walking and is less than a mile to the West Woods Golf Course. Discover why this community is widely loved by young professionals, families and empty nesters alike! Come discover why this is the place you have been waiting to call HOME!!

Listing Office: Keller Williams Realty Northern Colorado

Essential Information

  • MLS® #4031721
  • Price$465,000
  • Bedrooms3
  • Bathrooms3.00
  • Full Baths1
  • Half Baths1
  • Square Footage1,424
  • Acres0.02
  • Year Built2018
  • TypeResidential
  • Sub-TypeTownhouse
  • StatusActive

Community Information

  • Address15516 W 64th Loop F
  • SubdivisionHometown South
  • CityArvada
  • CountyJefferson
  • StateCO
  • Zip Code80007

Amenities

  • AmenitiesPool
  • Parking Spaces2
  • # of Garages2

Utilities

Cable Available, Electricity Connected, Internet Access (Wired), Natural Gas Connected

Interior

  • HeatingForced Air
  • CoolingCentral Air
  • StoriesTwo

Interior Features

Ceiling Fan(s), Eat-in Kitchen, High Ceilings, Kitchen Island, Pantry, Primary Suite, Quartz Counters, Walk-In Closet(s)

Appliances

Dishwasher, Disposal, Microwave, Oven, Refrigerator, Self Cleaning Oven

Exterior

  • RoofComposition

School Information

  • DistrictJefferson County R-1
  • ElementaryStott
  • MiddleDrake
  • HighArvada West

Additional Information

  • Date ListedFebruary 25th, 2026

Listing Details

Keller Williams Realty Northern Colorado

Please provide a valid email address.

Terms and Conditions: The content relating to real estate for sale in this Web site comes in part from the Internet Data eXchange ("IDX") program of METROLIST, INC., DBA RECOLORADO® Real estate listings held by brokers other than RE/MAX Professionals are marked with the IDX Logo. This information is being provided for the consumers personal, non-commercial use and may not be used for any other purpose. All information subject to change and should be independently verified.

Copyright 2026 METROLIST, INC., DBA RECOLORADO® -- All Rights Reserved 6455 S. Yosemite St., Suite 500 Greenwood Village, CO 80111 USA

Listing information last updated on February 28th, 2026 at 1:33pm MST.