Connect

2252 Still Meadows Court, Monument, CO – $624,900

  • 4 Beds
  • 2 Baths
  • 1,768 Sqft
  • .2 Acres
  • 4 Beds
  • 2 Baths
  • 1,768 Sqft
  • .2 Acres

New Search X

2252 Still Meadows Court

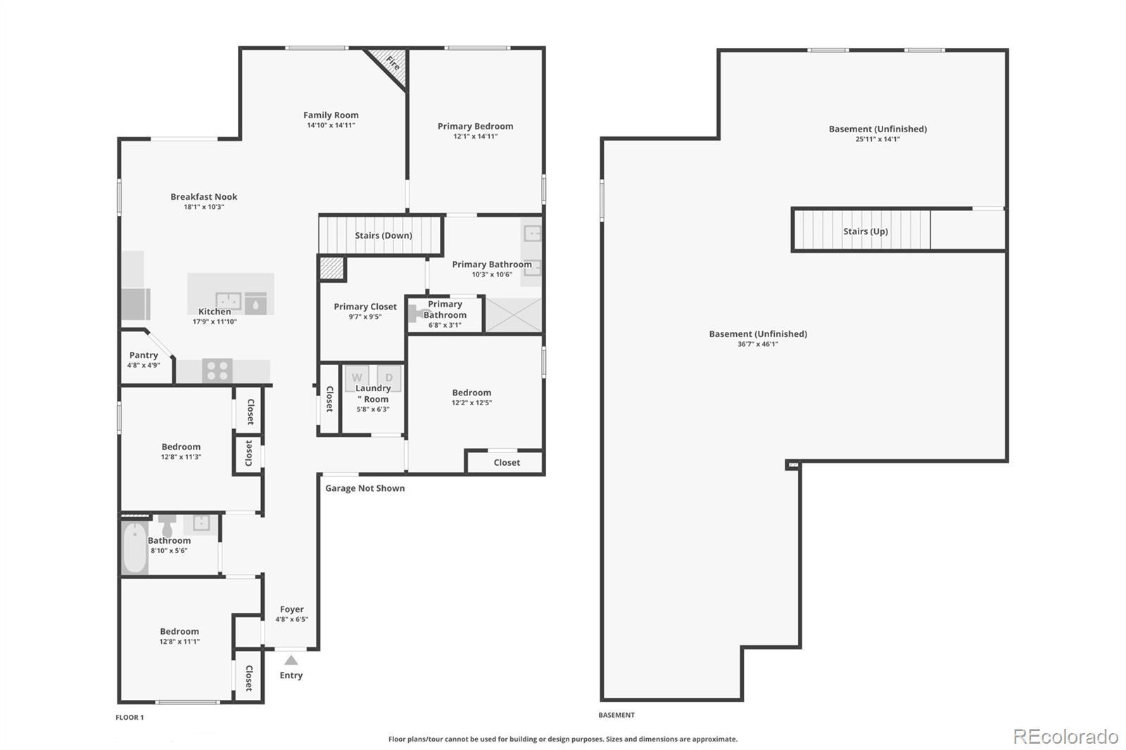
Nestled in a quiet cul de sac in Willow Springs Ranch, this beautifully maintained home offers exceptional mountain views, a neutral designer palette, and easy access to I-25 and downtown Monument. Thoughtfully designed for main level living, the home features luxury vinyl plank flooring throughout the main living spaces. The open concept kitchen is a standout with upgraded cabinetry, stainless steel appliances including a gas stove top, a walk-in pantry, and a large island ideal for gathering and entertaining. The kitchen flows seamlessly into a spacious dining area and inviting living room anchored by a cozy gas fireplace. A sliding glass door leads to the covered back patio, which has been extended with stamped concrete and complemented by a stamped concrete walkway, creating an ideal outdoor living space. The primary suite offers a generously sized bedroom and an ensuite bath with dual sinks, step-in shower, private water closet, and a large walk-in closet. The main level also includes three secondary bedrooms, a full hallway bathroom and a laundry room with new washer and dryer included. The unfinished basement provides excellent expansion potential with a rough-in for an additional bathroom, allowing future owners to customize to their needs. Additional highlights include a 2-car attached garage, split rail fencing, central air conditioning and fully landscaped front and back yards. This move-in ready home combines comfort, functionality, and location in one of Monument’s newest neighborhoods!

Listing Office: eXp Realty, LLC

Essential Information

  • MLS® #4066864
  • Price$624,900
  • Bedrooms4
  • Bathrooms2.00
  • Full Baths1
  • Square Footage1,768
  • Acres0.20
  • Year Built2023
  • TypeResidential
  • Sub-TypeSingle Family Residence
  • StatusPending

Community Information

  • Address2252 Still Meadows Court
  • SubdivisionWillow Springs Ranch
  • CityMonument
  • CountyEl Paso
  • StateCO
  • Zip Code80132

Amenities

  • Parking Spaces2
  • ParkingConcrete
  • # of Garages2
  • ViewMountain(s)

Utilities

Cable Available, Electricity Connected, Natural Gas Connected

Interior

  • HeatingForced Air, Natural Gas
  • CoolingCentral Air
  • FireplaceYes
  • # of Fireplaces1
  • FireplacesGas, Living Room
  • StoriesOne

Interior Features

Entrance Foyer, High Ceilings, High Speed Internet, Kitchen Island, Open Floorplan, Pantry, Primary Suite, Quartz Counters, Smoke Free, Walk-In Closet(s)

Appliances

Dishwasher, Disposal, Dryer, Microwave, Oven, Refrigerator, Tankless Water Heater, Washer

Exterior

  • Exterior FeaturesPrivate Yard
  • RoofComposition
  • FoundationSlab

Lot Description

Cul-De-Sac, Landscaped, Level

Windows

Double Pane Windows, Window Coverings

School Information

  • DistrictLewis-Palmer 38
  • ElementaryBear Creek
  • MiddleLewis-Palmer
  • HighLewis-Palmer

Additional Information

  • Date ListedJanuary 30th, 2026
  • ZoningPUD

Listing Details

  • eXp Realty, LLC
Please provide a valid email address.

Terms and Conditions: The content relating to real estate for sale in this Web site comes in part from the Internet Data eXchange ("IDX") program of METROLIST, INC., DBA RECOLORADO® Real estate listings held by brokers other than RE/MAX Professionals are marked with the IDX Logo. This information is being provided for the consumers personal, non-commercial use and may not be used for any other purpose. All information subject to change and should be independently verified.

Copyright 2026 METROLIST, INC., DBA RECOLORADO® -- All Rights Reserved 6455 S. Yosemite St., Suite 500 Greenwood Village, CO 80111 USA

Listing information last updated on February 2nd, 2026 at 2:18pm MST.