Connect

812 Dahlia Street, Denver, CO – $895,000

  • 3 Beds
  • 4 Baths
  • 2,216 Sqft
  • .04 Acres
  • 3 Beds
  • 4 Baths
  • 2,216 Sqft
  • .04 Acres

New Search X

812 Dahlia Street

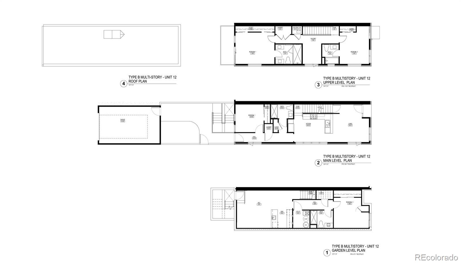
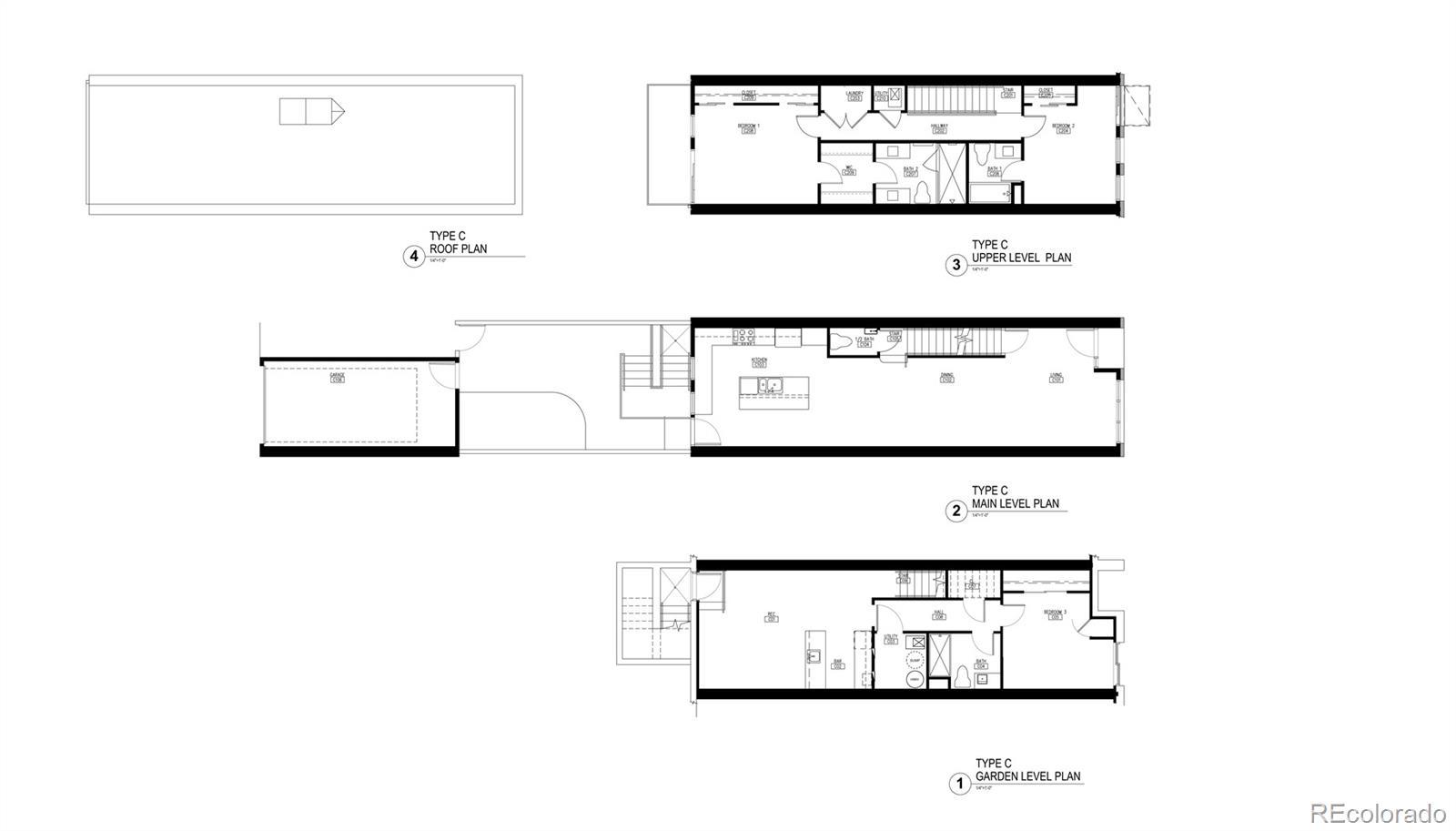
Brand-new modern townhomes in the highly desirable Hale/Montclair neighborhood, blocks from 9th & Colorado district with dining and entertainment including Culinary Dropout, Postino, Le French, Chook, and Blanco. This release includes only 12 residences, each offering nearly 2,300 square feet of flexible living with 3–4 bedrooms and 3–4 bathrooms. Select end units include a dedicated office/flex space—ideal for remote work, a playroom, or an additional lounge. Designed with both lifestyle and income potential in mind, the open-concept main level features high-end modern finishes, abundant natural light, and a kitchen built for function and style—maximizing counter space and storage while flowing seamlessly into the dining and living areas. Each home includes an oversized 1-car garage and a private backyard—an uncommon combination at this location and price point. The upper level is anchored by a spacious primary suite with large his-and-her closets. On the garden level, a private-entry suite from the backyard lives like a separate apartment—perfect for multigenerational living, a guest suite, or a rental setup to offset ownership costs. AirDNA projects short-term rental income in the $30,000–$40,000/year range, and proximity to Rose Medical Center supports strong demand for mid-term stays (including traveling nurses), with potential rental rates around $2,000/month.For income-minded buyers, a full-rental scenario at approximately $6,000/month produces a compelling expense profile with annual taxes around $5,000, insurance approximately $2,200, party wall association dues around $1,500, and misc. expenses around $1,000 (buyer to verify). With these figures, the property pencils as a strong performer for a central Denver new-build—ideal for investors, house hackers, and buyers seeking flexible occupancy options in a premier location. Keywords: Airbnb, house hacking, income potential, short-term rental, traveling nurse, VRBO, separate entrance, ADU-like, lock-off

Listing Office: MODUS Real Estate

Essential Information

  • MLS® #4081205
  • Price$895,000
  • Bedrooms3
  • Bathrooms4.00
  • Square Footage2,216
  • Acres0.04
  • Year Built2026
  • TypeResidential Income
  • Sub-TypeDuplex
  • StyleContemporary
  • StatusActive

Community Information

  • Address812 Dahlia Street
  • SubdivisionHale
  • CityDenver
  • CountyDenver
  • StateCO
  • Zip Code80220

Amenities

  • Parking Spaces1
  • Parking220 Volts, Oversized
  • # of Garages1

Utilities

Electricity Connected, Internet Access (Wired), Natural Gas Connected

Interior

  • HeatingForced Air
  • CoolingCentral Air
  • StoriesTwo

Interior Features

Eat-in Kitchen, High Ceilings, High Speed Internet, In-Law Floorplan, Kitchen Island, Open Floorplan, Pantry, Primary Suite, Quartz Counters, Radon Mitigation System, Walk-In Closet(s), Wet Bar

Appliances

Convection Oven, Dishwasher, Disposal, Gas Water Heater, Microwave, Oven, Range, Range Hood, Refrigerator, Self Cleaning Oven

Exterior

  • RoofMembrane
  • FoundationStructural

Exterior Features

Balcony, Lighting, Private Yard, Rain Gutters, Smart Irrigation

School Information

  • DistrictDenver 1
  • ElementarySteck
  • MiddleHill
  • HighGeorge Washington

Additional Information

  • Date ListedFebruary 6th, 2026
  • ZoningE-MU-2.5

Listing Details

  • MODUS Real Estate
Please provide a valid email address.

Terms and Conditions: The content relating to real estate for sale in this Web site comes in part from the Internet Data eXchange ("IDX") program of METROLIST, INC., DBA RECOLORADO® Real estate listings held by brokers other than RE/MAX Professionals are marked with the IDX Logo. This information is being provided for the consumers personal, non-commercial use and may not be used for any other purpose. All information subject to change and should be independently verified.

Copyright 2026 METROLIST, INC., DBA RECOLORADO® -- All Rights Reserved 6455 S. Yosemite St., Suite 500 Greenwood Village, CO 80111 USA

Listing information last updated on February 25th, 2026 at 7:18am MST.