Connect

10171 W 69th Avenue, Arvada, CO – $525,000

  • 3 Beds
  • 3 Baths
  • 2,008 Sqft
  • .21 Acres
  • 3 Beds
  • 3 Baths
  • 2,008 Sqft
  • .21 Acres

New Search X

10171 W 69th Avenue

*** New Carpet ***Private Oasis in Arvada – Spacious, Secluded & Full of Charm. Welcome to your serene escape in the heart of Arvada! Situated on a generously sized lot, this private oasis offers the perfect blend of space, comfort, and natural beauty. Surrounded by mature trees and lush landscaping nourished by groundwater irrigation, the outdoor space is ideal for relaxing, entertaining, or simply enjoying nature in peace. Step inside to discover a spacious interior designed for both everyday living and entertaining. Whether you're hosting gatherings or enjoying a quiet evening at home, there's room for it all. Enjoy peace of mind with recent updates, including a NEW Class 4 impact-resistant roof, a NEW furnace, and a newer water heater (2024). The oversized 2-car garage provides abundant space for vehicles, tools, and extra storage. Whether you're sipping coffee under the trees or hosting friends in your private backyard retreat, this home is a rare gem in a prime Arvada location. Don’t miss your chance to own this unique property that truly has it all!

Listing Office: Cardinal Real Estate, LLC

Essential Information

  • MLS® #4135434
  • Price$525,000
  • Bedrooms3
  • Bathrooms3.00
  • Full Baths2
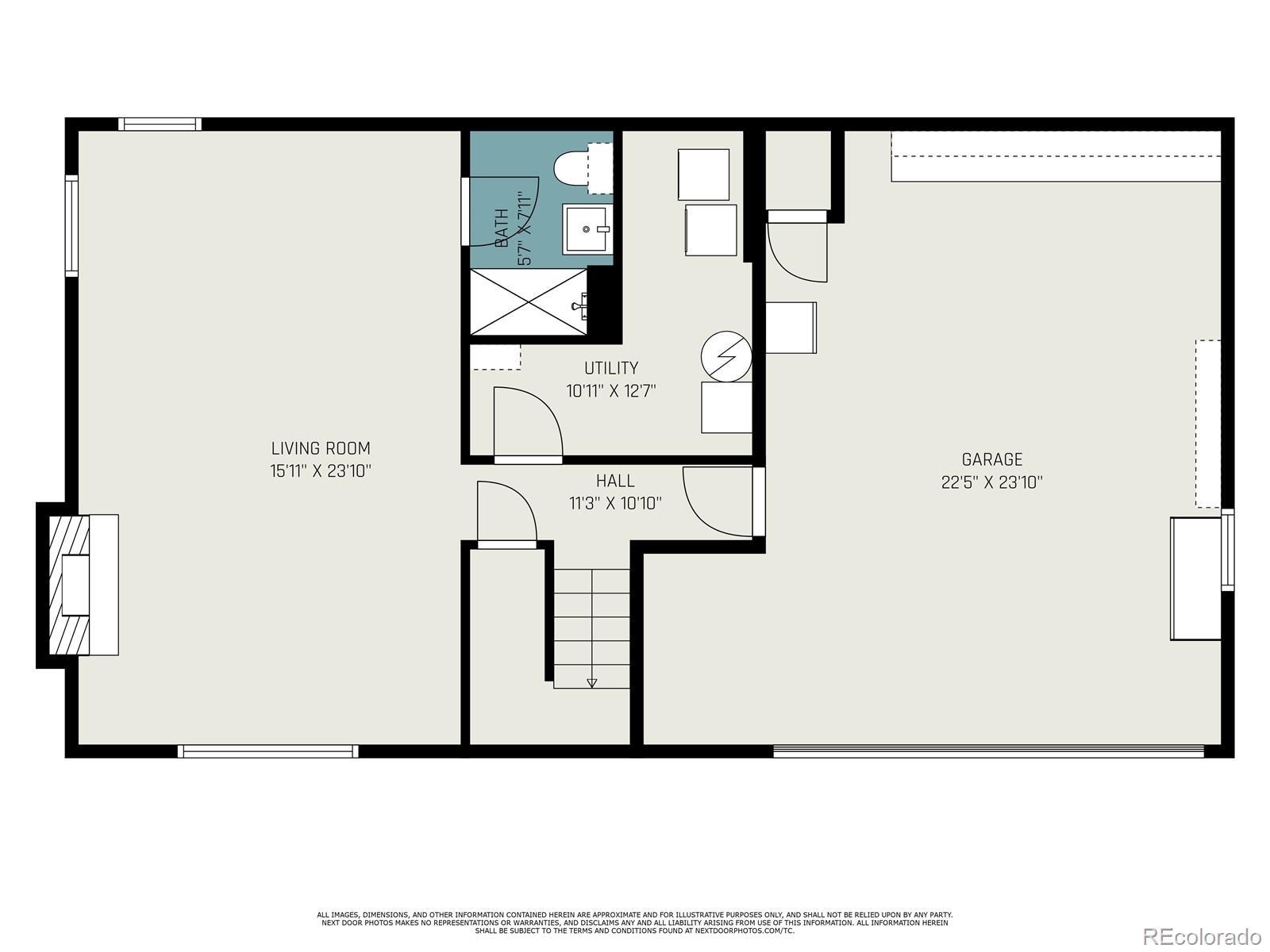
  • Square Footage2,008
  • Acres0.21
  • Year Built1972
  • TypeResidential
  • Sub-TypeSingle Family Residence
  • StatusPending

Community Information

  • Address10171 W 69th Avenue
  • SubdivisionWaverly Hills
  • CityArvada
  • CountyJefferson
  • StateCO
  • Zip Code80004

Amenities

  • Parking Spaces2
  • Parking220 Volts
  • # of Garages2

Interior

  • HeatingForced Air
  • CoolingEvaporative Cooling
  • FireplaceYes
  • # of Fireplaces1
  • FireplacesFamily Room
  • StoriesBi-Level

Appliances

Dishwasher, Dryer, Oven, Range, Refrigerator, Sump Pump, Washer

Exterior

  • WindowsBay Window(s)
  • RoofComposition

School Information

  • DistrictJefferson County R-1
  • ElementaryFremont
  • MiddleOberon
  • HighArvada West

Additional Information

  • Date ListedJuly 10th, 2025

Listing Details

  • Cardinal Real Estate, LLC
Please provide a valid email address.

Terms and Conditions: The content relating to real estate for sale in this Web site comes in part from the Internet Data eXchange ("IDX") program of METROLIST, INC., DBA RECOLORADO® Real estate listings held by brokers other than RE/MAX Professionals are marked with the IDX Logo. This information is being provided for the consumers personal, non-commercial use and may not be used for any other purpose. All information subject to change and should be independently verified.

Copyright 2025 METROLIST, INC., DBA RECOLORADO® -- All Rights Reserved 6455 S. Yosemite St., Suite 500 Greenwood Village, CO 80111 USA

Listing information last updated on December 2nd, 2025 at 1:33am MST.