Connect

2076 Alcott Way, Broomfield, CO – $509,900

  • 2 Beds
  • 3 Baths
  • 1,199 Sqft
  • .04 Acres
  • 2 Beds
  • 3 Baths
  • 1,199 Sqft
  • .04 Acres

New Search X

2076 Alcott Way

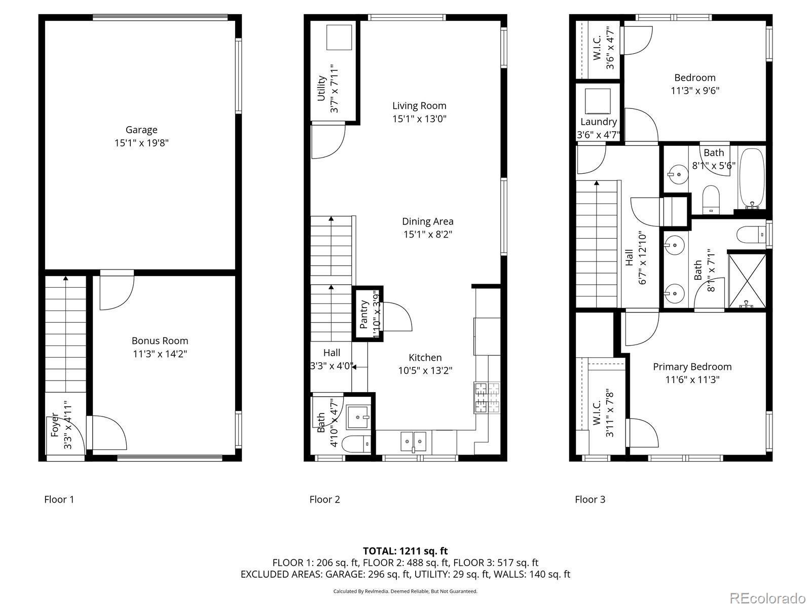
This stunning home combines modern design with sustainable living. Step inside to discover an open-concept main level with soaring 9-foot ceilings, a spacious kitchen featuring sleek stainless steel appliances, quartz countertops, a built-in pantry, and a stylish subway tile backsplash. The dining area flows seamlessly into the great room — perfect for entertaining or relaxing with friends and family. Upstairs, you'll find two spacious bedrooms, each with its own private bath and walk-in closet, along with a convenient upper-level laundry room and linen closet. The versatile DoMore space on the entry level is designed to adapt to your lifestyle...ideal for a home gym, office, creative studio, or just more storage. Interior finishes are absolutely gorgeous, featuring engineered wood flooring throughout main level, modern design touches, and thoughtful details in every corner. Enjoy comfort and peace of mind with energy-efficient features including solar panels, air conditioning, a tankless water heater, an active radon system, and an oversized one-car garage with a WiFi-enabled door opener. Solar lease is only $45/month. Built by Thrive Homes, this residence meets the highest standards of innovation and health. It is Zero Energy Ready, EPA Indoor airPLUS Qualified, and LEED Certified, ensuring superior efficiency and cleaner indoor air. Perfectly located between Denver and Boulder in the vibrant Baseline community, this home offers the ideal blend of convenience, sustainability, and style. Move-in ready! Schedule your private tour today!

Listing Office: Distinct Real Estate LLC

Essential Information

  • MLS® #4165505
  • Price$509,900
  • Bedrooms2
  • Bathrooms3.00
  • Full Baths1
  • Half Baths1
  • Square Footage1,199
  • Acres0.04
  • Year Built2021
  • TypeResidential
  • Sub-TypeTownhouse
  • StyleContemporary
  • StatusActive

Community Information

  • Address2076 Alcott Way
  • SubdivisionNorth Park
  • CityBroomfield
  • CountyBroomfield
  • StateCO
  • Zip Code80023

Amenities

  • AmenitiesPark, Playground
  • Parking Spaces1
  • # of Garages1

Utilities

Cable Available, Electricity Available, Natural Gas Available

Parking

Concrete, Dry Walled, Insulated Garage, Oversized

Interior

  • HeatingForced Air, Natural Gas
  • CoolingCentral Air
  • StoriesThree Or More

Interior Features

Built-in Features, High Ceilings, High Speed Internet, Open Floorplan, Quartz Counters, Smoke Free, Walk-In Closet(s)

Appliances

Dishwasher, Disposal, Dryer, Microwave, Oven, Range, Self Cleaning Oven, Tankless Water Heater, Washer

Exterior

  • WindowsWindow Coverings
  • RoofComposition
  • FoundationSlab

Exterior Features

Gas Valve, Private Yard, Rain Gutters

School Information

  • DistrictAdams 12 5 Star Schl
  • ElementaryThunder Vista
  • MiddleThunder Vista
  • HighLegacy

Additional Information

  • Date ListedOctober 31st, 2025
  • ZoningPUD

Listing Details

  • Distinct Real Estate LLC
Please provide a valid email address.

Terms and Conditions: The content relating to real estate for sale in this Web site comes in part from the Internet Data eXchange ("IDX") program of METROLIST, INC., DBA RECOLORADO® Real estate listings held by brokers other than RE/MAX Professionals are marked with the IDX Logo. This information is being provided for the consumers personal, non-commercial use and may not be used for any other purpose. All information subject to change and should be independently verified.

Copyright 2025 METROLIST, INC., DBA RECOLORADO® -- All Rights Reserved 6455 S. Yosemite St., Suite 500 Greenwood Village, CO 80111 USA

Listing information last updated on November 1st, 2025 at 3:48am MDT.