Connect

3401 N Steele Street, Denver, CO – $674,900

  • 4 Beds
  • 2 Baths
  • 2,069 Sqft
  • .11 Acres
  • 4 Beds
  • 2 Baths
  • 2,069 Sqft
  • .11 Acres

New Search X

3401 N Steele Street

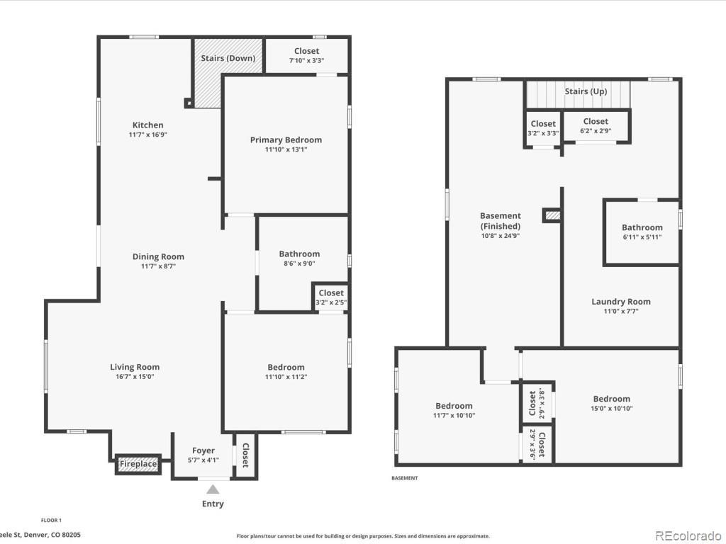
1938 brick Tudor in City Park North with skyline and Front Range views. Offering 2,069 finished square feet and a true four-bedroom layout, this home blends classic Denver architecture with thoughtful updates and flexible living space. Original details—including coved ceilings, arched openings, and large windows—create warmth and natural light throughout. The main level features refinished hardwood floors and an open layout with clear sightlines from front to back. The updated kitchen includes granite counters, stainless appliances, and an eat-in nook. The fully finished basement adds a spacious family/media area, full bath, and two conforming bedrooms with egress windows and closets—ideal for guests, roommates, or work-from-home flexibility. Major systems have been addressed, including central A/C (with warranty), radon mitigation system, and a recently cleaned and scoped sewer line. Significant remodel work was completed in 2015. Bright corner lot with open exposure, fenced yard, side balcony terrace, and multiple outdoor spaces. Detached two-car garage plus additional off-street parking. Zoned U-SU-B1 (ADU potential; buyer to verify). No HOA. Flexible closing.

Listing Office: Flynn Realty

Essential Information

  • MLS® #4177854
  • Price$674,900
  • Bedrooms4
  • Bathrooms2.00
  • Full Baths2
  • Square Footage2,069
  • Acres0.11
  • Year Built1938
  • TypeResidential
  • Sub-TypeSingle Family Residence
  • StyleTudor
  • StatusPending

Community Information

  • Address3401 N Steele Street
  • SubdivisionClayton
  • CityDenver
  • CountyDenver
  • StateCO
  • Zip Code80205

Amenities

  • Parking Spaces3
  • # of Garages2
  • ViewCity, Mountain(s)

Utilities

Cable Available, Electricity Connected, Internet Access (Wired), Natural Gas Connected, Phone Connected

Parking

Concrete, Exterior Access Door, Lighted

Interior

  • HeatingForced Air, Natural Gas
  • CoolingCentral Air
  • FireplaceYes
  • # of Fireplaces1
  • StoriesOne

Interior Features

Breakfast Bar, Built-in Features, Ceiling Fan(s), Entrance Foyer, Granite Counters, Jack & Jill Bathroom, Open Floorplan, Pantry, Primary Suite, Radon Mitigation System, Walk-In Closet(s)

Appliances

Dishwasher, Disposal, Dryer, Gas Water Heater, Microwave, Oven, Range, Range Hood, Washer

Exterior

  • RoofComposition
  • FoundationConcrete Perimeter

Exterior Features

Balcony, Barbecue, Fire Pit, Gas Grill, Lighting, Private Yard, Rain Gutters

Lot Description

Corner Lot, Landscaped, Level, Near Public Transit, Sprinklers In Front

Windows

Double Pane Windows, Egress Windows

School Information

  • DistrictDenver 1
  • ElementaryHarrington
  • MiddleWhittier E-8
  • HighManual

Additional Information

  • Date ListedFebruary 26th, 2026
  • ZoningU-SU-B1

Listing Details

  • Flynn Realty
Please provide a valid email address.

Terms and Conditions: The content relating to real estate for sale in this Web site comes in part from the Internet Data eXchange ("IDX") program of METROLIST, INC., DBA RECOLORADO® Real estate listings held by brokers other than RE/MAX Professionals are marked with the IDX Logo. This information is being provided for the consumers personal, non-commercial use and may not be used for any other purpose. All information subject to change and should be independently verified.

Copyright 2026 METROLIST, INC., DBA RECOLORADO® -- All Rights Reserved 6455 S. Yosemite St., Suite 500 Greenwood Village, CO 80111 USA

Listing information last updated on March 5th, 2026 at 11:34am MST.