Connect

10650 Yellowstone Road, Longmont, CO – $1,199,000

  • 4 Beds
  • 3 Baths
  • 2,812 Sqft
  • 7.24 Acres
  • 4 Beds
  • 3 Baths
  • 2,812 Sqft
  • 7.24 Acres

New Search X

10650 Yellowstone Road

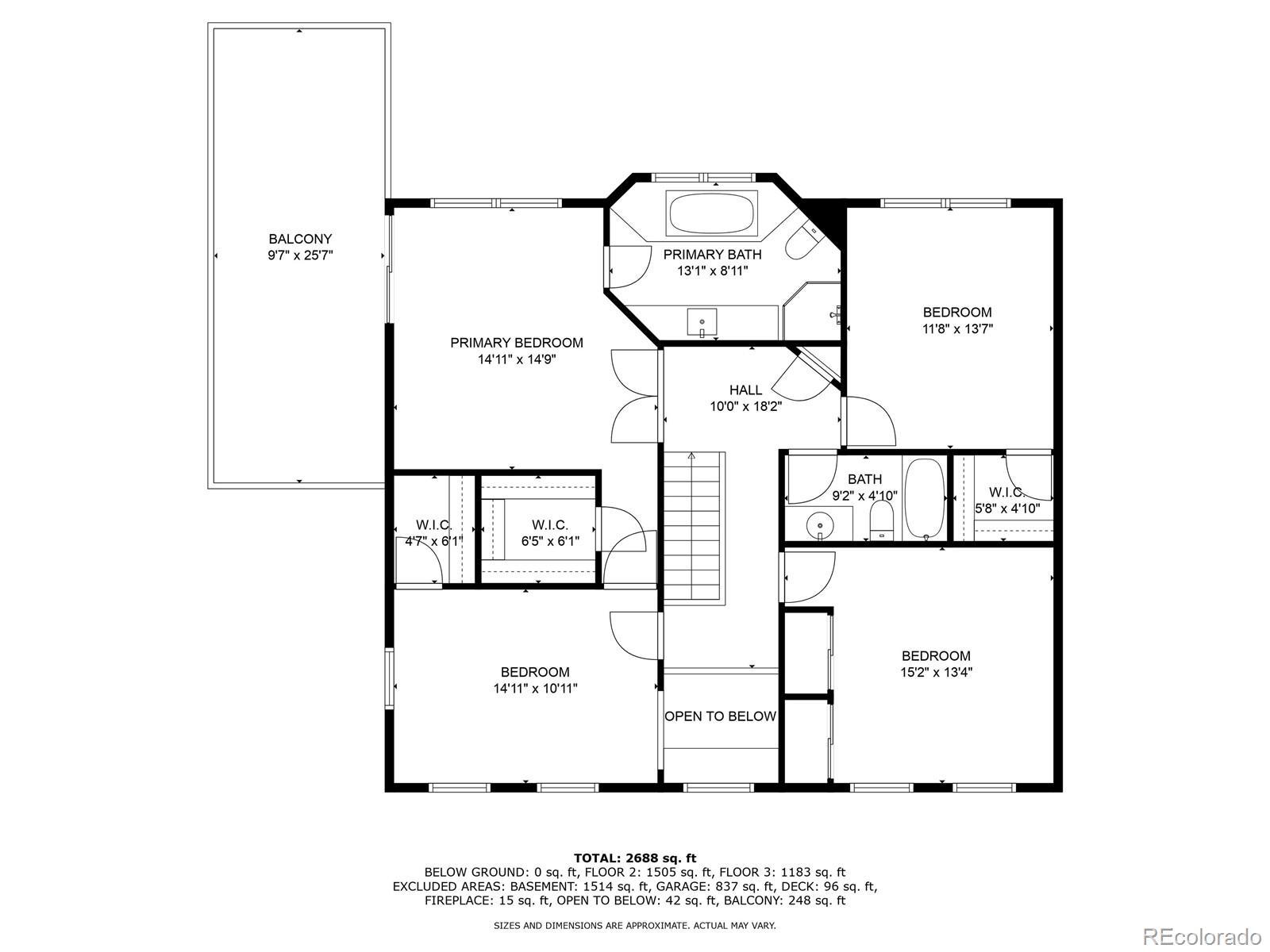
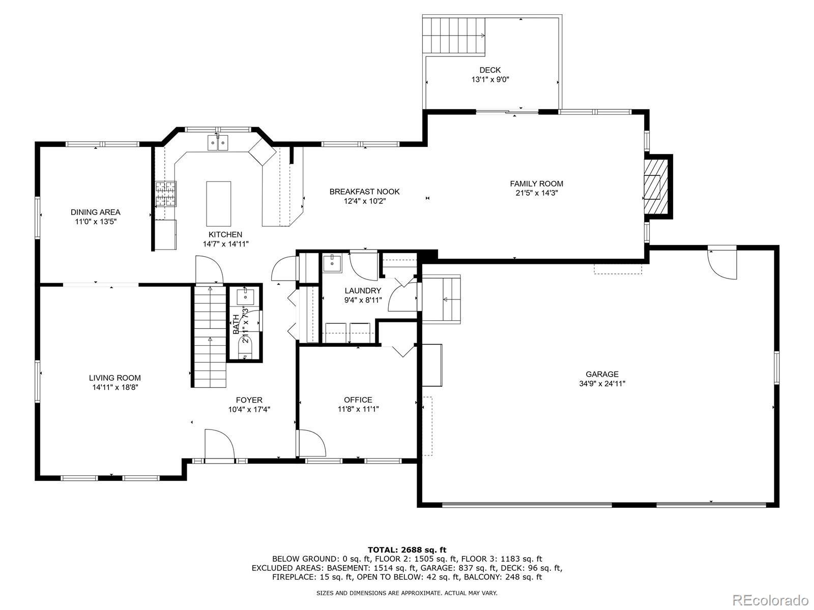
Welcome to the hilltop house on Yellowstone Road. Offering a $10,000 seller concession towards rate buydown, closing costs, or updates. The beautiful home has unobstructed views of the entire Front Range from Wyoming to the Spanish Peaks of Southern Colorado. This stunning crest location is surrounded by large farms and has views of Terry Lake and Ish Reservoir. The outdoor views will keep you enchanted with the Colorado landscape all day. Sitting on 7.24 Acres with no HOA allows for endless possibilities to create the lifestyle you desire. Inside, this four-bedroom, three-bath home features a walkout basement, open living space, and two home office spaces. The home features a large, open kitchen with brand new appliances. A functional breakfast bar connected to a large family room with vaulted ceiling. The main floor has an office, dining room, and additional living room. Enjoy meals on the brand-new deck overlooking Mount Meeker and Longs Peak. The large primary suite has its own private office, walk-in closet, large deck, a four-piece bathroom with a jetted tub, and a brand new shower makeover. New paint, roof, appliances, and outside makeover make this house low-maintenance. The solid brick construction makes this a superbly built home for year-round comfort and energy efficiency. An unfinished basement has great walkout space, a new concrete floor, and plenty of room for all your hobbies. Outside mature trees and a garden space allow for great year-round enjoyment. Horses or cattle would thrive on this hilltop property with great grass production. If you like, create a tree farm or winery on the expansive open land. Need eggs? Raise your own free range poultry in the two chicken coops with their own fenced runs. Easy access to the charming small town of Berthoud, known as the Garden Spot of Colorado, or all the amenities of Longmont and Boulder, and Rocky Mountain National Park. Book your showing today and explore the hilltop on Yellowstone Road.

Listing Office: Engel & Voelkers Aspen - Snowmass

Essential Information

  • MLS® #4221727
  • Price$1,199,000
  • Bedrooms4
  • Bathrooms3.00
  • Full Baths1
  • Half Baths1
  • Square Footage2,812
  • Acres7.24
  • Year Built1992
  • TypeResidential
  • Sub-TypeSingle Family Residence
  • StyleContemporary, Traditional
  • StatusActive

Community Information

  • Address10650 Yellowstone Road
  • SubdivisionNorthern Plains
  • CityLongmont
  • CountyBoulder
  • StateCO
  • Zip Code80504

Amenities

  • Parking Spaces3
  • # of Garages3

Utilities

Cable Available, Electricity Connected, Natural Gas Connected, Phone Connected

Parking

Gravel, Insulated Garage, Oversized, Oversized Door

View

City, Lake, Meadow, Mountain(s), Plains

Interior

  • HeatingForced Air
  • CoolingCentral Air
  • FireplaceYes
  • FireplacesGreat Room
  • StoriesTwo

Interior Features

Ceiling Fan(s), Central Vacuum, Eat-in Kitchen, Five Piece Bath, High Ceilings, Kitchen Island, Laminate Counters, Pantry, Primary Suite, Vaulted Ceiling(s), Walk-In Closet(s)

Appliances

Convection Oven, Cooktop, Dishwasher, Disposal, Dryer, Electric Water Heater, Oven, Range, Range Hood, Refrigerator, Washer

Exterior

  • RoofComposition
  • FoundationSlab

Exterior Features

Balcony, Dog Run, Garden, Private Yard

Lot Description

Landscaped, Level, Meadow, Subdividable, Suitable For Grazing

Windows

Double Pane Windows, Skylight(s)

School Information

  • DistrictSt. Vrain Valley RE-1J
  • ElementaryNorthridge
  • MiddleLongs Peak
  • HighLongmont

Additional Information

  • Date ListedFebruary 17th, 2025
  • ZoningResidential

Listing Details

Engel & Voelkers Aspen - Snowmass

Please provide a valid email address.

Terms and Conditions: The content relating to real estate for sale in this Web site comes in part from the Internet Data eXchange ("IDX") program of METROLIST, INC., DBA RECOLORADO® Real estate listings held by brokers other than RE/MAX Professionals are marked with the IDX Logo. This information is being provided for the consumers personal, non-commercial use and may not be used for any other purpose. All information subject to change and should be independently verified.

Copyright 2025 METROLIST, INC., DBA RECOLORADO® -- All Rights Reserved 6455 S. Yosemite St., Suite 500 Greenwood Village, CO 80111 USA

Listing information last updated on December 31st, 2025 at 11:03am MST.