Connect

3220 66th Avenue Court, Greeley, CO – $529,000

  • 4 Beds
  • 3 Baths
  • 2,722 Sqft
  • .14 Acres
  • 4 Beds
  • 3 Baths
  • 2,722 Sqft
  • .14 Acres

New Search X

3220 66th Avenue Court

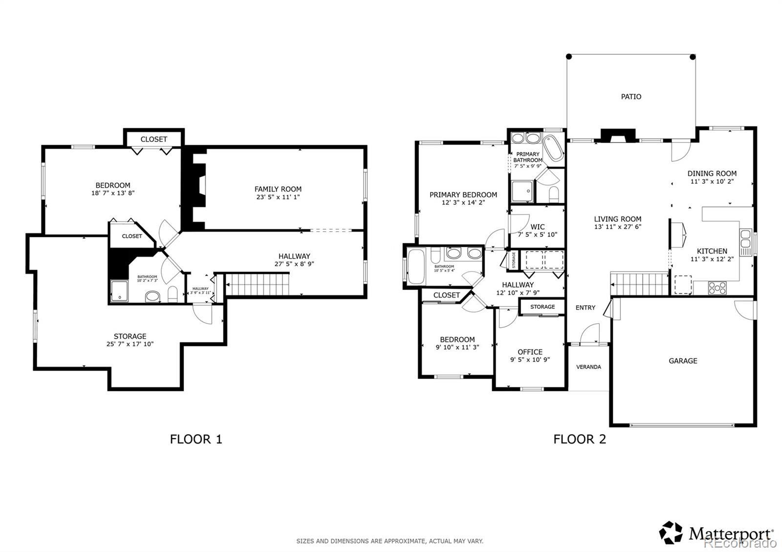
Welcome to your beautifully maintained home in the desirable St. Michaels community of Greeley. Nestled in a quiet, well-kept neighborhood, this residence offers the perfect blend of comfort, style, and convenience. Step inside to discover a spacious open-concept living area with soaring vaulted ceilings and abundant natural light. The inviting living room centers around a cozy gas fireplace and flows seamlessly into the dining area with direct access to the covered patio—ideal for indoor-outdoor living. The kitchen continues the vaulted ceilings and features granite countertops, stainless steel appliances, rich wood cabinetry, and plenty of prep space for all your culinary needs. The bedroom wing of the home offers privacy and functionality. The primary suite is a true retreat with tray ceilings, a luxurious 5-piece ensuite bath, and a generous walk-in closet. Two additional bedrooms—one with vaulted ceilings—share a full bath, and a convenient laundry closet completes the main level. Downstairs, the finished basement expands your living space with a large media room equipped with a sound system, perfect for movie nights and entertaining. You’ll also find a fourth bedroom with egress windows, a ¾ bathroom, and a spacious utility/storage room. Out back, enjoy your own private oasis with a beautifully landscaped, fenced-in yard, lush lawn, flower beds, and a comfortable covered patio for relaxing evenings or morning coffee. A 2-car attached garage offers convenience and additional storage. Furnace and AC are both NEW, the roof and fresh paint both recently updated, and water heater is 8 years old. With its peaceful setting, quick access to local amenities, and a true sense of community, this St. Michaels gem is ready to welcome you home!

Listing Office: Redfin Corporation

Essential Information

  • MLS® #4224649
  • Price$529,000
  • Bedrooms4
  • Bathrooms3.00
  • Full Baths2
  • Square Footage2,722
  • Acres0.14
  • Year Built2003
  • TypeResidential
  • Sub-TypeSingle Family Residence
  • StatusActive

Community Information

  • Address3220 66th Avenue Court
  • SubdivisionSt Michaels
  • CityGreeley
  • CountyWeld
  • StateCO
  • Zip Code80634

Amenities

  • Parking Spaces4
  • # of Garages2

Utilities

Cable Available, Electricity Connected, Internet Access (Wired), Natural Gas Connected, Phone Available

Parking

Concrete, Exterior Access Door, Finished Garage, Floor Coating

Interior

  • HeatingForced Air, Natural Gas
  • CoolingCentral Air
  • FireplaceYes
  • # of Fireplaces1
  • FireplacesGas, Gas Log, Living Room
  • StoriesOne

Interior Features

Breakfast Bar, Ceiling Fan(s), Five Piece Bath, Granite Counters, High Ceilings, High Speed Internet, Open Floorplan, Smart Thermostat, Smoke Free, Solid Surface Counters, Walk-In Closet(s)

Appliances

Convection Oven, Dishwasher, Disposal, Gas Water Heater, Microwave, Range, Refrigerator, Self Cleaning Oven

Exterior

  • RoofFiberglass

Exterior Features

Garden, Lighting, Private Yard, Rain Gutters, Smart Irrigation

Lot Description

Irrigated, Landscaped, Sprinklers In Front, Sprinklers In Rear

Windows

Double Pane Windows, Skylight(s), Window Coverings, Window Treatments

School Information

  • DistrictGreeley 6
  • ElementaryMonfort
  • HighGreeley Central

Middle

Tointon Academy of Pre-Engineering

Additional Information

  • Date ListedJanuary 26th, 2026

Listing Details

  • Redfin Corporation
Please provide a valid email address.

Terms and Conditions: The content relating to real estate for sale in this Web site comes in part from the Internet Data eXchange ("IDX") program of METROLIST, INC., DBA RECOLORADO® Real estate listings held by brokers other than RE/MAX Professionals are marked with the IDX Logo. This information is being provided for the consumers personal, non-commercial use and may not be used for any other purpose. All information subject to change and should be independently verified.

Copyright 2026 METROLIST, INC., DBA RECOLORADO® -- All Rights Reserved 6455 S. Yosemite St., Suite 500 Greenwood Village, CO 80111 USA

Listing information last updated on February 3rd, 2026 at 9:19am MST.