Connect

2210 Greenwich Circle, Colorado Springs, CO – $522,000

  • 4 Beds
  • 3 Baths
  • 2,792 Sqft
  • .2 Acres
  • 4 Beds
  • 3 Baths
  • 2,792 Sqft
  • .2 Acres

New Search X

2210 Greenwich Circle

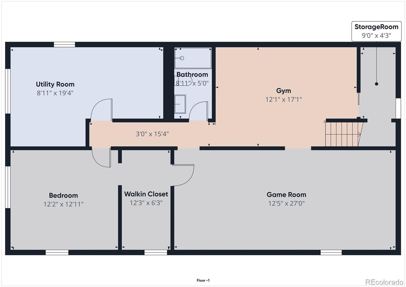
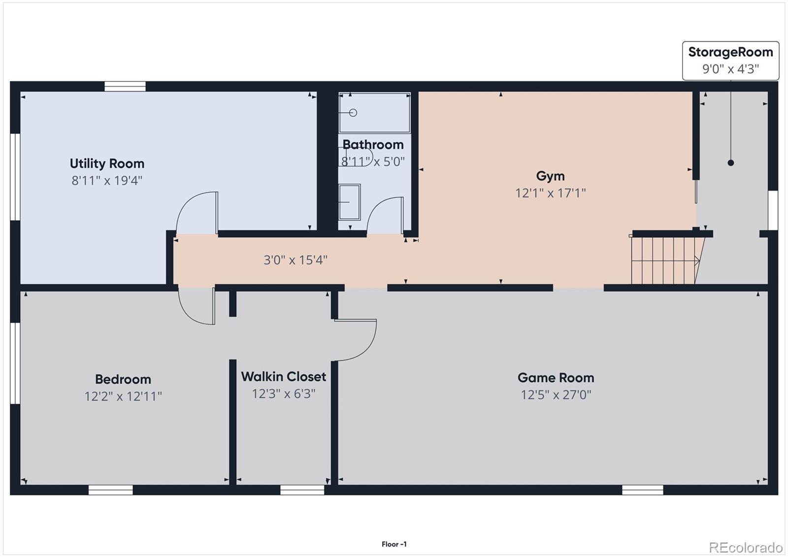
Beautifully landscaped lot with mature trees and lush lawn, this thoughtfully cared-for 4-bedroom, 3-bath home offers comfort, functionality, and stunning mountain views throughout. Step inside to a welcoming foyer with updated flooring (2023) and a custom beveled glass front door that sets the tone for the quality within. The main level features a formal living room with a large beveled bay window and built-in bookshelves, a separate dining room with Pikes Peak views, and a spacious eat-in kitchen complete with a breakfast bar, built-in desk, rotating spice rack, and pull-out cabinet shelves—all atop newer luxury flooring. Just off the kitchen, the cozy family room offers a gas fireplace with a brick surround and easy access to the expansive Trex deck (installed 2019), perfect for enjoying Colorado sunsets. The main level primary suite offers a tranquil retreat with a large walk-in closet, and an updated en-suite bath with new flooring and fixtures. Two additional bedrooms and a full bath with new flooring complete the main level. Downstairs, discover a spacious rec room, a large fourth bedroom, and an additional bonus room perfect for a home office or gym. The fully renovated basement bathroom (2023) and upgraded luxury flooring throughout the lower level add style and functionality. Storage abounds with a second walk-in closet, a 15x15 crawl space, and a workshop complete with shelving and cabinets. Additional highlights include an oversized insulated two-car garage, newer furnace, brand new A/C (2024), main-level laundry with Maytag washer/dryer, and a fully fenced yard with two gates. Views of Pikes Peak can be enjoyed from the dining room, kitchen, primary bedroom, and back deck, creating a true Colorado lifestyle experience.

Listing Office: Pulse Real Estate Group LLC

Essential Information

  • MLS® #4312721
  • Price$522,000
  • Bedrooms4
  • Bathrooms3.00
  • Full Baths1
  • Square Footage2,792
  • Acres0.20
  • Year Built1968
  • TypeResidential
  • Sub-TypeSingle Family Residence
  • StatusActive

Community Information

  • Address2210 Greenwich Circle
  • SubdivisionColorado Springs
  • CityColorado Springs
  • CountyEl Paso
  • StateCO
  • Zip Code80909

Amenities

  • Parking Spaces2
  • # of Garages2

Utilities

Electricity Connected, Natural Gas Connected

Interior

  • HeatingForced Air, Natural Gas
  • CoolingCentral Air
  • FireplaceYes
  • # of Fireplaces1
  • FireplacesGas
  • StoriesOne

Interior Features

Breakfast Bar, Ceiling Fan(s), Entrance Foyer, Walk-In Closet(s)

Appliances

Dishwasher, Dryer, Microwave, Oven, Range, Refrigerator, Washer

Exterior

  • Lot DescriptionLevel
  • RoofComposition

Windows

Bay Window(s), Double Pane Windows, Window Coverings

School Information

  • DistrictColorado Springs 11
  • ElementaryMadison
  • MiddleSabin
  • HighMitchell

Additional Information

  • Date ListedAugust 22nd, 2025
  • ZoningR1-6

Listing Details

  • Pulse Real Estate Group LLC
Please provide a valid email address.

Terms and Conditions: The content relating to real estate for sale in this Web site comes in part from the Internet Data eXchange ("IDX") program of METROLIST, INC., DBA RECOLORADO® Real estate listings held by brokers other than RE/MAX Professionals are marked with the IDX Logo. This information is being provided for the consumers personal, non-commercial use and may not be used for any other purpose. All information subject to change and should be independently verified.

Copyright 2026 METROLIST, INC., DBA RECOLORADO® -- All Rights Reserved 6455 S. Yosemite St., Suite 500 Greenwood Village, CO 80111 USA

Listing information last updated on February 16th, 2026 at 11:03am MST.