Connect

10722 Cougar Canyon, Lone Tree, CO – $1,200,000

  • 5 Beds
  • 5 Baths
  • 4,740 Sqft
  • .27 Acres
  • 5 Beds
  • 5 Baths
  • 4,740 Sqft
  • .27 Acres

New Search X

10722 Cougar Canyon

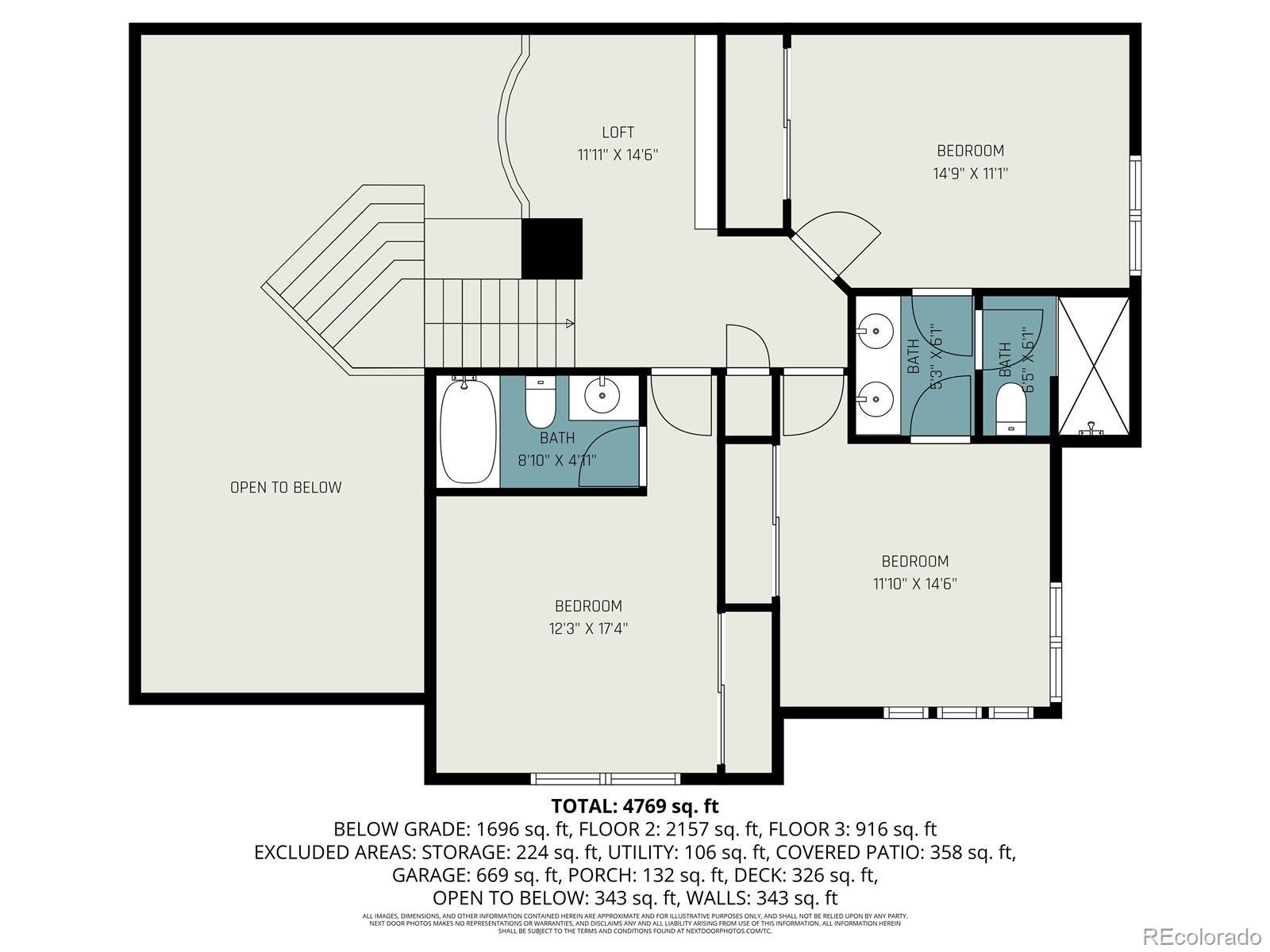
One of the best lots in the Wildcat Ridge neighborhood, on a cul de sac backing to open space, main floor primary bedroom and walk out finished basement, this home has the bones to be your forever home. Trex upper back deck with automatic retractable awning and lower level covered patio both look out onto your lush, treelined, back yard and the open space beyond. Huge main floor primary suite features a french door entry, separate sitting area with gas fireplace, 5 piece bath, double sinks, large walk in closet and vaulted ceilings. Large kitchen with gas cooktop, new double ovens and newer dishwasher. Sunny breakfast nook opens to great room with floor to ceiling windows featuring plantation shutters. Hunter Douglas shades throughout. Living room and dining room complete the main level. Upstairs is a loft area with 3 additional bedrooms: 2 sharing a Jack and Jill bath and the third ensuite bedroom with it’s own bathroom. The walk out basement has a structural floating wood floor, 9 ft ceilings, a large bar area, family room, pool table, freestanding fireplace, bedroom, office/flex space, full bathroom with double sinks and plentiful unfinished storage area. So much light you will never believe it’s a basement. 3 car garage with epoxy coated flooring. Walking distance to Rock Canyon High School and the Wildcat/Cougar Run pools. Original owners have meticulously cared for this home and now you have the chance to make it your own.

Listing Office: Keller Williams DTC

Essential Information

  • MLS® #4488955
  • Price$1,200,000
  • Bedrooms5
  • Bathrooms5.00
  • Full Baths4
  • Half Baths1
  • Square Footage4,740
  • Acres0.27
  • Year Built1997
  • TypeResidential
  • Sub-TypeSingle Family Residence
  • StyleTraditional
  • StatusPending

Community Information

  • Address10722 Cougar Canyon
  • SubdivisionWildcat Ridge
  • CityLone Tree
  • CountyDouglas
  • StateCO
  • Zip Code80124

Amenities

  • AmenitiesPool
  • Parking Spaces6
  • # of Garages3

Utilities

Cable Available, Electricity Connected, Internet Access (Wired), Natural Gas Connected

Parking

Concrete, Dry Walled, Finished Garage, Floor Coating, Lift

Interior

  • HeatingForced Air
  • CoolingCentral Air
  • FireplaceYes
  • # of Fireplaces3
  • StoriesTwo

Interior Features

Breakfast Bar, Eat-in Kitchen, Five Piece Bath, High Ceilings, Jack & Jill Bathroom, Primary Suite, Wet Bar

Appliances

Bar Fridge, Cooktop, Dishwasher, Disposal, Double Oven, Dryer, Freezer, Microwave, Oven, Refrigerator, Washer, Water Purifier

Fireplaces

Basement, Family Room, Free Standing, Gas Log, Primary Bedroom

Exterior

  • RoofComposition
  • FoundationSlab

Lot Description

Cul-De-Sac, Open Space, Sprinklers In Front, Sprinklers In Rear

School Information

  • DistrictDouglas RE-1
  • ElementaryWildcat Mountain
  • MiddleRocky Heights
  • HighRock Canyon

Additional Information

  • Date ListedOctober 30th, 2025
  • ZoningPDU

Listing Details

  • Keller Williams DTC
Please provide a valid email address.

Terms and Conditions: The content relating to real estate for sale in this Web site comes in part from the Internet Data eXchange ("IDX") program of METROLIST, INC., DBA RECOLORADO® Real estate listings held by brokers other than RE/MAX Professionals are marked with the IDX Logo. This information is being provided for the consumers personal, non-commercial use and may not be used for any other purpose. All information subject to change and should be independently verified.

Copyright 2025 METROLIST, INC., DBA RECOLORADO® -- All Rights Reserved 6455 S. Yosemite St., Suite 500 Greenwood Village, CO 80111 USA

Listing information last updated on December 24th, 2025 at 12:03pm MST.