Connect

3551 Tabernash Drive, Loveland, CO – $577,900

  • 4 Beds
  • 3 Baths
  • 2,391 Sqft
  • .17 Acres
  • 4 Beds
  • 3 Baths
  • 2,391 Sqft
  • .17 Acres

New Search X

3551 Tabernash Drive

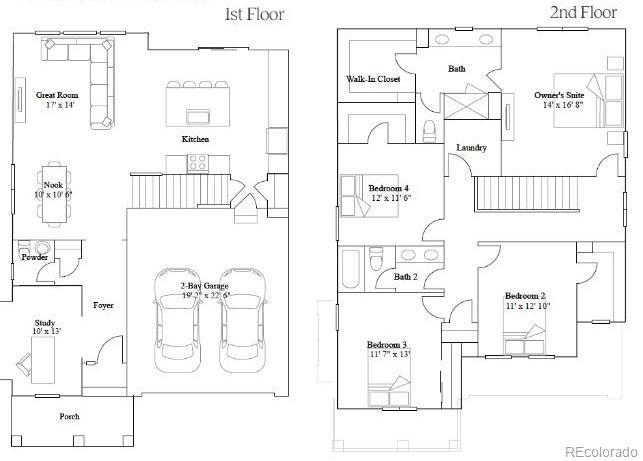
***Contact Lennar today about Special Financing for this home - terms and conditions apply** Available NOW! Feel right at home in this beautiful Pinnacle 2-story floorplan located in Riano Ridge. Featuring 4 beds, 2.5 baths, great room, kitchen, study, unfinished basement and 2 car extended garage. Beautiful upgrades and finishes throughout including luxury vinyl plank flooring, stainless steel appliances and more. This builder provides the latest in energy efficiency and state of the art technology with several fabulous floor plans to choose from. What some builders consider high-end upgrades, this builder makes a standard inclusion. This community offers single family homes for every lifestyle. A great location nestled between the heart of Loveland and the Big Thompson Canyon, Riano Ridge is just 6 minutes away from Devil’s Backbone, 10 minutes to downtown Loveland, and within walking distance to Mehaffey Park. Other notable nearby places include Lake Loveland, Sweetheart Winery, multiple golf courses including Mariana Butte, and dozens of other shopping and dining options. Association Fees are approximate and subject to change. Come see what you have been missing today! Don’t wait– this community will sell out quickly! Welcome Home! Photos and walkthrough tour are model only and subject to change.

Listing Office: RE/MAX Professionals

Essential Information

  • MLS® #4557851
  • Price$577,900
  • Bedrooms4
  • Bathrooms3.00
  • Full Baths1
  • Half Baths1
  • Square Footage2,391
  • Acres0.17
  • Year Built2026
  • TypeResidential
  • Sub-TypeSingle Family Residence
  • StatusPending

Community Information

  • Address3551 Tabernash Drive
  • SubdivisionRiano Ridge
  • CityLoveland
  • CountyLarimer
  • StateCO
  • Zip Code80538

Amenities

  • Parking Spaces2
  • ParkingConcrete
  • # of Garages2

Utilities

Cable Available, Electricity Available, Electricity Connected, Natural Gas Available, Natural Gas Connected, Phone Available

Interior

  • Interior FeaturesBreakfast Bar, Kitchen Island
  • HeatingForced Air, Natural Gas
  • CoolingCentral Air
  • StoriesTwo

Appliances

Dishwasher, Disposal, Microwave, Refrigerator

Exterior

  • Exterior FeaturesRain Gutters
  • WindowsDouble Pane Windows
  • RoofComposition
  • FoundationSlab

School Information

  • DistrictThompson R2-J
  • ElementaryPonderosa
  • MiddleLucile Erwin
  • HighLoveland

Additional Information

  • Date ListedJanuary 21st, 2026
  • ZoningRES

Listing Details

  • RE/MAX Professionals
Please provide a valid email address.

Terms and Conditions: The content relating to real estate for sale in this Web site comes in part from the Internet Data eXchange ("IDX") program of METROLIST, INC., DBA RECOLORADO® Real estate listings held by brokers other than RE/MAX Professionals are marked with the IDX Logo. This information is being provided for the consumers personal, non-commercial use and may not be used for any other purpose. All information subject to change and should be independently verified.

Copyright 2026 METROLIST, INC., DBA RECOLORADO® -- All Rights Reserved 6455 S. Yosemite St., Suite 500 Greenwood Village, CO 80111 USA

Listing information last updated on January 28th, 2026 at 8:18am MST.