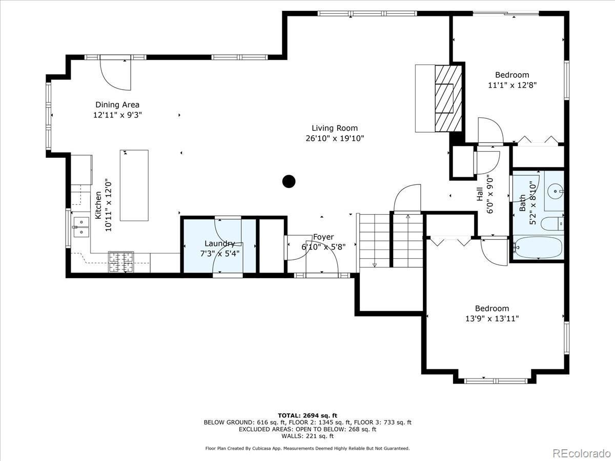
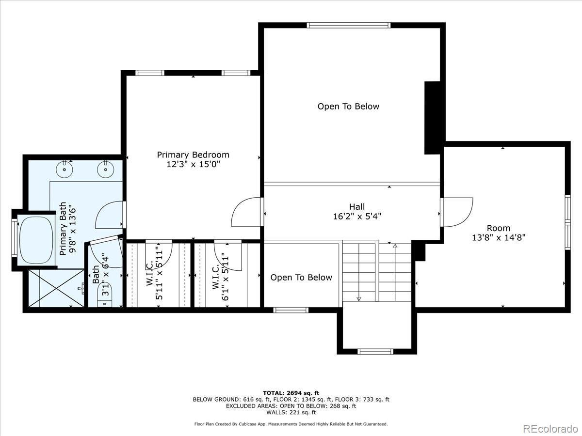
Welcome to your private mountain sanctuary just 15 minutes southwest of Colorado Springs. Nestled in a serene rural mountain community off Highway 115, this 35-acre estate offers the perfect blend of luxury, seclusion, and accessibility—with sweeping 360-degree views of the surrounding mountains, striking rock outcroppings, and endless sky. This custom 4-bedroom, 3-bathroom residence provides over 3,000 square feet of finely crafted living space. Step into the vaulted great room featuring a showstopping stone fireplace and rich hardwood floors, where every window frames a postcard-worthy view. The main level includes 2 spacious bedrooms, one with walk-out access to the expansive patio—ideal for stargazing under the Milky Way or enjoying sunrise coffee with deer, hummingbirds, or the occasional bobcat as your backdrop. The primary suite is a true retreat, complete with dual closet rooms and a luxurious five-piece bath. Every detail has been considered for comfort and elegance, making this home equally suited for full-time living or a peaceful getaway. Equestrian lovers will appreciate the well-appointed horse barn with water, stables, hay barn, round pen, and outdoor riding arena. Hobbyists and adventurers will find endless space in the over-sized detached garage, RV pad with dedicated electricity and cistern, and a large outbuilding for tools, vehicles, or recreational gear. A large chicken coop adds to the charm. The use of ground water from this well is limited to ordinary household purposes inside 3 single family dwellings, fire protection, the watering of poultry, domestic animals, and livestock on a farm or ranch, and the irrigation of not over one ( 1) acre of home gardens and lawns. Despite its tranquil setting, this property is just a short drive from Ft. Carson, Colorado Springs, Florence, and Canon City. With mostly level, cleared land and exceptional natural beauty in every direction, this is more than a home—it’s a lifestyle.
Listing Office: Elizabeth Pudder INC  
 
 Elizabeth Pudder INC
Elizabeth Pudder INC Terms and Conditions: The content relating to real estate for sale in this Web site comes in  part from the Internet Data eXchange ("IDX") program of METROLIST, INC., DBA RECOLORADO® Real estate listings held by brokers other than RE/MAX Professionals are marked with the IDX Logo. This information is being  provided for the consumers personal, non-commercial use and may not be  used for any other purpose. All information subject to change and  should be independently verified.
 Terms and Conditions: The content relating to real estate for sale in this Web site comes in  part from the Internet Data eXchange ("IDX") program of METROLIST, INC., DBA RECOLORADO® Real estate listings held by brokers other than RE/MAX Professionals are marked with the IDX Logo. This information is being  provided for the consumers personal, non-commercial use and may not be  used for any other purpose. All information subject to change and  should be independently verified.
Copyright 2025 METROLIST, INC., DBA RECOLORADO® -- All Rights Reserved 6455 S. Yosemite St., Suite 500 Greenwood Village, CO 80111 USA
Listing information last updated on October 31st, 2025 at 9:04am MDT.