Connect

27201 County Road 63.1, Aguilar, CO – $990,000

  • $990k Price
  • 69 Acres
  • $990k Price
  • 69 Acres

New Search X

27201 County Road 63.1

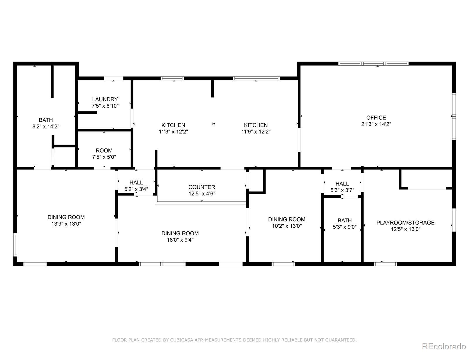
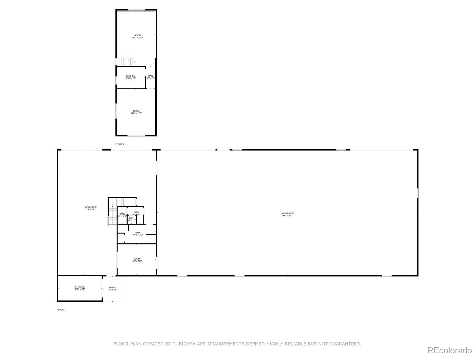
Sixty-nine-acre property at Exit 30 off I-25, with multiple income streams. Automotive repair shop, salvage yard, RV campground and a sit-down Cafe. The 8,000 square foot shop building has 4 drive-in doors, 2 auto lifts, ADA bathrooms, shower, an upper-level break area with kitchenette and a secure fenced yard. RV campground with 22 full hookup campsites, and space for additional 40 more RV spaces. The sit-down café modular building is 28’ x 60’ and is open for breakfast, lunch & dinner. Great southern Colorado location, near the Spanish Peaks and Sangre de Cristo Mountains, between Trinidad and Walsenburg. With I-25 frontage, and close to junctions with the the HIghway of Legends Scenic Byway, US 160, CO 10 and 69.

Listing Office: Code of the West Real Estate

Essential Information

  • MLS® #4639319
  • Price$990,000
  • Bathrooms0.00
  • Acres69.00
  • Year Built2005
  • TypeCommercial Sale
  • Sub-TypeCommercial Land
  • StatusActive

Community Information

  • Address27201 County Road 63.1
  • CityAguilar
  • CountyLas Animas
  • StateCO
  • Zip Code81020

Amenities

Utilities

Electricity Connected, Propane

Additional Information

  • Date ListedJune 21st, 2025
  • ZoningCommerrcial

Listing Details

  • Code of the West Real Estate
Please provide a valid email address.

Terms and Conditions: The content relating to real estate for sale in this Web site comes in part from the Internet Data eXchange ("IDX") program of METROLIST, INC., DBA RECOLORADO® Real estate listings held by brokers other than RE/MAX Professionals are marked with the IDX Logo. This information is being provided for the consumers personal, non-commercial use and may not be used for any other purpose. All information subject to change and should be independently verified.

Copyright 2025 METROLIST, INC., DBA RECOLORADO® -- All Rights Reserved 6455 S. Yosemite St., Suite 500 Greenwood Village, CO 80111 USA

Listing information last updated on November 29th, 2025 at 12:18pm MST.